00193936-02 - 第202页
4 安装和试运行 SIPLACE HF 系列用户手册 4.5 安装贴片机 软件版 本 SR.505.xx 2004 年 7 月中文版 202 4.5.12.4 HF/3 贴片机的轴单元 (悬臂 3 ) - 连接插头 Æ 按下图所示,连接电源电缆: 4 4 Æ 检查 S1 的开关设置 1 :打开 2 :打开 4.5.12.5 安 装轴单元 Æ 小心地将轴单元抬起,插入扩展套件的轨道中。 Æ 确保不要挤压任何电缆。 Æ 将轴单元推入扩展套件…

SIPLACE HF 系列用户手册 4 安装和试运行
软件版本 SR.505.xx 2004 年 7 月中文版 4.5 安装贴片机
201
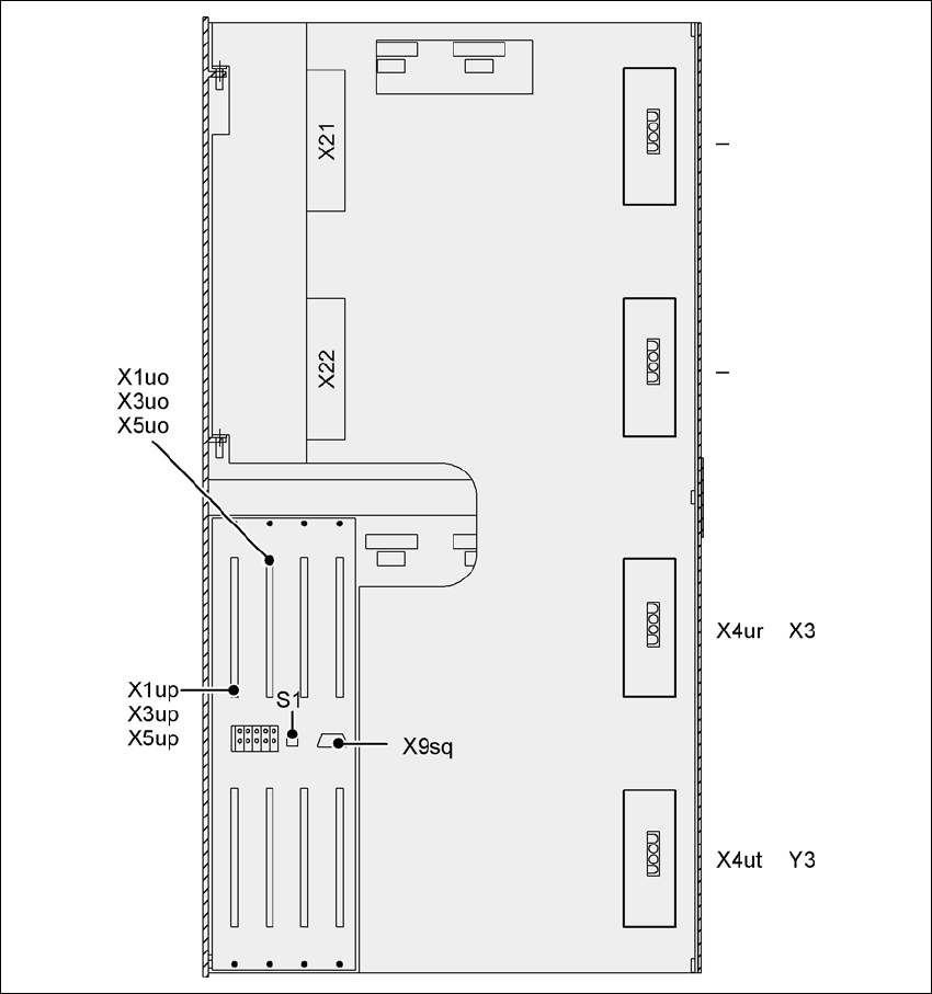
4.5.12.3 HF/3 贴片机的轴单元 (悬臂 3) - 电气连接点
4
图
4.5 - 18 HF/3
贴片机的轴单元 (悬臂
3
),后面板
-
电气连接点

4 安装和试运行 SIPLACE HF 系列用户手册
4.5 安装贴片机 软件版本 SR.505.xx 2004 年 7 月中文版
202
4.5.12.4 HF/3 贴片机的轴单元 (悬臂 3) - 连接插头
Æ 按下图所示,连接电源电缆:
4
4
Æ 检查 S1 的开关设置
1:打开
2:打开
4.5.12.5 安装轴单元
Æ 小心地将轴单元抬起,插入扩展套件的轨道中。
Æ 确保不要挤压任何电缆。
Æ 将轴单元推入扩展套件中,尽可能靠近挡杆处。
Æ 将风扇电缆连接到轴单元电缆上。
Æ 用凹槽帽螺钉固定轴单元。
Æ 插入盖子。
Æ 按图 4.5 - 14,第 195 页所示,将接地电缆固定在门上 (图 4.5 - 15 中的 2,第 197 页)。
Æ 锁上门。
HF/3 贴片机的轴单元
(悬臂 3)插头
连接电缆
注意
插头 电缆
X21
X21 03009782
03009783
03009784
03009785
03009786 W1-W5
用线夹紧固接头
X22
X22 03009802
03009803
03009804
03009805
03009807
用线夹紧固接头
X4ur
X4ur 03009800
将接头咬合入位
X4ut
X4ut 03009801
将接头咬合入位
X1uo
X3uo
X5uo
X1uo
X3uo
X5uo
03009811
03009812
03009813
尽可能插到挡杆处
X1up
X3up
X5up
X1up
X3up
X5up
03009814
03009815
03009816
尽可能插到挡杆处
X9sq
X9sq 03010056
拧紧

SIPLACE HF 系列用户手册 4 安装和试运行
软件版本 SR.505.xx 2004 年 7 月中文版 4.5 安装贴片机
203
4.5.12.6 安装盖子
Æ 按图 4.5 - 14,第 195 页所示,将接地电缆固定在每个盖子上 (图 4.5 - 15 中的 5,第 197
页)。
Æ 用 6 个凹槽帽螺钉将每个盖子固定在贴片机机架上。
4.5.13 安装主要故障指示器
Æ
将主要故障指示器电缆连接到贴片机主体电缆上。
Æ 将主要故障指示器支脚连接到贴片机主体横臂上。
4.5.14 将贴片机集成到生产线上
Æ
注意第 4.5.2 节,第 169 页的警告说明。
Æ 有关工具和设备清单,见第 4.5.1 节,第 169 页。