5OM-1626-001_w - 第102页
5OM-1610 3-3 Parts Location 091 1-001 Layout under the Base (Side Panel L) Rear Side F201 F203 F202 Q201 Q206 Q204 K29 K28 K10 Q205 Q221R Q221R Q221R Vacuum Pump Q221F X Axis X Axis Y1 Axis Y2 Axis Q222F Y1 Axis Q223F Y2…

5OM-1610
3-2
Parts Location
0911-001
Layout under the Base (DC Power Supply)
M174
M173
G4
M173
G1
G2
G7
G4

5OM-1610
3-3
Parts Location
0911-001
Layout under the Base (Side Panel L)
Rear Side
F201 F203
F202
Q201 Q206
Q204
K29 K28 K10
Q205 Q221R Q221R Q221R
Vacuum
Pump
Q221F
X Axis
X Axis Y1 Axis Y2 Axis
Q222F
Y1 Axis
Q223F
Y2 Axis

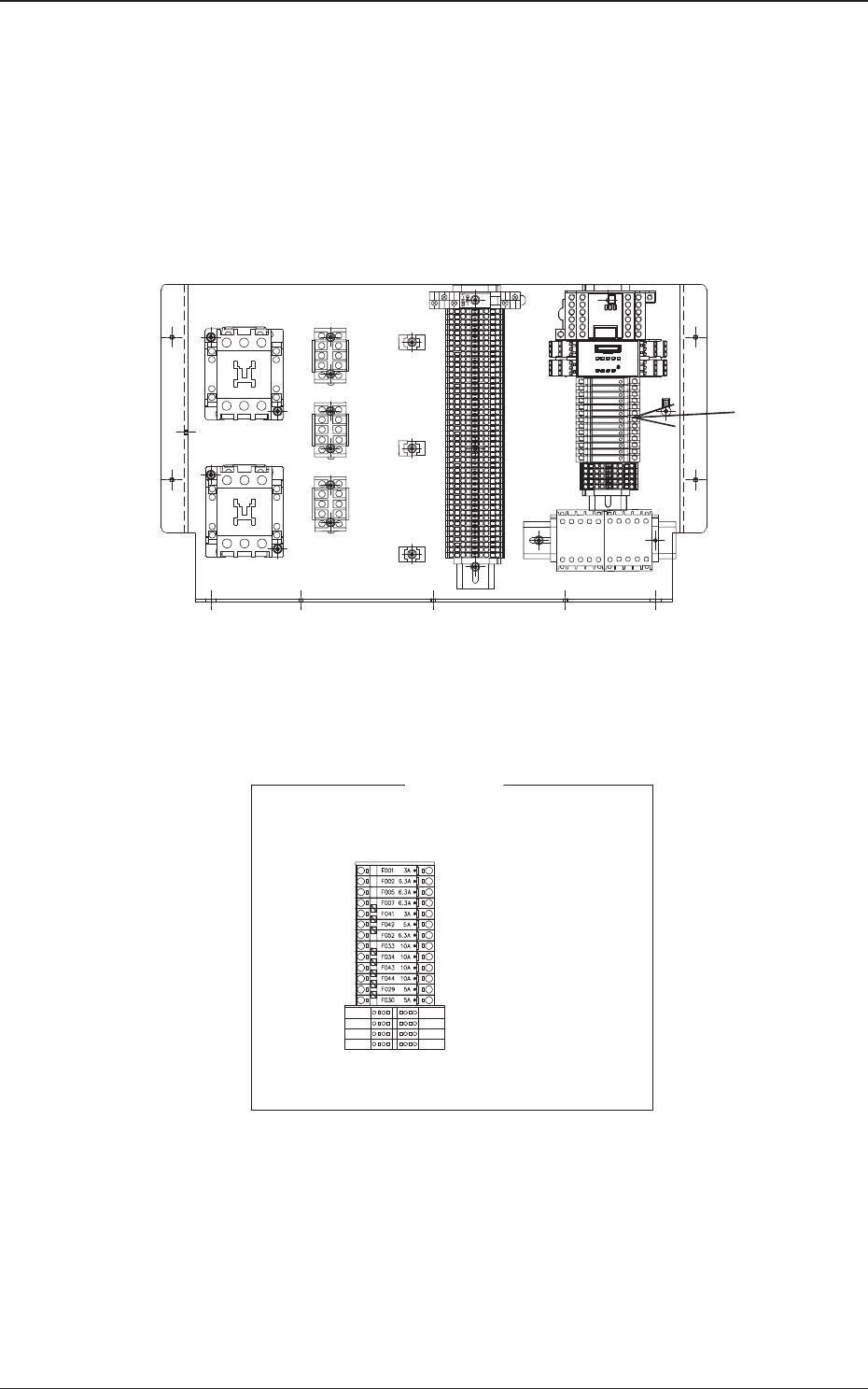
5OM-1610
3-4
Parts Location
0911-001
Layout under the Base (Side Panel C)
B
K33A
K33B
K1
K25
K3
K4
K75
K77
Operation Power
Input
Feeder Power
Input
Feeder Power
Input
K38 K50
Details B
F1
(3A)
F2
(6.3A)
F5
(6.3A)
F7
(6.3A)
F41
(3A)
F42
(5A)
F52
(6.3A)
F33
(10A)
F34
(10A)
F43
(10A)
F44
(10A)
F29
(5A)
F30
(5A)
For 24V Circuit
For 48V Circuit