5OM-1626-001_w - 第99页
5OM-1610 091 1-001 3-B

5OM-1610
0911-001 3-A
Chapter 3
Parts Location
This chapter describes the layout, etc., of each section.
As this contains highly sophisticated contents, it should carefully be
referred to.

5OM-1610
0911-001 3-B

5OM-1610
3-1
Parts Location
0911-001
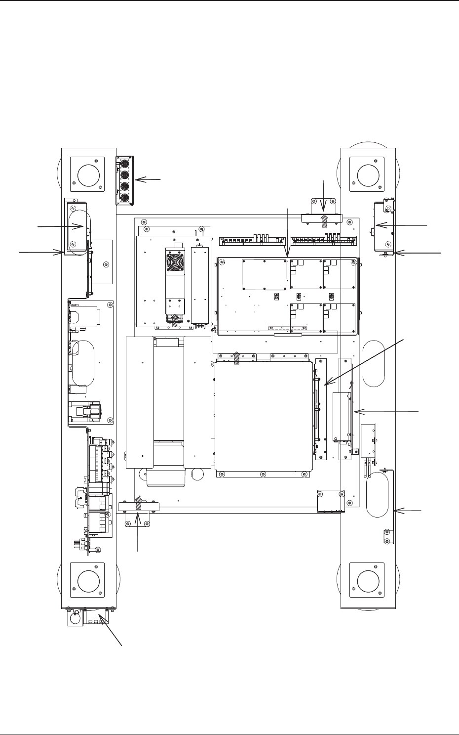
Layout under the Base (General View)
Intermediate Conveyor I/F (L)
OP Panel RB
Side Panel R
Noise Filter
Air Inlet FAN
DC Power Supply
LED Lighting Control PCB
Image Distributor
Exhaust FAN
Servoamplifier, I/O Board
CPU-1,-2
LAN I/F
CPU-Mst1
OP Panel RF
Front/Rear I/F BOX
Intermediate Conveyor I/F (L)
OP Panel LB
Side Panel C
Side Panel L