00196193-0102_DC_SIPLACE-X_DE EN - 第293页
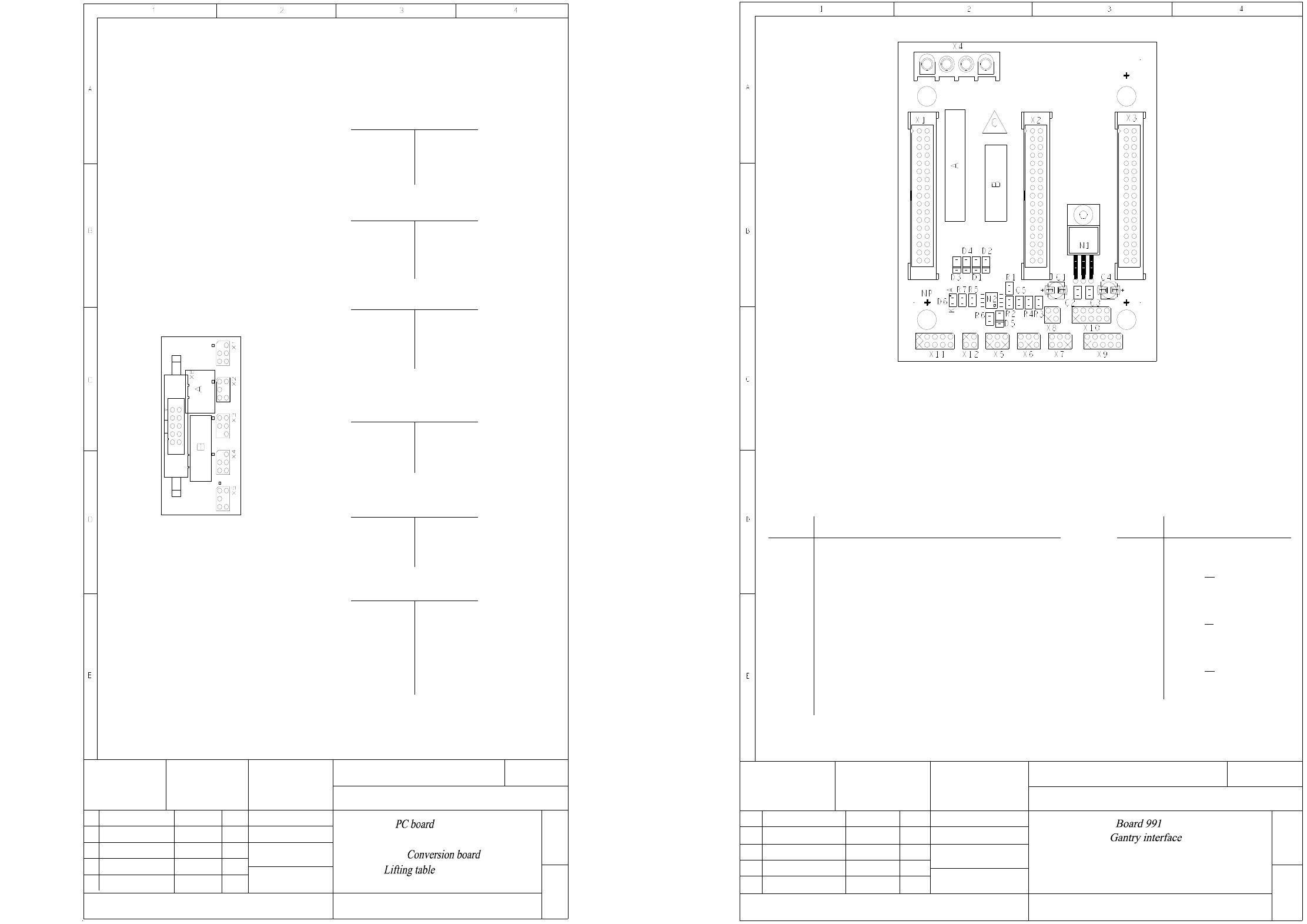
4 - 10 00362766-010101ND4 Leiterplatt e, Umsetzplatine Hubtisch PCB, conversion board, lifting t able 00363330-040101ND4 Leiterplatt e 991, Portalinterface PCB 991, gantry interface Stat . 01 M odif i ed 04. 04. 01 Da t …

4 - 9
00359425-030101ND4 Leiterplatte, Umsetzplatine Transport 1 (Bl. 3 v. 3)
PCB, conversion board, conveyor 1 (sh. 3 of 3)
G32918 - M0069 - U021 - * - 17
05
Stat. Modified Date
04.12.01
Name
KD
12.12.00
Dorfner
Printed circuit board
Date
Name
2-layer
00359425-030101ND4
Scale
1:1
Sheet
3 -
962
Adjustment unit 2, cylinder switch
5, 6
4
Connector X46/width adjustment
3 +24V
GND
Key
--> X52.202
Adjustment unit 2, panel sensor
Connector X47/width adjustment
1
2
3, 4
5, 6
Key
--> X52.22
+24V
GND
Limit switch, left spindle
Connector X48/width adjustment
2
3, 4
5
6
--> X52.24
+24V
Key
GND
Connector X52
1, 2
3 ... 34
37 ... 48
49, 50
+24V
GND
Connector X53
1, 2
3 ... 36
39, 40
+24V
GND
Connector X54/ A/C panel
1, 2
3, 4
5, 6
7, 8
9, 10
11, 12
13, 14
15, 16
17, 18
19, 20
21, 22
23
24
25
26
27
28
29
30
31
32
33, 34
MOTOR 1+
MOTOR 1-
MOTOR 2+
MOTOR 2-
MOTOR 3+
MOTOR 3-
MOTOR 4+
MOTOR 4-
MOTOR 5+
MOTOR 5-
GND
--> X52.27
--> X52.28
--> X52.29
--> X52.30
--> X52.31
--> X52.7
--> X52.8
--> X52.15
--> X53.27
--> X52.11
+24V
Connector X51
1, 2
3, 4
5, 6
7, 8
9, 10
11, 12
13, 14
15, 16
17, 18
19, 20
25, 26
27, 28
29, 30
31, 32
MOTOR 1+
MOTOR 1-
MOTOR 2+
MOTOR 2-
MOTOR 3+
MOTOR 3-
MOTOR 4+
MOTOR 4-
MOTOR 5+
MOTOR 5-
SM_A+
SM_A-
SM_B+
SM_B-
Connector X55 / B/D panel
1, 2
3, 4
5, 6
7, 8
9, 10
11, 12
13, 14
15, 16
17, 18
19, 20
21, 22
28
29
30
31
32
33, 34
MOTOR 1-
MOTOR 1+
MOTOR 2-
MOTOR 2+
MOTOR 3-
MOTOR 3+
MOTOR 4-
MOTOR 4+
MOTOR 5-
MOTOR 5+
GND
--> X52.9
--> X53.28
--> X52.16
--> X52.41
--> X52.42
+24V
pflichten zu Schadenersatz. Alle Rechte vorbehalten, ins
besondere für den Fall der Patenterteilung oder GM-Eintragung
wertung und Mitteilung ihres Inhalts nicht gestattet, soweit
Weitergabe sowie Vervielfältigung dieser Unterlage,Ver-
nicht ausdrücklich zugestanden. Zuwiderhandlungen ver-
Proprietary data, company confidential. All rights reserved.
Confie a titre de secret d'entreprise. Tous droits reserves.
Confiado como secrete industrial. Nos reservamos todos los derechos.
Comunicado como segredo empresarial. Reservados todos os direitos.
--> X52.1027
Copyright ©
SIPLACE X-Series
Copyright ©
ASM AS
Transport 1 /
Umsetzplatine /
Leiterplatte /

4 - 10
00362766-010101ND4 Leiterplatte, Umsetzplatine Hubtisch
PCB, conversion board, lifting table
00363330-040101ND4 Leiterplatte 991, Portalinterface
PCB 991, gantry interface
Stat.
01
Modified
04.04.01
Date
KD
Name
PC board
Dorfner
04.04.01
Date
Name
Component layout, component side
G32918 - N0032 - U201 - * - 17 00362766-010101ND4
Scale
1 : 1
1 -
Sheet
984
2-layer
A Assembly designation 11x13 (solder side)
B Inspection label (solder side)
1
2
3
6
2
3
4
6
2
3
5
6
1
2
3
6
2
3
4
6
1
2
3
4
5
6
10
Connector X1
Connector X2
Connector X3
Connector X4
Connector X5
Connector X6
Key
Track A
+24V
GND
Key
Track B
+24V
GND
Key
+24V
Limit switch
GND
GND
+24V
Valve "up"
Key
GND
+24V
Valve "down"
Key
+24V
Track A
Track B
Limit switch
Valve "up"
Valve "down"
GND
pflichten zu Schadenersatz. Alle Rechte vorbehalten, ins
besondere für den Fall der Patenterteilung oder GM-Eintragung
wertung und Mitteilung ihres Inhalts nicht gestattet, soweit
Weitergabe sowie Vervielfältigung dieser Unterlage,Ver-
nicht ausdrücklich zugestanden. Zuwiderhandlungen ver-
Proprietary date, company confidential. All rights reserved.
Confie a titre de secret d'entreprise. Tous droits reserves.
Confiado como secrete industrial. Nos reservamos todos los derechos.
Comunicado como segredo empresarial. Reservados todos os direitos.
SIPLACE X-Series
ASM AS
Copyright ©
Leiterplatte /
Umsetzplatine /
Hubtisch /
Bestückungsplan, Bauteilseite
Stat.
04
01
03
02
Modified
--------
--------
--------
--------
28.07.04
09.04.03
25.09.02
07.05.01
Date
KL
KL
KL
KL
Name
Date
Name
07.05.01
Klose
00363330-040101ND4
G32918-N0042-U041-*-0017
Portalinterface /
Component layout, component side
SIPLACE X-Series
Leiterplatte 991 /
4-layer PCB
Sc 1:1
1 -
Sheet
A = Identification label
C = ESD label
B = Inspection label
Pins
X Key Pin
n.u.
GND
Track A
Track A
Track B
Track B
+5V
Track N
Track N
Key
DGND
Track signals, Y axisX10
1
3
2
5
7
9
8
6
10
4
Assembly
Cable carrier interface 03010612
Cable carrier interface 03010612
Cable carrier interface 03010612
n.u.
Scanning head, Y axis, 03017754
Temperature sensor, Y axis, 03006767-W2
Test connector, Y track signals
Motor, Y axis, 03006767-W1
X2
X3
X1
X10
n.u.
X8
X9
n.u.
X4
X11
X10
X9
X8
X7
X6
X5
X4
X3
X2
X1
Connector
pflichten zu Schadenersatz. Alle Rechte vorbehalten, ins
besondere für den Fall der Patenterteilung oder GM-Eintragung
wertung und Mitteilung ihres Inhalts nicht gestattet, soweit
Weitergabe sowie Vervielfältigung dieser Unterlage,Ver-
nicht ausdrücklich zugestanden. Zuwiderhandlungen ver-
Proprietary date, company confidential. All rights reserved.
Confie a titre de secret d'entreprise. Tous droits reserves.
Confiado como secrete industrial. Nos reservamos todos los derechos.
Comunicado como segredo empresarial. Reservados todos os direitos.
Copyright ©
ASM AS

4 - 11
00370397-010101ND3 TSP 301 (Bl. 1 v. 2)
TSP 301 (sh. 1 of 2)
Date
Author
Check.
Stand.
Stat. Modified Date Name
Position for identification label
on side 1
a)
X3
X3
X4
J2
J1
J6
X1 X2
J3
S4 J7
X22
AssemblyConnector
X1
X2
X3
X4
X10
X11
X12
X13
X22
X23
X24
X25
X26
X21
X21:1
X21:2
X21:3
X21:4
Siemens interface, upstream station, conveyor track 1
Siemens interface, downstream station, conveyor track 1
SMEMA interface, upstream station, conveyor track 1
SMEMA interface, downstream station, conveyor track 1
Bus cable to TSP 300E
Conveyor motors, "width adjustment" motor
Sensors/actors
Sensors/actors
Power supply
n.u.
n.u.
RS232 Boot/Debug
GND
CAN bus
CAN bus
n.u.
34 VDC to 42 VDC
24 VDC
Assembly
Fault loop 1-2
CAN bus, pins 2-3
CAN bus, pins 1-2
Jumper
J7
J3
J6
Sh.
Sh.
SIEMENS SMEMA
1-2, 4-5, 7-8 2-3, 5-6, 8-9J1
2-3, 5-6, 8-91-2, 4-5, 7-8J2
J1/J2 interface jumpers, conveyor track 1
Downstream station
Upstream station
Distributor, PCB barcode scanner
X27
F6
X11
X13
X12
X10
X23 X25
X24
X27
X26
F5 F4 F3 F2 F1
X21
S4
OFF
OFF
OFF
OFF
OFF
ON
OFF
ON
2
8
5
6
7
4
3
1
3
OFF
from machine no. 56:
up to machine no. 55:
clamping detection via clamping sensor
clamping detection via motor current measurement
Bestückungsplan /
SMD und bedrahtete Bauelemente /
Seite 1 /
SIPLACE X-Series
Copyright ©
ASM AS