GL-541E-09 PART LIST - 第52页
10.アウトコンベア(BTQC) 10.Out conveyor(BTQC) 番号 図番 & コード番号 個数 品名 規格 備考 材質 No. Drg.No. & Code No. QTY Description Rating Remarks Materials 1 BTQC0030 1 PLATE, REFERENCE プレート 基準 AL 2 BTQC0040 1 PLATE, SIDE プレート サイド A…

GL-541E PARTS LIST
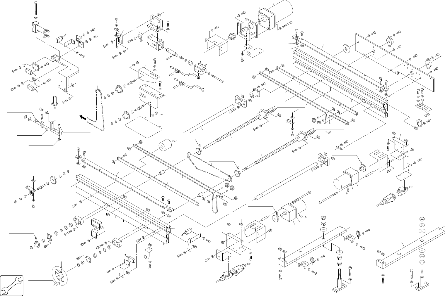
10.アウトコンベア(BTQC)
10.Out conveyor(BTQC)
10 - 2
10.アウトコンベア(BTQC)
10.Out conveyor(BTQC)
タテx173.205
Ref.31-1
Ref.31-1
Ref.31-1
Ref.33-7
x8.2
A
H
F
D
A
G
J
F
E
G
E
C
H
J
K
K
B
C
To In
Conveyor
D
B
A
LOCTITE222
LOCTITE222
LOCTITE222
LOCTITE242
LOCTITE242
LOCTITE242
LOCTITE222
LOCTITE222
LOCTITE222
LOCTITE222
LOCTITE222
LOCTITE222

10.アウトコンベア(BTQC)
10.Out conveyor(BTQC)
番号 図番 & コード番号 個数 品名 規格 備考
材質
No. Drg.No. & Code No. QTY Description Rating Remarks
Materials
1 BTQC0030 1 PLATE, REFERENCE プレート 基準 AL
2 BTQC0040 1 PLATE, SIDE プレート サイド AL
3 BTQC0064 1 PLATE, SIDE プレート サイド FE
4 BTQC0070 2 PLATE, GUIDE プレート ガイド FE
5 BTQC0081 2 GUIDE, BELT ガイド ベルト AL
6 BTQC0091 2 BELT ベルト OT
7 BTQC0100 1 PLATE プレート FE
8 BTQC0121 1 PLATE プレート FE
9 BTQC0150 1 BALL SCREW ボールネジ OT
10 BTQC0161 1 BALL SCREW ボールネジ OT
11 BTQC0170 2 BAR, GUIDE バー ガイド FE
12 BTQC0180 4 STAND スタンド FE
13 BTQC0191 1 BKT BKT FE
14 BTQC0200 1 HOLDER ホルダ FE
15 BTQC0230 1 SHAFT シャフト FE
16 BTQC0250 1 BKT BKT FE
17 BTQC0270 1 ADJUSTER アジャスタ FE
18 BTQC0280 1 HOOK フック FE
19 T2040M 1 CHAIN チェーン RS25NP 438 Link OT
20 T2023L 1 CHAIN チェーン RS25NP 105 Link OT
21 MQC3941 1 STOPPER ストッパ PL
22 IQC5791 2 COVER カバー FE
23 H44222 2 BEARING, BALL ベアリング ボール SMK16UU FE
24 S3031A 6 SPROCKET スプロケット RS25-16T 2-Type OT
25 IQC5470 2 COLLAR カラー FE
26 MQC1061 4 PULLEY プーリ OT
27 IQC6041 4 RETAINER, BARING 押え ベアリング FE
28 MQC1292 4 PULLEY プーリ OT
29 CLC9191 4 NUT ナット FE
30 MQC3313 2 GUIDE ガイド FE
31 MQC3323 2 GUIDE ガイド FE
32 H4123A 2 BEARING ベアリング UFL000 FE
33 BTQC0290 1 STOPPER ストッパ PL
34 NQC4090 1 DOG ドッグ HELPS FE
35 GVC1141 1 DOG ドッグ HELPS FE
36 GVC1151 1 DOG ドッグ HELPS FE
37 GVC1160 1 NUT ナット HELPS FE
GL-541E PARTS LIST
10 - 3
10.アウトコンベア(BTQC)
10.Out Conveyor(BTQC)

10.アウトコンベア(BTQC)
10.Out conveyor(BTQC)
番号 図番 & コード番号 個数 品名 規格 備考
材質
No. Drg.No. & Code No. QTY Description Rating Remarks
Materials
38 IQC8090 1 BKT BKT HELPS FE
39 IQC5413 2 HOUSING ハウジング FE
40 H4440A 4 BEARING, MINIATURE ベアリング ミニチュア L-1910ZZ FE
41 IQC5920 2 COLLAR カラー FE
42 IQC5931 2 COLLAR カラー FE
43 NQC0490 2 PLATE プレート FE
44 NQC0630 2 COLLAR カラー FE
45 N1020N 2 NUT, FINE U ナット ファインU FU00SC OT
46 GVC0490 1 HANDLE ハンドル OT
47 H2061A 1 PIN, SPRING ピン スプリング 4゜X28L FE
48 NQC4050 1 BKT BKT HELPS FE
49 A1040H 1 AMPLIFIER アンプ PS2-61 HELPS OT
50 NQC0471 1 BKT BKT FE
51 S3122Z 1 SW, PHOTOELECTRIC SW 光電 E3S-LS3RC4 OT
52 S3122A 3 SW, PHOTOELECTRIC SW 光電 E3S-LS3C1D OT
53 NQC4031 1 BKT BKT HELPS FE
54 S1022A 3 CIR-CLIP サークリップ ST-EW-4 FE
55 JQC0781 3 COLLAR カラー FE
56 H4445A 6 BEARING, MINIATURE ベアリング ミニチュア LF-1050ZZ FE
57 NQC0330 2 SHAFT シャフト FE
58 NQC3160 2 BKT BKT FE
60 MQC3293 2 COVER カバー OT
61 MQC3901 8 SPACER スペーサ FE
62 MQC3501 2 PULLEY プーリ FE
65 NQC0442 1 PIN ピン FE
66 R5022A 1 ROLLER, NEEDLE ローラ ニードル 5゜X27.3L OT
67 NQC0320 1 KNUCKLE ナックル FE
68 NQC0220 1 CYLINDER, AIR シリンダ エアー OT
69 A4088A 2 ELBOW, UNIVERSAL エルボ ユニバーサル UEF-4BU OT
70 S3132T 1 SW, PHOTOELECTRIC SW 光電 PS-58 HELPS OT
71 NQC4040 1 BKT, SW BKT SW HELPS FE
72 NQC4060 1 NUT ナット HELPS FE
73 NQC0140 1 BKT BKT FE
74 S21045 1 CYLINDER, AIR シリンダ エアー CDQ2B12-20D-A73HL OT
75 K5325A 2 CONTROLLER, SPEED コントローラ スピード M4R-M5-0 OT
76 NQC0400 1 BKT BKT FE
77 NQC0420 1 BKT BKT FE
GL-541E PARTS LIST
10 - 4
10.アウトコンベア(BTQC)
10.Out Conveyor(BTQC)