GL-541E-09 PART LIST - 第8页
GL-541E P ARTS LIST 1 . Y 軸テーブル( 1 ) ( B T P T ) 1 . Y a x i s t a b l e ( 1 ) ( B T P T ) 1 - 2 1 . Y 軸テーブル( 1 ) ( B T P T ) 1 . Y a x i s t a b l e ( 1 ) ( B T P T ) タ テ x 1 7 3 . 2 0 5 R e f . 3 1 - 1 R e f . 3 1 - 1 …

GL-541E PARTS LIST
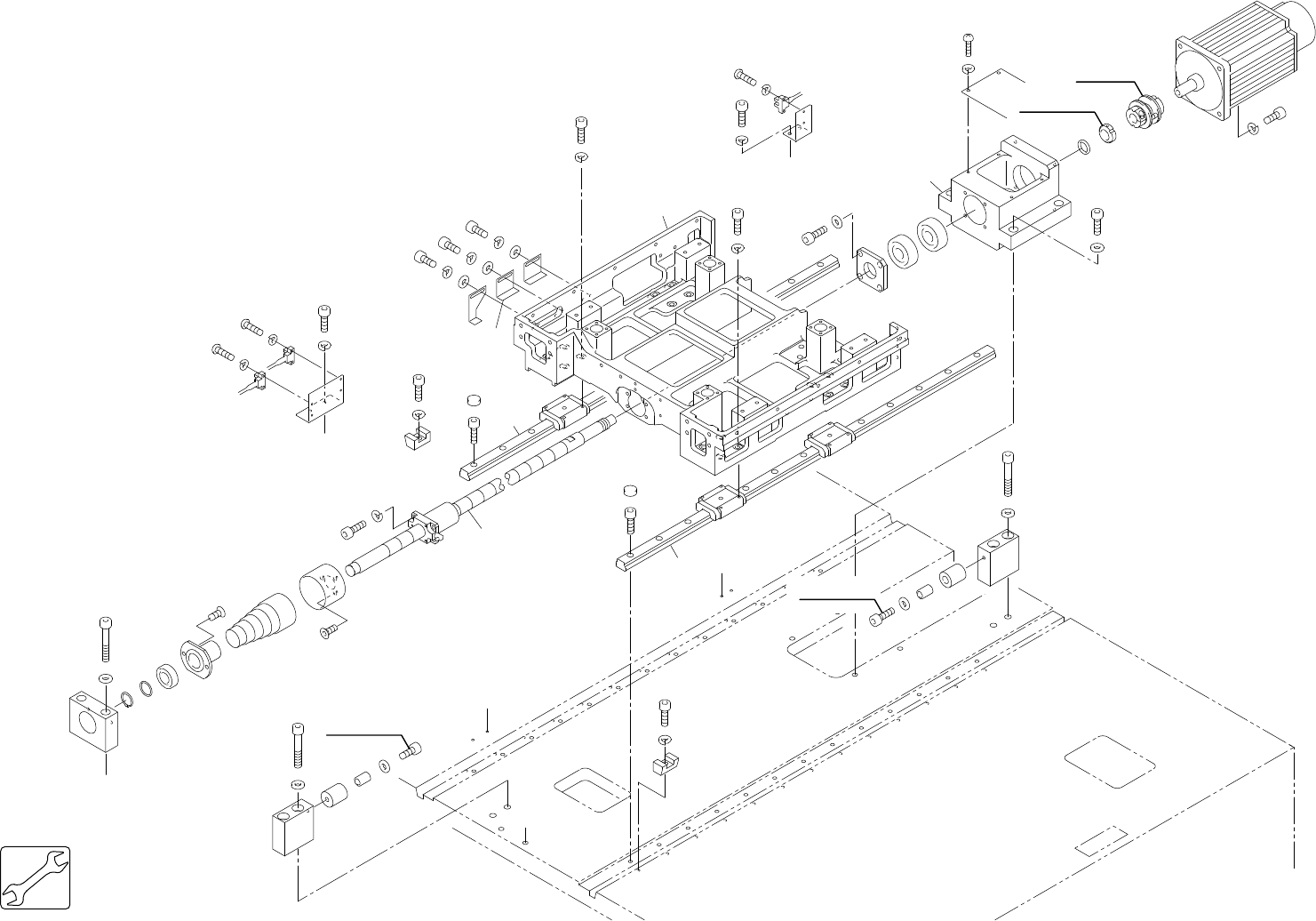
1.Y軸テーブル(1)(BTPT)
1.Y axis table(1)(BTPT)
1 - 1
1.Y軸テーブル(1)(BTPT)
1.Y axis table(1)(BTPT)
タテx173.205
Ref.31-1
Ref.31-1
Ref.31-1
Ref.33-7
x7.4
22
C
A
C
B
B
14
42
35
21
20
44
48
45
47
46
29
38
5
49
33
6
49
33
29
38
23
25
36
50
10
37
27
27
37
43
11
12
12
32
39
4
32
39
37
27
25
36
50
9
28
40
13
19
19
7
8
37
26
15
16
17
18
39
33
34
42
6
31
40
1
2
3
40
30
29
38
23
31
40
1
2
3
40
30
A
25
36
24
208
176
165
175
161
175
161
175
161
183
162
176
167
175
161
13
13
B
A
139
26

GL-541E PARTS LIST
1.Y軸テーブル(1)(BTPT)
1.Y axis table(1)(BTPT)
1 - 2
1.Y軸テーブル(1)(BTPT)
1.Y axis table(1)(BTPT)
タテx173.205
Ref.31-1
Ref.31-1
Ref.31-1
Ref.33-7
C
A
C
B
B
A
B
A
LOCTITE242
LOCTITE242
LOCTITE242
3.33N・m

1.Y軸テーブル(1)(BTPT)
1.Y axis table(1)(BTPT)
番号 図番 & コード番号 個数 品名 規格 備考
材質
No. Drg.No. & Code No. QTY Description Rating Remarks
Materials
1 BTPT0420 2 BKT, STOPPER BKT ストッパ FE
2 PPT0660 2 DAMPER ダンパ PL
3 NPA0190 2 COLLAR カラー FE
4 BTPT0502 1 SLIDE, Y-AXIS スライド Y軸 AL
5 BTPT1011 1 BALL SCREW ボールネジ OT
6 BTPT1021 2 GUIDE, RAIL ガイド レール OT
7 BTPT0532 1 BKT, MOTOR BKT モータ FE
8 BTPT0540 1 COVER カバー FE
9 BTPT0550 1 BKT, SW BKT SW FE
10 BTPT0560 1 BKT, SW BKT SW FE
11 BTPT0571 1 DOG ドッグ FE
12 BTPT0580 2 DOG ドッグ FE
13 BTPT0880 1 RETAINER, BARING 押え FE
14 BTPT0931 1 BKT BKT FE
15 PPT1371 1 COLLAR カラー FE
16 N1025T 1 NUT, LOCK ナット ロック ZM017 FE
17 BTPT1031 1 COUPLING カップリング OT
18 SAM1501 1 MOTOR モータ OT
19 H4157T 1 BEARING ベアリング 17TAC47B-DBC8PN7A Set parts FE
20 H4181A 1 BEARING ベアリング 6003ZZ FE
21 PPT1060 1 COLLAR カラー FE
22 S1036A 1 CIR-CLIP サークリップ STW17 FE
23 GPT0792 26 RETAINER 押え FE
24 S4040W 1 SENSOR, PHOTO センサ フォト EE-SPX305-W2A OT
25 K5256H SCREW, HEX SOCKET BUTTON 小ネジ六角穴ボタン M3X12L FE
26 K52565 SCREW, HEX SOCKET BUTTON 小ネジ六角穴ボタン M4X6L FE
27 H5287A BOLT, HEX SOCKET ボルト 六角穴 M4X8L FE
28 H5299A BOLT, HEX SOCKET ボルト 六角穴 M5X12L FE
29 H5300A BOLT, HEX SOCKET ボルト 六角穴 M5X15L FE
30 H5301A BOLT, HEX SOCKET ボルト 六角穴 M5X18L FE
31 H5311A BOLT, HEX SOCKET ボルト 六角穴 M5X60L FE
32 H5322A BOLT, HEX SOCKET ボルト 六角穴 M6X15L FE
33 H5324A BOLT, HEX SOCKET ボルト 六角穴 M6X20L FE
34 H5343A BOLT, HEX SOCKET ボルト 六角穴 M8X30L FE
35 H5349T BOLT, HEX SOCKET ボルト 六角穴 M8X65L FE
36 W1021A WASHER, LOCK ワッシャ スプリング 3M/M FE
37 W1022A WASHER, LOCK ワッシャ スプリング 4M/M FE
GL-541E PARTS LIST
1 - 3
1.Y軸テーブル(1)(BTPT)
1.Y axis table(1)(BTPT)