YS12_YG12_mpl_je - 第38页
Rev . :It had a change without the compatibility . Please be careful at the time of the parts ordering. Rev.: 過去に互換性の無い変更が入った部品。部品発注時は注意してください。 No. Part No. Part Name Q'ty Remarks Rev. Rank Level No. Part No. Part N…

14
26
R>L
L>R
15
15
30
33
12
25
11
30
32
2
2
28
1
28
35
31
35
21
35
20
20
35
35
21
35
31
14
3
23
30
4
36
8
8
36
34
33
16
28
22
7
6
9
23
5
30
10
27
17
17
37
19
29
20
35
13
8
8
36
36
35
20
4
5
30
30
17
17
37
33
34
16
34
26
18
37
KHY/KJV-1111
7
4
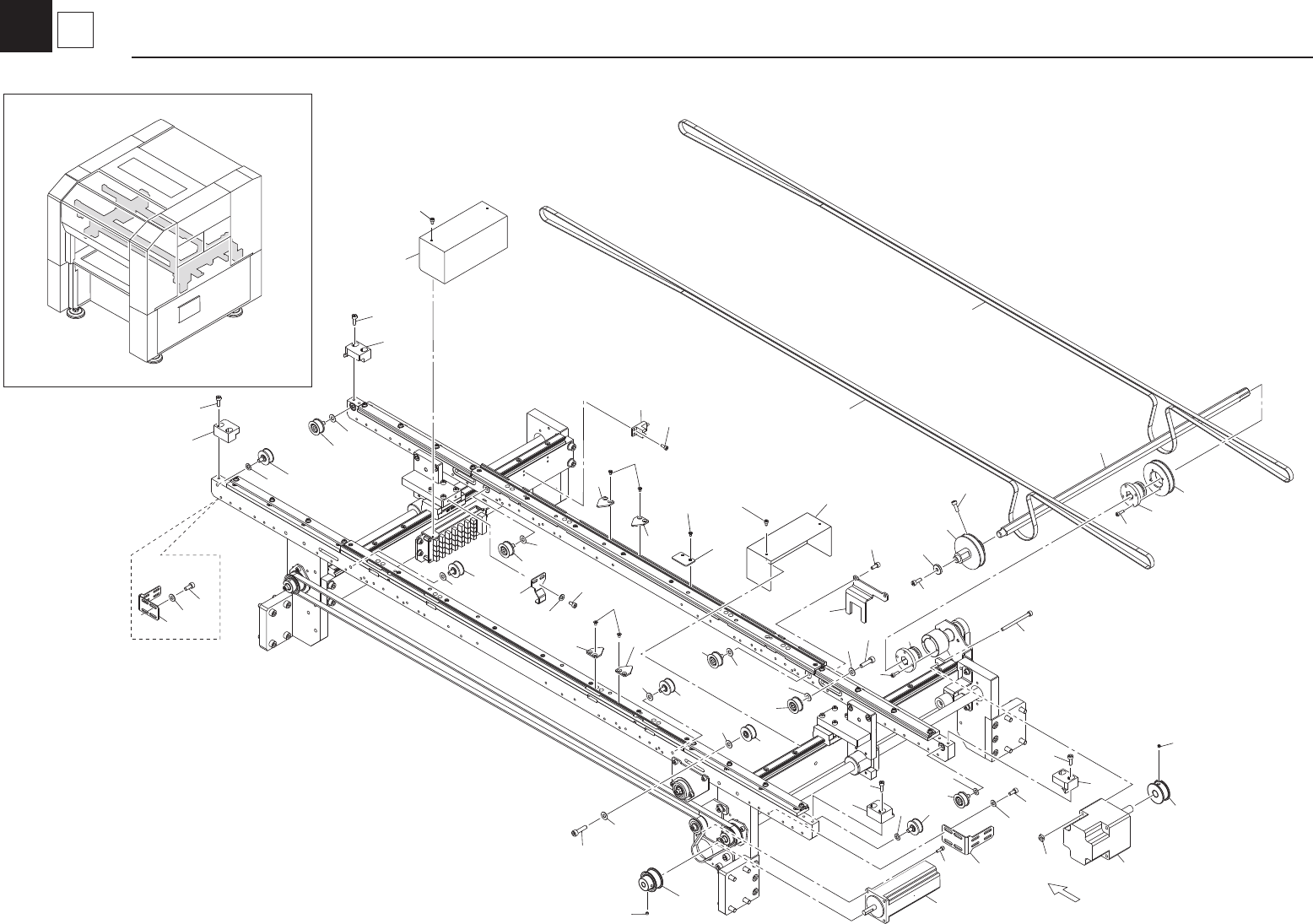
Main Conveyor (Front STD)
Conveyor Unit

Rev. :It had a change without the compatibility. Please be careful at the time of the parts ordering.
Rev.: 過去に互換性の無い変更が入った部品。部品発注時は注意してください。
No. Part No. Part Name Q'ty Remarks Rev. Rank Level No. Part No. Part Name Q'ty Remarks Rev. Rank Level
1
KG2-M9105-00 PULLEY 1,SPLINE 1
/
Í
38
2
KG2-M9108-11 COLLAR,CONVEYOR 2
/
Í
39
3
KG7-M9113-01 PULLEY 3 1
/
Í
40
4
KGA-M9113-00 GUIDE 1,END 2
/
41
5
KGA-M9114-00 GUIDE 2,END 2
/
42
6
KGK-M9170-00 DC MOTOR ASSY. 1
/
43
7
KGT-M9193-00 NUT PLATE 4
/
44
8
KGY-M9140-A0
PULLEY,CONV. ASSY 4
/
45
9
KH2-M9105-11 PULLEY,MOTOR:P30-3GT
2
/
46
10
KHY-M652H-01 SENSOR,W1ORG ASSY 1
B
Í
47
11
KHY-M9113-00 PULLEY 1,MOTOR 1
/
Í
48
12
KHY-M9117-00 SPLINE 1 1
/
Í
49
13
KHY-M9118-00 BRACKET F,COLLAR 1
/
Í
50
14
KHY-M911G-01 COVER,TERMINAL 2
/
51
15
KHY-M9129-00 BELT 1,CONVEYOR 2 l=1250
E
52
KHY-M9129-10 BELT 1,CONVEYOR 1 l=1460
E
53
16
KHY-M912A-01 BRKT.,SENSOR 1
/
Í
54
17
KHY-M9135-00 PLATE,EDGE 2 14
/
55
18
KHY-M9135-10 PLATE,EDGE 3 2
/
56
19
KHY-M9150-00 DOG,ORIGIN 1
/
Í
57
20
KV1-M9140-A0 PULLEY CONV.ASSY. 4
/
58
21
KV7-M9140-A0 PULLEY CONV.ASSY. 2
/
59
22
90K55-4W476W AC SERVO MOTOR 1
B
Í
60
23
92A08-04303 SET SCREW 8
61
24 62
25
90990-28J076 WASHER 2
63
26
91312-03005 BOLT HEX.SOCKET HEAD 8 M3X5
64
27
91312-03008 BOLT HEX.SOCKET HEAD 2 M3X8
65
28
91312-03010 BOLT HEX.SOCKET HEAD 12 M3X10
66
29
91312-04008 BOLT HEX.SOCKET HEAD 2 M4X8
67
30
91312-04012 BOLT HEX.SOCKET HEAD 10 M4X12
68
31
91312-05020 BOLT HEX.SOCKET HEAD 2 M5X20
69
32
91317-04055 BOLT HEX.SOCKET HEAD 4 M4X55
70
33
91312-04010 BOLT HEX.SOCKET HEAD 4 M4X10
71
34
92902-04200 WASHER PLAIN 2
72
35
92902-05200 WASHER PLAIN 10
73
36
92902-05600 WASHER PLAIN 4
74
37
98702-03005 SCREW FLAT HEAD 32
75
KHY/KJV-1111
7
4
Main Conveyor (Front STD)
Conveyor Unit

L>R
R>L
14
26
14
26
18
37
30
4
30
5
36
8
8
36
16
34
33
10
27
19
34
29
33
13
28
2
23
9
32
6
7
28
22
33
34
16
30
4
8
36
36
8
5
30
23
3
31
35
17
37
20
35
35
20
17
37
15
15
20
35
35
20
35
21
21
35
28
2
1
30
11
25
30
12
35
31
KHY/KJV-1111
7
5
Main Conveyor (Rear STD)
Conveyor Unit