KE-1070_80_Operation_Manual2_Rev01_C2.pdf - 第31页
操作手册Ⅱ 1-20 1-4-4 印刷基板规格 1. 基板条件 机型 M 基板规格 L 基板规格 E 基板规格 最小 (X)50mm×(Y )30mm 注1 基板尺寸 最大 (X)330mm× (Y)250mm (X)410mm× (Y)360mm (X)510mm× (Y)460mm 最小 0.4mm 基板厚度 最大 4.0mm 最大允许重量 2000g 翘曲允许值 每 5 0mm 允许在 0 .2mm 以下。上翘,下翘的总和在 1m…

操作手册Ⅱ
1-19
注13 各种吸嘴识别的元件尺寸,列表如下:
吸嘴号# 同时测量
间隙 适用元件尺寸
1
2
2.15mm □20.0mm (注 14)
3
4
2.81mm □33.5mm
5
6
0.4 × 0.2mm
~
□10.0mm
(直径 15.0mm 以内)
2.15mm □20.0mm (注 14)
注 14 超过□20mm的,26.5×11 也可适用。(严格而言长边 26.5mm 以下,且短边 20mm 以下,且对角
30.7mm 以下的元件可以适用 )此外,□33.5mm,只可在 L3 或 L4 上使用。
注15 透过照明识别,吸嘴的吸取面大于元件外形尺寸时,有时因吸嘴的影子,识别不稳定。
注16 元件的长边在 45mm 以上时,元件会接触到右贴片头的外壁,所以无法用 CDS 检查有无元件。只
能通过吸取真空压进行检查。
注17
VCS 识别时最小元件的高度无影响,但必须在 CDS(检查元件掉落的传感器)可识别的高度范围内。
注18 超过□20mm 时,24mm×11mm 也可适用。
注19 由于元件尺寸不同,最小元件的高度不一。要设置准确,取决于窗口宽度,元件的对角幅度越小,
最小元件的高度值就越小。最小元件的高度的关系,请参见下图。
0.1
1
10 100
0.01
0.1
1
10
注 20 1.0×0.5~□2.99mm 的元件用 LNC60 贴片头进行图像识别。
#1
#2
#3
#4
#5
#6
26.5
53.0
120.0
17.5
元件对角的宽度/2〔 mm 〕
HLC(主生产线计算机)
)

操作手册Ⅱ
1-20
1-4-4 印刷基板规格
1. 基板条件
机型 M 基板规格 L 基板规格 E 基板规格
最小 (X)50mm×(Y)30mm
注1
基板尺寸
最大
(X)330mm×
(Y)250mm
(X)410mm×
(Y)360mm
(X)510mm×
(Y)460mm
最小 0.4mm
基板厚度
最大 4.0mm
最大允许重量 2000g
翘曲允许值
每 50mm 允许在 0.2mm 以下。上翘,下翘的总和在 1mm 以下
(根据 JIS B 8461)
基板材质 纸酚、环氧玻璃
(X):基板传送方向 (Y):与基板传送垂直的方向
注1:有基板自动调整选项功能时,最小基板尺寸为(X)50mm×(Y)50mm 。
2. 基板限制条件
(1) 不可贴片的范围
图 1-4-9 基板表面不可贴片的范围(基板表面图)
基板传送方向
不可贴片范围
[M] 30~250 (基板宽度自动调整时 50~250mm)
[L] 30~360 (基板宽度自动调整时 50~360mm)
[E] 30~460 (基板宽度自动调整时 50~460mm)
标准φ4 mm、选项φ2.5~φ4 mm
+0.1
0
+0.1
0
5±0.1mm
特殊定货 5~7mm(出厂对应)
标准 5±0.1mm(注)
基板上表面图
基板上表面图
传送轨
固
定
侧 [M] 50~330mm
[L] 50~410mm
[L] 50~510mm
注: 为出厂时的尺寸 外形基准(标准)时不需要。

操作手册Ⅱ
1-21
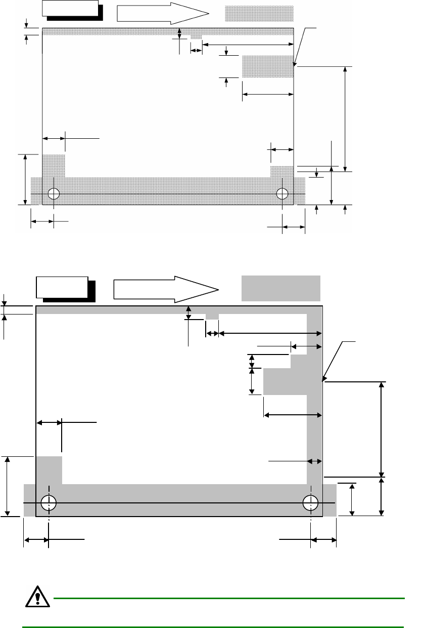
(2) 支撑销不可设定的范围(基板背面图)
图 1-4-10 基板下面不可设置范围(M,L 基板规格,基板下面图)
基板下面
基板下面
サポートピン
設置不可範囲
基板搬送方向
34mm
17.5mm
91mm
4mm
265mm(右左流れは223mm)
22mm
20mm
63.5mm
7mm
15.5mm
17.5mm
21mm
22mm
ストッパ設置位置
0 ~ 210mm
搬送レール固定側
11mm
14mm
图 1-4-11 基板下面不可设置范围(E 规格基板、基板下面图)
基板传送方向如为反向(向左)时,支撑销的设置附加范围与图左右对称。
注意
基板下面
基板传送方向 支撑销不可设置范围
164mm
(
M
基板规格
)
244mm(L 基板规格)
挡块设置位置
4mm
7mm
■
20mm
22mm
63.5mm
25mm
17.5mm
17.5mm
34mm
91mm
39.5mm
21mm
22mm
0~90mm (M 基板规格、前面基准)
0~50mm (M 基板规格、后面基准)
0~185mm(L 基板规格、前面基准)
0~145mm(L 基板规格、后面基准)
传送轨道固定侧
■
■
■
■
■
注意
基板下面
基板传送方向
支撑销不可设置范围
挡块设置位置
传送轨道固定侧
(右左流向为