SI-F130AI_1st_CS - 第270页
操作篇 6. 资料编集 6-62 SI-F130AI 6.4.3 区域资料的编辑 [ 调整功能 ] DAS [ 区域的坐标位 置 ] NC …

操作篇
6. 资料编集
SI-F130AI
6-61
X(mm) Y(mm)
定位標記 ( ) ( )
mm 3
X Y 基板情報 ( ) (6.4.1 )
△ X(mm) △ Y (mm)
( )
X Y X(mm) Y(mm)
視窗尺寸 X ( 视窗尺寸 X) 視窗尺寸 Y ( 视窗尺寸 Y)
X Y Xmm Ymm
標記形式 ID ( 标记形式 ID)
定位標記形式 ( ) ID
定位標記 ( 定位标记 )
定位標記形式 ( ) 1 2 2
第一點 -ID ( 第一点 -ID) 第二點 -ID ( 第二点 -ID)
定位標記 ( ) 1 2
( )
區域 ID ( 区域 ID)

操作篇
6. 资料编集
6-62
SI-F130AI
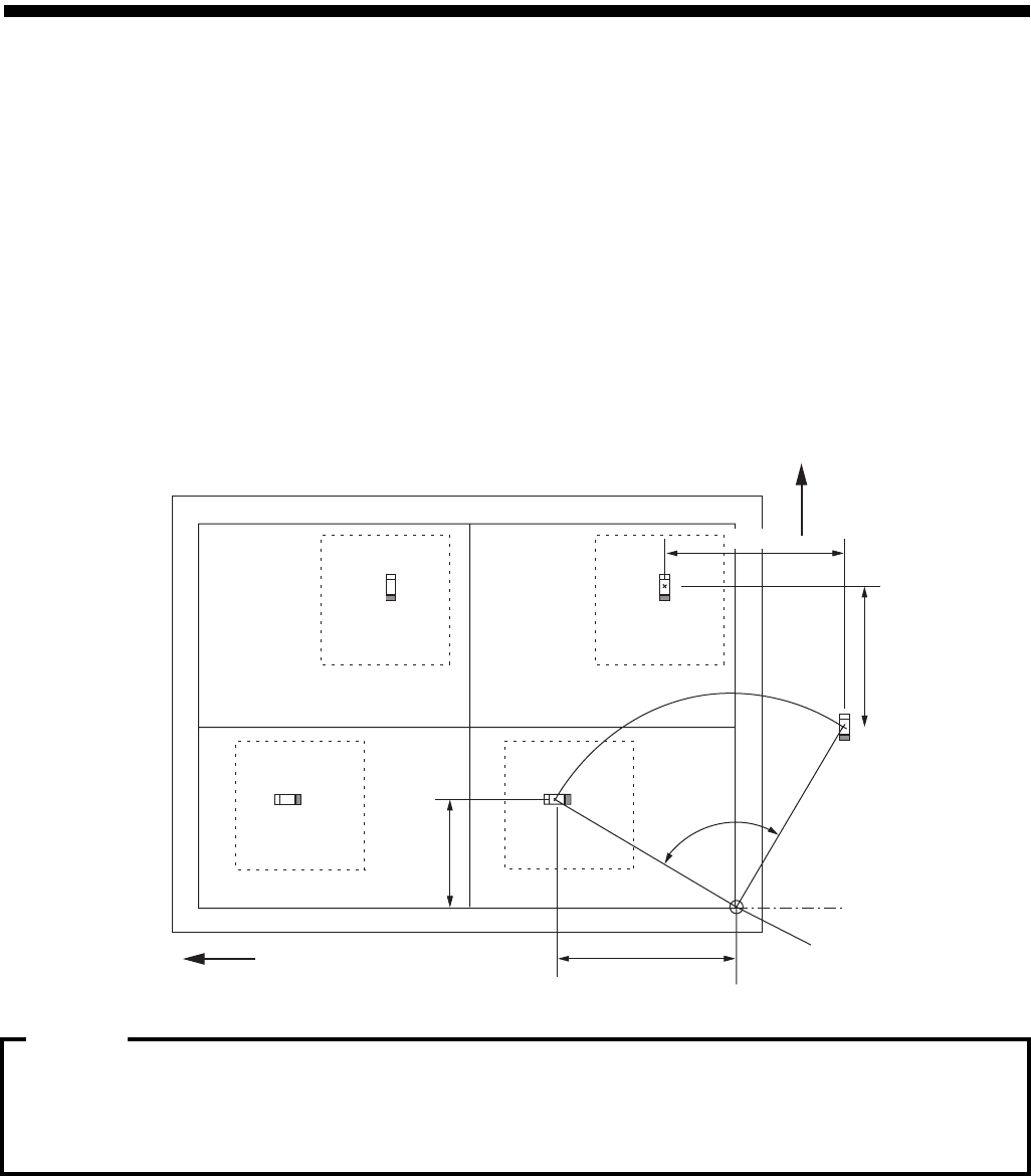
6.4.3 区域资料的编辑
[ 调整功能 ]
DAS
[ 区域的坐标位置 ]
NC X Y
4 ,
NC ,
XY X Y
·区域的顺序号码无特别指定,但任一选择作为基准区域,计算并输入对于该区域的角度补正后
的相对值。
·正确执行移动至区域位置时,需以步骤停止,停止自动生产。
·动作停止的步骤途中,请不要执行区域教示对话框的显示。会发生系统错误。
-x
y
−35.00
21.00
27.50
−35.00
A
A'
B
区域 :4
区域 :3
区域 :2
区域 :1
90.0 度
NC 原点
90°
0 °
注意 :

操作篇
6. 资料编集
SI-F130AI
6-63
[ 操作顺序 ]
( 1 )区域资料的教示
資料編輯 ( ) 基板 ( ) 區域 ( )
图
6.4.3-1
資料編輯—基板
(
资料编辑-基板
)
画面
X(
mm
) Y(
mm
) 角度 ( )
1
A
1
X(mm)
Y(mm)
0
2
1
NC
A
B
(
A
)
角度
(
)
A
B
X(mm)
Y(mm)
3
4
X(mm)
Y(mm)
角度
(
)
不良標記 ID ( ID)
定位標記 ID ( ID)
ID
在
DAS
实施中使用基准区域
,
故必须登录为
1
。
项目名称 单位 缺省值
X mm 0.000
Y mm 0.000
角度
0.000
X
mm 0.000
Y
mm 0.000
△角度
0.000
不良標記 ID
ID
0
定位 ID ID
0
注意 :