P-324-001e - 第82页
-4 Fig. E1-3) T UNI (BASE:Document No.P-310-003 212 21 1 Fig. E1-3 架台上ベース Upper Frame Base 1 101-001 Fig. E1 Y サイズ 250mm 本体対応 Y SIZE 250mm FOR MAIN BODY

MEMO

-4 Fig. E1-3)T UNI
(BASE:Document No.P-310-003
212
211
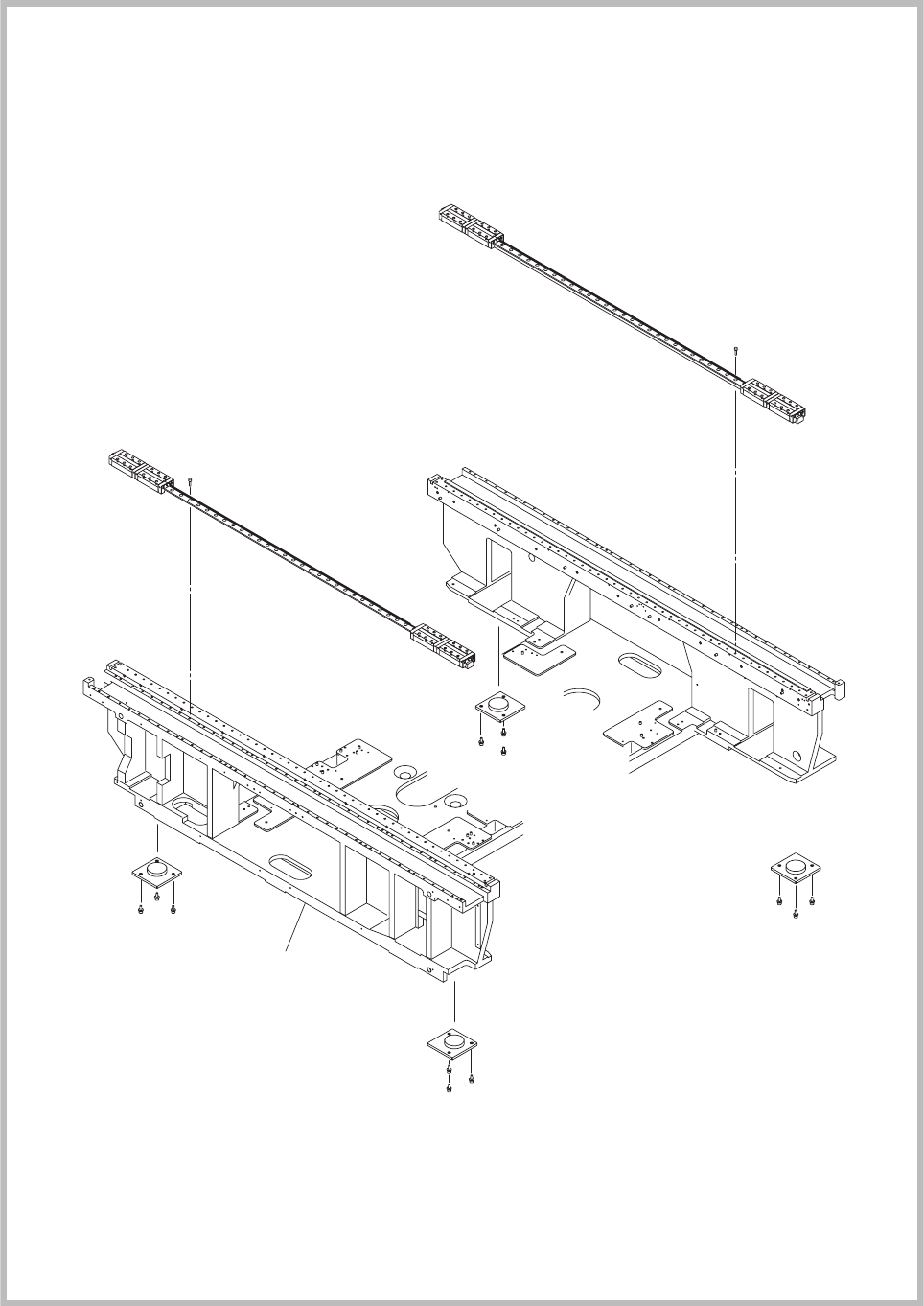
Fig. E1-3
架台上ベース
Upper Frame Base
1101-001
Fig. E1 Y
サイズ
250mm
本体対応
Y SIZE 250mm FOR MAIN BODY

Key No. PART No. PART NAME Q’ty
REMARKS
NOTE
211 0914DA2A FRAME(UPPER) 1 1091403A2D-001
212 0914DA2B FRAME(UPPER) 1 1091403A2D-002
Fig. E1
1101-001
Fig. E1-3
GS-S049-01