JUKI_FX-3R_MAINTE_CH - 第189页
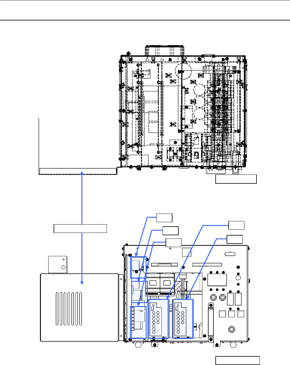
维修调整要领书 13 -4 13 -3- 1- 2. 电源装置构成图 ( STD 規格) 图 13-3-1-2-1 电源装置构成图 ※ 在上图中把 PSU 前面保护罩朝左偏 【正视所见】 PSU 前面保护罩 PS 5 PS1 PS 2 【顶视所见】 PS 3

维修调整要领书
13-3
13-3.
电源装置
13-3-1.
电源装置的构成
电源装置被在装置背面的左右两边安装了 2 个。图 13-3-1-2-1、图 13-3-1-2-2 表示构成。
电源装置由 DC 电源、控制用继电器、电路保护器等构成,向各装置(控制器,XY装置,Zθ 装置,
传送装置,贴装头装置等)供给 AC、DC 电源。
各 DC 电源的用途如下∶
• +6V (+6.3V~6.5V、PS1) 送料器(多层、32mm 纸带)控制用
• +24VA (+24±0.1V、PS2) 通用(控制器外面基板、步进驱动器等用)
• +24VB (+24±0.1V、PS3) Zθ 伺服放大器控制用
• +24VC (+24±0.1V、PS4) 安全电路驱动用(仅 EN 机)
• +24VD (+26±0.1V、PS5) ETF 电源用
13-3-1-1.
DC
电源电压等级的调整方法
表
13-3-1-1-1 DC
电源电压等级的设定
NO.
电源规格
电源代号
电源装置测定端子
电压调整值
1(※
)
+48V
- CN 039 1 脚(+48V)和 7 脚(+48VRTN) -
2
+6V
PS 1
CN 039 3
脚(
+6V
)和
9
脚(
+6VRTN
)
(+6.3
~
6.5V)
3
+24V
PS 2
CN 039 4
脚(
+24VA
)和
10
脚(
+24VARTN)
(+24V±0.1V)
4
+24V
PS 3
CN 039 5
脚(
+24VB
)和
11
脚(
+24VBRTN)
(+24V±0.1V)
5
+24V
PS 4
CN 039 6
脚(
+24VC
)和
12
脚(
+24VCRTN)
(+24V±0.1V)
6
+24V
PS 5
CN 039 2
脚(
+26V
)和
82
脚(
+24VRTN
)
(+26V±0.1V)
图
13-3-1-1-1
电源装置
CN039
• DC 电源输出电压调整用电源装置的 CN039(电源装置正面的插头)来进行。
• 加注※记号的№1 是不需调整的电源。
• 拉出 PSU BLACKET(PS1,PS3,PS4),或者调整位于 DC 电源正面的 PS2,PS5 等各 DC 电
源之输出电压可变电位器,使 No.2~6 的 DC 电源输出电压符合规格调整值。
注 1.
调整时,请注意电压值不能大于规格调整值。
注 2.
CN039-7、8 销,和有调整指示的电源以外的 GND 绝对不能共用(不能连接)。
注 3.
PS4 是 POWER UNIT (EN)安装的 EN 规格用的 DC 电源,POWER UNIT 上没有安装。
注 4.
进行 PS5 的电压调整时,请拆下电动台架的连接器之后再进行(请在无負荷的状
态下进行)。
注意
CN039
电源装置

维修调整要领书
13-4
13-3-1-2.
电源装置构成图
(STD 規格)
图
13-3-1-2-1
电源装置构成图
※ 在上图中把 PSU 前面保护罩朝左偏
【正视所见】
PSU前面保护罩
PS5
PS1 PS2
【顶视所见】
PS3

维修调整要领书
13-5
(EN 規格)
图
13-3-1-2-2
电源装置(
EN
)构成图
※ 在上图中把 PSU 前面保护罩朝左偏
【正视所见】
PSU前面保护罩
【顶视所见】
PS5
PS1
PS2
PS3
PS4