JUKI_FX-3R_MAINTE_CH - 第264页
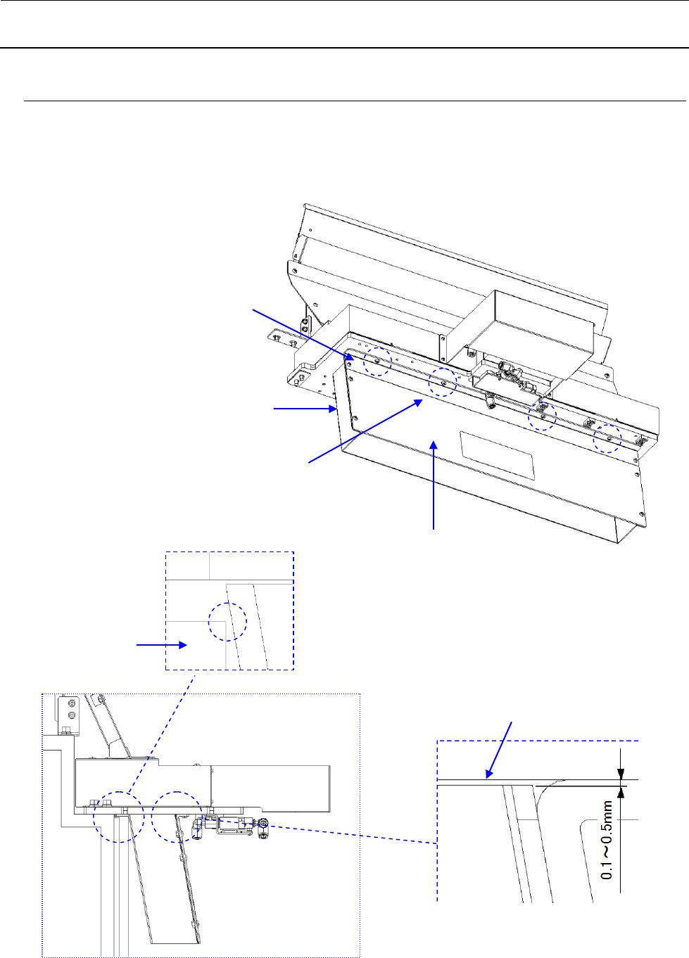
维修调整要领书 15 -8 15 -2- 1 . 下部排出导板的装配调整 1 ) 请把底盖角铁装到切带机底座底面上, 底部排出导向器与切带机底座底面之 Z 方向的空隙要调整 到 0.1 ~ 0.5mm 。同时,请确认不与护罩 FB_A 相干渉。 ※ 调整余量不足时,请松开护罩 FB_A /护罩 FB_ B 的装配螺丝进行调整。 图 15 - 2-6 下部排出导板的调整 40095334 底盖角铁 40095335 底部排出盖板 A 40…

维修调整要领书
15-7
图 15-2-5 上部排出导板的调整
紧顶
台架下降时
应无干渉
2±0.5mm
台架上升时
ETF

维修调整要领书
15-8
15-2-1.
下部排出导板的装配调整
1) 请把底盖角铁装到切带机底座底面上,底部排出导向器与切带机底座底面之 Z 方向的空隙要调整
到 0.1~0.5mm。同时,请确认不与护罩 FB_A 相干渉。
※ 调整余量不足时,请松开护罩 FB_A/护罩 FB_B 的装配螺丝进行调整。
图 15-2-6 下部排出导板的调整
40095334 底盖角铁
40095335 底部排出盖板A
40095333 底部排出导向器
SM3040652TN 圆头螺丝 M4 L=6
不要相互干渉
护罩FB_A
(机身底盖)
切带机底座底面

维修调整要领书
15-9
安装有固定电动台架时
1) 请在机身底盖(护罩 FB_A)上安装底部排出导向器(EO),与切带机底座开口部之 Y 方向
的空隙要调整到 0~0.5mm,与切带机底座底面之 Z 方向的空隙要调整到 0~0.3mm。
※ 调整余量不足时,请松开护罩 FB_A/护罩 FB_B 的装配螺丝进行调整。
2) 请把底盖角铁安装到切带机底座底面上。
3) 请把底部排出盖板(EO)装配到底部排出导向器(EO)及底盖角铁上。并且,与底盖角铁
的空隙要调整到 0.15~0.2mm。
图 15-2-7 下部排出导板的调整(固定电动台架)
切带机
底座底面
0~0.5mm
40095360 底部排出导向器(EO)
SM3051052TN
圆头螺丝 M5 L=10
护罩FB_B
护罩FB_A
切带机底座开口部截面
SM3051052TN
圆头螺丝 M5 L=10
40095361 底部排出盖板(EO)
40095334 底盖角铁
间隙:0.15~0.2mm