TR6DNR_TR6DNV_TR6DNX-Rev05 - 第26页
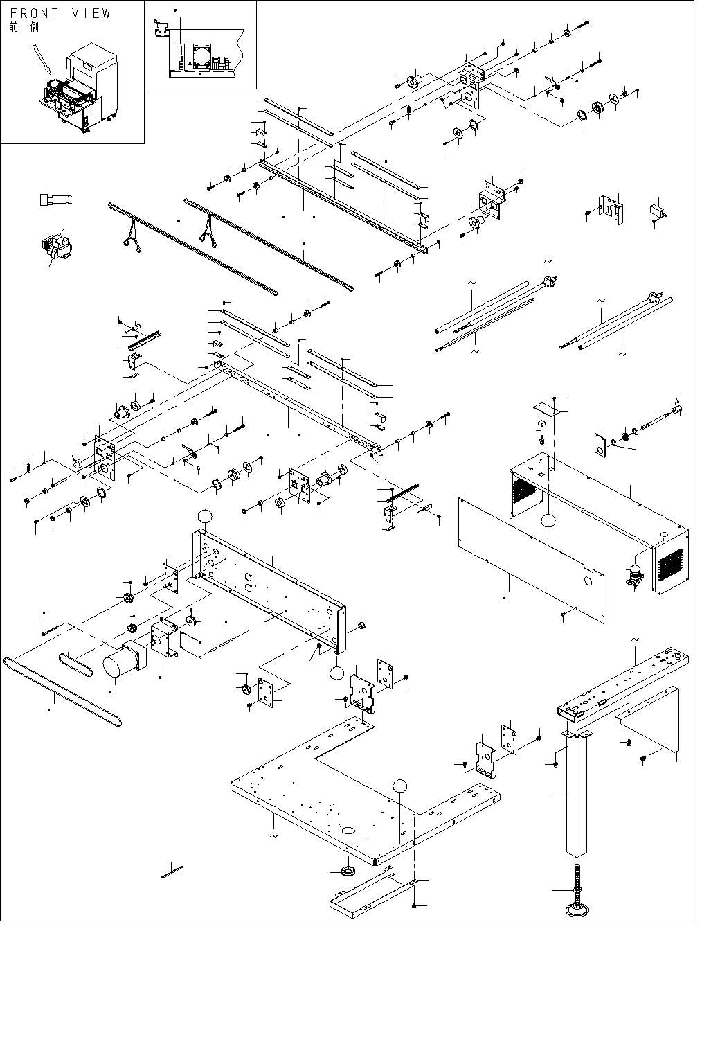
- 23 - 12. CONVEY OR UNIT コンベアユニット 13 4 7 12 10 6 8 72 78 78 72 70 76 57 33 85 83 85 83 24 23 24 23 41 41 42 15 34 35 62 61 62 99 11 7 11 7 10 3 1 1 7 11 6 32 29 29 40 38 36 39 42 38 36 40 38 36 39 38 36 18 17 19 22 21 2…

- 22 -
REF.NO NOTE PART NO D E S C R I P T I O N
品 名
Qty
1 400-49308 OP BOX UNIT 6D
OPボックスユニット6D
1
2 400-46251 HOD LCD ASM
HOD LCD組
(1)
3 400-48826 OP BOX
OPボックス
(1)
4 400-48827 OP BASE
OPベース
(1)
5 E2505-716-000 LCD COVER
LCDカバー
(1)
6 E2506-716-000 MOP MAGNET
MOPマグネット
(1)
7 E2502-716-000 MOP PANEL SPACER
OPパネルスペーサ
(1)
8 400-49936 OP SHEET 6D
OPシート6D
(1)
9 SL-4030681-SC SCREW M3 L=6
座金付きなべ小ねじ M3 L=6
(6)
10 HX-0035400-0B PCB SUPPORT L=8MM
スペーサー
(2)
11 HX-0035400-0D BASE PARTS
基板パーツ
(2)
12 SM-1030601-SC SCREW M3 L=6
皿ねじ M3X0.5 L=6
(12)
13 400-48828 STUD15.4
スタッド15.4
(4)
14 400-48829 STUD17
スタッド17
(2)
15 400-48830 STUD26.6
スタッド26.6
(2)
16 400-41206 HOD PCB ASM
HOD PCB組
(1)
17 WP-0320500-SC WASHER M3
平座金小型丸 M3
(6)
18 HN-0014900-00 CLAMP FILTER(L)
クランプフィルタ
(1)

- 23 -
12. CONVEYOR UNIT
コンベアユニット
13
4
7
12
10
6
8
72
78
78
72
70
76
57
33
85
83
85
83
24
23
24
23
41
41
42
15
34
35
62
61
62
99
11 7
117
103
117
11 6
32
29
29
40
38
36
39
42
38
36
40
38
36
39
38
36
18
17
19
22
21
20
61
23
24
40
A
A
40
2
11
77
70
76
77
53
128
1
9
1
9
96
98
63
80
81 122
69
75
77
14
124
27
127
28
28
30
30
31
32
31
49
46
45
44
48
47
43
51
52
37
52
50
41
42
24
23
43
48
44
45
47
46
49
51
52
52
50
68
50
66
67
68
66
67
71
74
69
74
72
70
76
78
77
78
72
71
70
76
75
77
77
73
79 123
83
82
82
24
23
84
85
82
24
23
84
85
82
82
82
82
83
23
24
85
86
88
92
94
11 3
11 5
11 3
11 5
62
64
65
100
100
101
102
102
62
110
104
106
107
111
109
5
83
41
42
55
89
90
91
89
90
89
90
91
91
91
89
89
89
92
94
26
126
25
B
B
56
54
58
59
60
11 2
11 8
95
11 9
121
120
10
8
62
16 125
3
129 130

- 24 -
NOTE( 注記 ) #01....FOR TR6DER
#02....FOR TR6DNR,TR6DNV
#03....FOR EN
#04....FOR TR6DXLX
#05....FOR TR6DNV
#06....FOR TR6DNR,6DNX(UNTIL M/C REV.E),
TR6DNV(UNTIL M/C REV.F)
#07....FOR TR6DNX(AFTER M/C REV.F),
TR6DNV(AFTER M/C REV.G)
#08....FOR TR6DNR,6DNX(UNTIL M/C REV.E),
TR6DNV(UNTIL M/C REV.F)
(400-45718:AC MOTOR S.P.C ACCESSORIES,QTY:4PCS)
#09....FOR TR6DNX(AFTER M/C REV.F),
TR6DNV(AFTER M/C REV.G)
(SM-6055552-TN:SCREW M5X55,QTY:4PCS)
REF.NO NOTE PART NO D E S C R I P T I O N
品 名
Qty
1 E3111-723-000 C BELT 6D
Cベルト6D
2
2 E4405-717-000 C BELT 1234-2GT-6
Cベルト1234−2GT−6
1
3 E1614-717-000 C BELT 252-3GT
Cベルト252−3GT
1
4 HB-0041400-00 RELAY LY2
リレー LY2
1
5 400-42045 CONVEYOR CN CIRCUIT BOARD ASM
コンベア CN基板組
1
6 400-45190 CONVEYOR L SENSOR ASM.
コンベアLセンサ組
1
7 HB-0012500-00 RELAY G2R-1-S
リレー G2R−1−S
1
8 400-45192 CONVEYOR R SENSOR ASM.
コンベアRセンサ組
1
9
#01
E2223-723-000 C BELT 6S
Cベルト6S
2
10 400-45198 EMERGENCY STOP SW ASM.
コンベア非常停止SW組
1
11
#01
E4405-717-000 C BELT 1234-2GT-6
Cベルト1234−2GT−6
1
12 400-45193 CONVEYOR RESET SW ASM.
コンベアリセットSW組
1
13 400-45075 CONDENSER ASM.
モ−タ用コンデンサ組
1
14
#06
400-45718 CONVEYOR MOTOR
搬送モータ
1
15 400-49022 C COVER A 6D
CカバーA 6D
1
16
#06
400-49023 C COVER B 6D
CカバーB 6D
1
17 SM-8050402-TP SCREW
止めねじ
4
18 400-13197 CONVEYOR COUPLING
コンベアカプリング
1
19 400-49185 HANDLE SH
ハンドル SH
1
20 RE-0800000-K0 E-SHAPED SNAP RING (8MM)
E形止め輪 8
2
21 SB-1100013-00 BEARING
ころがり軸受
1
22 400-48822 HANDLE SH BR
ハンドル SH BR
1
23 SB-1040001-00 BEARING
ミネチュアベアリング
16
24 E2111-715-000 CONVEYOR PULLEY
搬送プーリ
16
25 SM-8030602-TP SCREW M3X0.5 L=6
止めねじ M3X0.5 L=6
2
26
#06
400-00872 MOTOR PULLEY S
モータプーリ S
1
27
#06
400-49096 C MOTOR BR
CモータBR
1
28 SL-4031291-SC SCREW M3X12
なべ小ねじセムス M3X0.5 L=12
4
29 400-01078 SENSOR BRAKET B
センサブラケット B
2
30 SL-4041091-SC SCREW M4 L=10
なべ小ねじセムス M4X0.7 L=10
4
31
400-52500 SENSOR BR A
センサブラケット A
2
32 400-01076 SENSOR SLIDE PLATE
センサスライドプレート
2
33 400-49097 RAIL GUID A
レールガイド A
1
34 E1619-717-000 C PANEL
Cパネル
1
35 SM-0030601-SC SCREW M3X0.5 L=6
トラス小ねじ M3X0.5 L=6
2
36 SL-4030891-SC SCREW M3X8
なべ小ねじセムス M3 L=8
12
37 400-48819 RAIL GUIDE B
レールガイド B
1
38 E3931-750-000 PULLEY WASHER
プーリ スラスト ワッシャ
4
39 400-00840 DRIVE PULLEY R
ドライブプーリ R
2
40 E2160-721-000 PULLEY FLANGE
プーリフランジ
4
41 SB-8160001-00 BEARING
ころがり軸受
4
42 SM-6040802-TN SCREW
六角穴ボルト M4X0.7 L=8
16
43 400-50436 BRG BR
BRG BR
2
44 400-50437 BRG SH
BRG SH
2
45 SB-1040002-00 BALL BEARING
ボウルベアリング A
2
46 RE-0300000-K0 E-RING 3
E形止め輪 3
2
47 NM-6040001-SC NUT M4
六角ナット M4
2
48 400-50438 PULLEY SH
プーリ SH
2
49 RE-0600000-K0 E-RING 6
E形止め輪 6
2
50 NM-3040510-SL FLANGE NUT
フランジ付きナット
8
51 E2215-723-000 PULLEY SPACER 10.4
プーリスペーサ10.4
6
52 SM-4042301-SC SCREW M4X0.7 L=23
なべ小ねじ M4X0.7 L=23
8
53
#06
400-45718 AC MOTOR S.P.C.
AC モータ S.P.C.
1
54 400-00478 STUD 110
スタッド 110
4
55 400-49098 RAIL GUIDE C
レールガイド C
1
56 400-48824 BELT COVER A
ベルトカバー A
2
57 400-48820 RAIL GUIDE D
レールガイド D
1
58 SL-4040891-SC SCREW M4 L=8
座金付きなべ小ねじ M4 L=8
4
59 400-48825 BELT COVER B
ベルトカバー B
2
60 SL-4030891-SC SCREW M3X8
なべ小ねじセムス M3 L=8
4
61 E2218-723-000 ADJUST P
アジャストP
2
62 SL-4040891-SC SCREW M4 L=8
座金付きなべ小ねじ M4 L=8
19
63 400-48857 C FRAME 6D
Cフレーム6D
1
64
HX-0018800-0D BUSH
ブッシュ
2
65 400-48815 C FRAME B(CE)
CフレームB(CE)
1
66 400-50439 SP
スプリング
2
67 SM-6041202-TN SCREW M4X0.7 L=12
六角穴ボルト M4X0.7 L=12
2
68 NM-6040001-SC NUT M4
六角ナット M4
2
69
#02
400-48869 RAIL SPACER 6D
レールスペーサ 6D
2
70 400-48818 RAIL SPACER 6S
レールスペーサ 6S
4
71
#03
E2507-723-000 BELT COVER D
ベルトカバーD
2
72 E2046-725-000 PWB INNER
PWBインナ
4
73 400-48867 C RAIL A 6D
C レール A 6D
1
74
#03
E2506-723-000 BELT COVER C
ベルトカバーC
2
75 E3106-723-000 PWB GUIDE 6D
PWBガイド6D
2
76 E2208-723-000 PWB GUIDE 6S
PWBガイド6S
4
77 SL-4031091-SC SCREW M3 X 10
なべ小ねじセムス
16
78 SL-4031091-SC SCREW M3 X 10
なべ小ねじセムス
8
79
#01
400-49007 C RAIL EX A
CレールEX A
1
80 400-48868 C RAIL B 6D
CレールB 6D
1
81
#01
400-49008 C RAIL EX B
CレールEX B
1
82 SL-4030891-SC SCREW M3X8
なべ小ねじセムス M3 L=8
14
83 NM-3040510-SL FLANGE NUT
フランジ付きナット
8
84 E2214-723-000 PULLEY SPACER 8.4
プーリスペーサ8.4
8
85 SM-4042301-SC SCREW M4X0.7 L=23
なべ小ねじ M4X0.7 L=23
8
86 E2222-723-000 DRIVE SH
ドライブSH
1
87
#01
E2250-723-000 DRIVE SH (E)
ドライブSH(E)
1
88
#04
400-94982 DRIVE_SH_XL
ドライブシャフト_XL
1
89 SB-1080002-00 SIDE BEARING
サイドベアリング
6
90 E2011-721-000 STOPPER COLLAR
ストッパカラー
3
91 E2220-723-000 SLIT COLLAR
スリットカラー
4
92 400-48960 SCREW SH
スクリュー SH
2
93
#0
1
400-49009 SCREW SH EX
スクリュー SH EX
2
94
#04
400-94984 SCREW_SH_XL
スクリューシャフト_XL
2
95 HX-0018800-0A BUSH
ブッシュ
1
96 400-48870 C BASE 6D
Cベース6D
1
97
#04
400-94979 C_BASE_XL
コンベアベース_XL
1
98
#01
400-49260 C BASE EX
CベースEX
1
99 E1104-717-000 XY MOTOR PULLEY
XYモータープーリー
1
100 SL-6040892-TN BOLT
座金付き六角穴ボルト
6
101 400-48814 C FRAME B
C フレーム B
1
102 E2218-723-000 ADJUST P
アジャストP
2
103 E2251-723-000 C O-S PULLEY
C開閉プーリ
1
104 400-48991 C BASE SUPPORT
C ベースサポート
2
105
#01
400-48997 C BASE SUPPORT EX
C ベースサポート EX
2
106
#04
400-94980 C_BASE_SUPPORT_XL
コンベアベースサポート_XL
2
107 SL-6051092-TN BOLT
座金付き六角穴ボルト
4
108 400-48902 CONV SUPPORT BR
CONV サポート BR
2
109 SL-6041092-TN SCREW
座金付き六角穴ボルト
8
110
#03
E2508-723-000 C CABLE COVER
Cケーブルカバー
1
111
#03
SL-4040891-SC SCREW M4 L=8
座金付きなべ小ねじ M4 L=8
4
112 HX-0009600-00 EDGE BUSHING
エッジングブッシュ
1
113 E2219-723-000 GUIDE SH
ガイドSH
2
114
#01
E2248-723-000 GUIDE SH (E)
ガイドSH(E)
2
115
#04
400-94983 GUIDE_SH_XL
ガイド゛シャフト_XL
2
116 E1613-717-000 C DRIVE PULLEY
Cドライブプーリ
1
117 E2211-524-000 SCREW
ダブルポイントセットSC
6
118 SM-0040601-SC SCREW M4X0.7 L=6
トラス小ねじ M4X0.7 L=6
6
119
#04
E2234-723-000 C_SUPPORT_FOOT
C
_サポート_フット
2
120
#04
SL-6061292-TN SCREW
座金付き六角穴ボルト
4
121
#04
E4374-172-000 ADJUSTER(D-2A TYPE)
アジャスター(D−A2型)
2
122
#05
401-18286 C RAIL B 10V
CレールB 10V
1
123
#05
401-18285 C RAIL A 10V
CレールA 10V
1
124
#07
402-21161 S.C.P. ATTACHED CABLE ASM SET
S.C.P.束線組セット
1
125
#07
402-21167 C_COVER_B_6D
CカバーB_6D
1
126
#07
402-21166 C_MOTOR_PULLY_S
CモータープーリーS
1
127
#07
402-21165 C_MOTOR_BR
CモーターBR
1
128
#07
402-21161 S.C.P. ATTACHED CABLE ASM SET
S.C.P.束線組セット
1
129
#08
--
−
-
130
#09
--
−
TR 6
DER 用
TR 6 DNR,TR 6 DNV 用
EN 用
TR 6 DXLX 用
TR 6 DNV 用
TR 6 DNR,TR 6 DNX(マシン REV.E 以前),
TR 6 DNV(マシン REV.F 以前)用
TR 6 DNX(マシン REV.F 以降),
TR 6 DNV(マシン REV.G 以降)用
TR 6 DNR,TR 6 DNX(マシン REV.E 以前),
TR 6 DNV(マシン REV.F 以前),
(400−45718:AC モータ S.P.C の付属品 数量4)
TR 6 DNX(マシン REV.F 以降),
TR 6 DNV(マシン REV.G 以降)用
(SM −6055552− TN:六角穴ボルト M 5 L =55 数量4)
-