SP60P-L Parts list(Mechanical)20120628 - 第91页
Ref No. Remark s R 1 Q'ty 10-C 搬送 コンベア(L) Tran sport Conv ey or(L) イラスト No. Part No. 品 名 品番 数量 R 2 パーツリスト Kit N o . キット品 番 Kit Name キット名称 KXFX03BT A00 Part Name 備 考 セクションNo. PARTS LIST Section No. R 3 BRACKET 1 1 K …

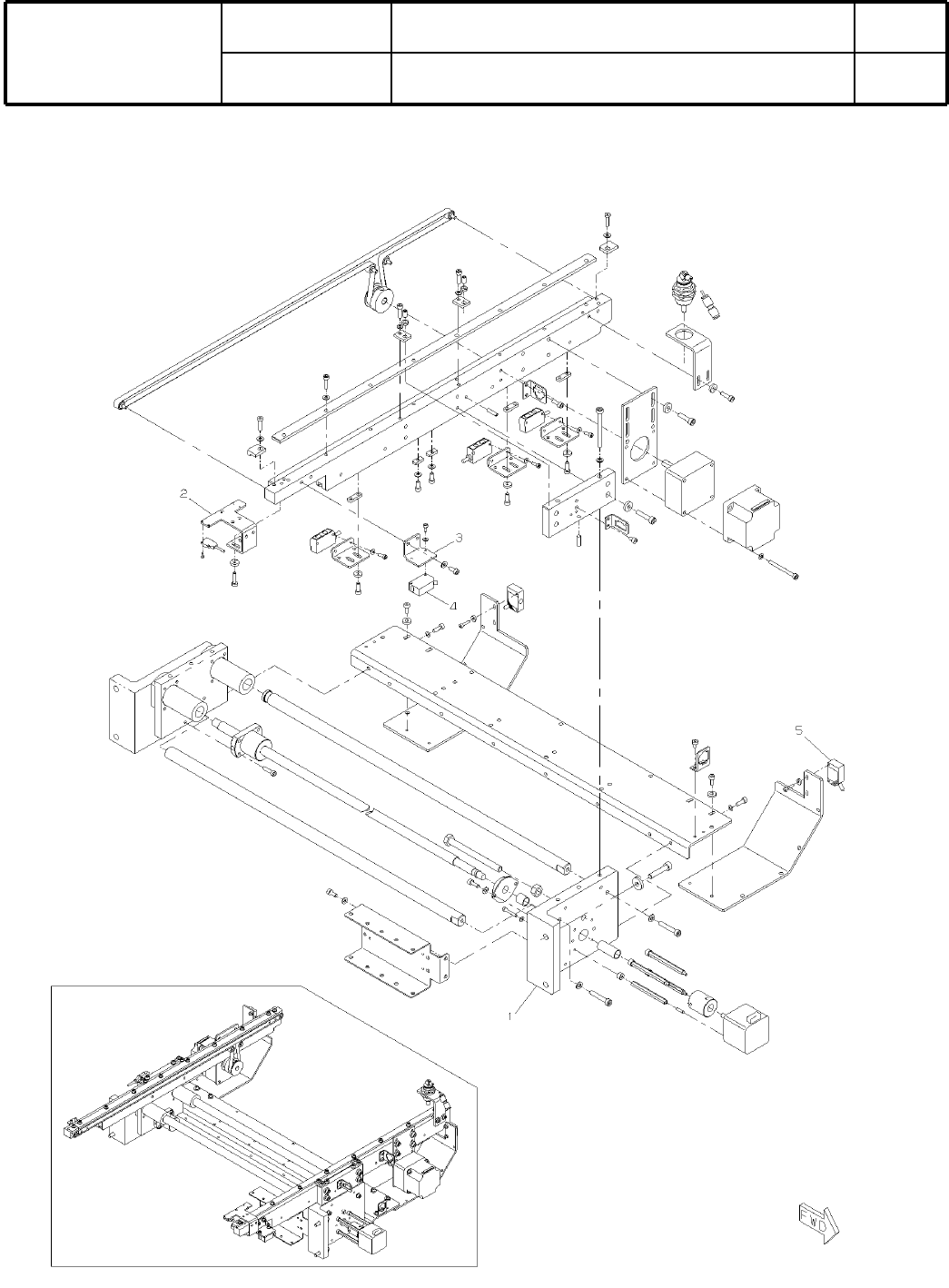
10-C
搬送
コンベア(L)
Transport Conveyor(L)
パーツレイアウト
Ki
t
N
o
.
キット
品番
Kit Name
キット名称
KXFX03BTA00
セクションNo.
PARTS LAYOUT
Section No.
--
M71
( KKXFX03BTA00-14-3 )

Ref
No.
Remarks
R
1
Q'ty
10-C
搬送
コンベア(L)
Transport Conveyor(L)
イラスト
No.
Part No.
品 名品番 数量
R
2
パーツリスト
Kit N
o
.
キット品
番
Kit Name
キット名称
KXFX03BTA00
Part Name
備 考
セクションNo.
PARTS LIST
Section No.
R
3
BRACKET
1
1 KXFB031GA01
BRACKET
1
2 KXFB0HBUA00
M72
--
( KKXFX03BTA00-14-3 )

10-D
搬送
コンベア(L)
Transport Conveyor(L)
パーツレイアウト
Ki
t
N
o
.
キット
品番
Kit Name
キット名称
KXFX03BTA00
セクションNo.
PARTS LAYOUT
Section No.
--
M73
( KKXFX03BTA00-14-4 )