00196708-02-BA-SX4DX4-ZH - 第311页
用户手册 SIPLACE SX4/DX4 6 贴片机扩展部件 SC.704.xx 以上软件版本 2011 年 2 月 中文版 6.4 SIPLACE X 系列料车的装卸站 311 6 图 6.4 - 2 装卸站 - 尺寸 (单位毫米) ,连接点 图 6.4 - 2 的图例,第 311 页 (1) 压缩空气连接 (2) CAN 总线连接 (3) 电源连接 6.4.2 技术数据 6 尺寸 长 x 宽 950 mm x 930 mm 高度 9…

6 贴片机扩展部件 用户手册 SIPLACE SX4/DX4
6.4 SIPLACE X 系列料车的装卸站 SC.704.xx 以上软件版本 2011 年 2 月 中文版
310
图 6.4 - 1
的图例,第 309 页
(1) 装卸站
(2) X 系列料车装卸装置
(3) 带有警告符号的保护板 W204
(4) 导向和装卸转换料台的导轨
(5) 锁定料车的夹持杆
(6) EDIF (能量和数据接口)
装卸站的主要作用如下:
- 为料车和 X 供料器组件供能
- 为料车和 X 供料器组件提供压缩空气
- 在预安装位置的 PC 和供料器组件之间提供通信基础设施
在装卸站的帮助下,操作员可在生产环境外对 X 供料器组件执行功能测试并可检查安装情况。 共
有两排,每排四个装卸站,通过预安装 PC 的 CAN 总线相连。 每个装卸站都有其自己的电源和压
缩空气连接。
可根据 PCB 传送导轨的高度调整装卸站的料车装卸装置 (图 6.4 - 1
中的 2,第 309 页)。 要执
行预安装任务,要将料车推入装卸站 (图 6.4 - 1
中的 1,第 309 页)。 料车通过料车侧面的滚柱
轴承沿着装卸装置导轨滑动,最远可到能量和数据接口连接。 带有供料器组件 EDIF 的转换料台,
其位置根据料车装卸装置的 EDIF (图 6.4 - 1
中的 5,第 309 页)精确确定,并用两个夹持杆固
定。 将料车推入装卸站后,保护板 (图 6.4 - 1
中的 3,第 309 页)可防止人们触及料车滚轮。

用户手册 SIPLACE SX4/DX4 6 贴片机扩展部件
SC.704.xx 以上软件版本 2011 年 2 月 中文版 6.4 SIPLACE X 系列料车的装卸站
311
6
图
6.4 - 2
装卸站
-
尺寸 (单位毫米),连接点
图 6.4 - 2 的图例,第 311 页
(1) 压缩空气连接
(2) CAN 总线连接
(3) 电源连接
6.4.2 技术数据
6
尺寸
长 x 宽
950 mm x 930 mm
高度 900 mm PCB 传送导轨高度, 864 mm
930 mm PCB 传送导轨高度, 894 mm
950 mm PCB 传送导轨高度, 914 mm
重量
120 kg
压缩空间压力值
p
最小
p
最大
0.5 MPa (5.0 bar)
1.0 MPa (10.0 bar)
压缩空气连接 连接插头 KS 2-M5-A

6 贴片机扩展部件 用户手册 SIPLACE SX4/DX4
6.4 SIPLACE X 系列料车的装卸站 SC.704.xx 以上软件版本 2011 年 2 月 中文版
312
6
6
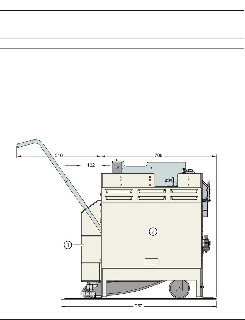
6.4.3 带有装卸料车的装卸站的尺寸
6
图
6.4 - 3
带有装卸料车的装卸站
-
尺寸,单位毫米
(1) 料车
(2) 装卸站
压缩空气消耗量
50 Nl/min
a
电源电压
88 - 264 V~
额定电流
3.5 A (230 V~)
7 A (115 V~)
标准视在功率
0.8 kW
保险丝
2 x 8 A
a) 在温度为 20°C、压力为 1013 hPa 的正常大气环境下