DECAN_S2_TRM(Ver2.1_CS17.02) - 第187页

Page +$1:+$ 185 DECAN S2 Electric Power (3/9) NO. P ART NO. P ART NAME Q'TY Old No. Supply Supply L T Reference 1 AM03-0054 90A CABLE ASSY -MC1_TB1 1 2 AM03-0147 23A CABLE ASSY -FX,FS SER VO POWER 1 AM03-005491A 3 A…

100%1 / 382
Page
+$1:+$
184
DECAN
S2
Electric Power (3/9)
1
2 3 4 5
22L1
22L3
22L2
22T
22R
SM471_PW016
0.75mm
PW471_PW017
0.75mm
-TB1 (21~40 : 3Ø 220V)
FROM CP3
-MC1
AC220V
22R
22S
22T
(LC1D096BD-20A)
AM03-005490A
PW471_PW019
0.75mm
PW471_PW018
0.75mm
SM471_PW115
AM03-005491A AM03-005492A AM03-005494AAM03-005493A
18B17B
19B
21B
20B
22B
15B
13B
16B
14B21A
26A
17A
19A
21A
1
3
5
2
4
6
18C
22C
16C
14C
20C
17C
19C
21C
15C
13C
DRIVERDRIVER
PE11
U
-M1
3~
M
WV E
3~
-M2
M
UV
PE12
W E
L3
SERVO
r
-SD1
L1
t
SERVO
rt
-SD2
L3L1
DRIVERDRIVER
PE13
U
-M3
3~
M
VW E V
M
3~
-M4
U
PE14
W E
SERVO
r
-SD3
L1
t
SERVO
t
L3
r
-SD4
L2 L3L1
2 2
50W
FS-AXIS
750W
FX-AXIS
50W
RS-AXIS
750W
RX-AXIS
V U
PE18
W
r
L1
t t
2
1KW
U
-M3
L1
t
DRIVERDRIVER
PE17
U
-M3
3~
M
2
W E V
M
3~
-M4
E
SERVO
-SD7
L2
SERVO
L3
r
-SD8
L2 L3L1
1KW
RY1-AXIS RY2-AXIS
DRIVERDRIVER
PE15
3~
M
VW E V
M
3~
-M4
U
PE16
W E
SERVO
r
L2
t
SERVO
L3
r
-SD6
L2 L3L1
1KW
FY1-AXIS
1KW
FY2-AXIS
-SD5
L2
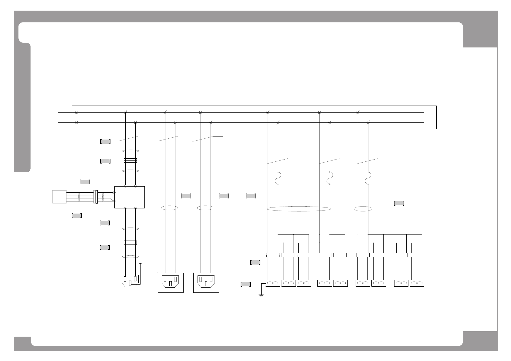
Page
+$1:+$
185
DECAN
S2
Electric Power (3/9)
NO. PART NO. PART NAME Q'TY Old No. Supply Supply LT Reference
1 AM03-005490A CABLE ASSY-MC1_TB1 1
2 AM03-014723A CABLE ASSY-FX,FS SERVO POWER 1 AM03-005491A
3 AM03-014724A CABLE ASSY-RX,RS SERVO POWER 1 AM03-005492A
4 AM03-005493A CABLE ASSY-FY1_FY2_SERVO_POWER 1
5 AM03-005494A CABLE ASSY-RY1_RY2_SERVO_POWER 1
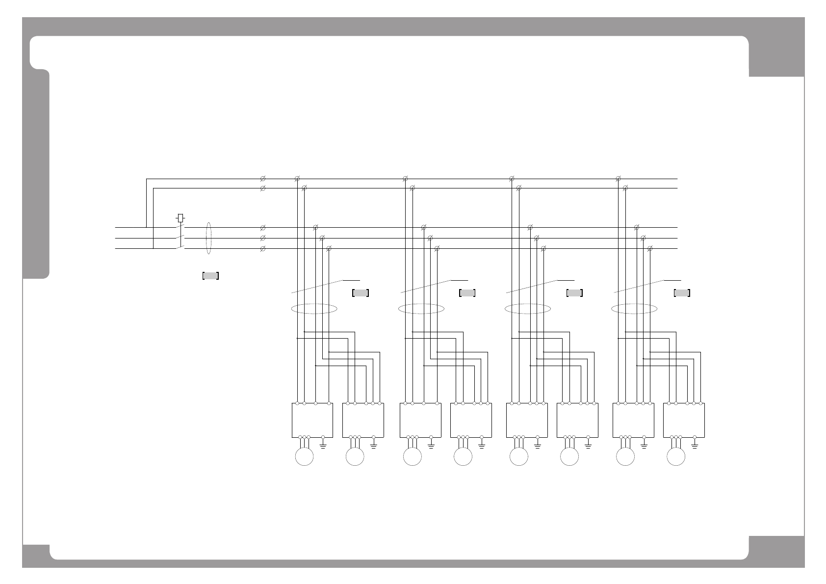
Page
+$1:+$
186
DECAN
S2
Electric Power (4/9)
1
2
2
1
2
1
3 4 5
6
7
8
CONTROL BOX
1L1 1L2
FROM CP1
0.75mm
1L2
1L1
0.75mm
-FAN6
(RIGHT SIDE)
-FAN1
-FUSE5 (AC250V,5A)
-FAN2
0.75mm
1L1 1L2(F3) 1L1
0.75mm
1L1 1L2
1L1 1L2 1L1 1L2
0.75mm
-FUSE3 (AC250V,5A)
-FAN3
(FRONT)
-FAN4
1L1
1L1
1L2(F4)
-FUSE4 (AC250V,5A)
1L2
(SERVO DRIVER RACK)
-FAN5
1L2(F5)
1L21L1
AC220V
0.75mm
SM-FAN00
J90831088B
912
58
RY 11
SC
+24V
24G
AM03-011247A
AM03-011278A
13
14
SM511_PW149-1
(PC RACK)
FRONT MONITOR REAR MONITOR
SM511_PW025
SM511_PW026
J90833316A
(중판)
-FAN8
(REAR)
-FAN7
AM03-011274A
RELAY-BK2
RELAY-BK2
SM511_PW149
SM511_PW149-1
SM511_PW149
-CN24
AM03-011275A
AM03-011274A
AM03-011275A
AM03-011274A
SM511_PW149
AM03-011275A
SM511_PW149-1
AM03-010921A
AM03-010922A
SM511_PW112
SM511_PW113
SM33_PW026
PUMP_FAN
B
6A
6C
1A 1C
7A
2A 3A
AA
B
8A 6D
6A
A
2B
7D
B
8D
3B
12 12 12 12 12 121212
78
78
56
56
9
10
11
12
9
10
11
12
1
2
3
4
12
2
PE03
2
2 2
2
FG
2
YLP-16V
YLR-16V
YLP-16V
YLR-16V