DECAN_S2_TRM(Ver2.1_CS17.02) - 第309页
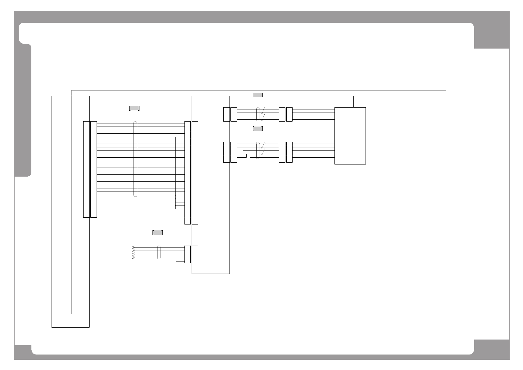
Page +$1:+$ 307 DECAN S2 Axis IO Board (12/16) NO. P ART NO. P ART NAME Q'TY Old No. Supply Supply L T Reference 1 AM03-012623A CABLE ASSY -WD_DRV_CMD_AXIO 1 2 AM03-012622A CABLE ASSY -SW_WD_SERVO_POWER 1 3 AM03-012…

Page
+$1:+$
306
DECAN
S2
Axis IO Board (12/16)
AXIO BD #1
BOARD
WD
DRIVER
CN23
SM511_VM005-1
CW
AXIO#1-CN23
AM03-012623A
3
4
5
6
13
-
7
29
30
27
31
37
-
39
41
21
22
48
49
23
24
25
36
38
9
PULSE
*PULSE
SIGN
*SIGN
SG
-
+24V
/S-ON
+24V
GAIN
/ALMRST
ALM(ALM 1)
-
INP
-COM
A
/A
B
/B
C
/C
SG
SG
SG
SG
WD-DRV
1
7
9
-
27
17
23
22
-
24
29
2
4
10
14
16
-
8
-
SG
WD-MD
U
V
W
E
U
V
W
E
1
2
3
4
SM511_MD022-1
AM03-012614A
WD_PW
06JFAT-SAXGF
+5V
5G
N/C
N/C
WD_DRV_X6
1
2
3
4
SD 5
SD/ 6
4
5
2
3
6
1
2108342-1 (6P) 172160-1
WD
MOTOR
1
2
3
4
WD_EN
SM511_MD023-1
AM03-012615A
172159-1
3
19
21
8
6
-
-
-
-
-
501189-3010
30 -
-
50
SM-50J
1
7
9
-
27
17
23
22
-
24
29
2
4
10
14
16
-
3
19
21
8
6
-
-
-
-
-
30
/CW
CCW
/CCW
+COM
/SON
CLR
GAIN
/ALMRST
/ALM
INP
-COM
EA
/EA
EB
/EB
EZ
/EZ
GND
3
4
5
6
13
-
7
29
30
27
31
37
-
39
41
21
22
48
49
23
24
25
36
38
9
8
-
-
-
50
r
t
L1
L2
L3
r
t
L1
L2
L3
WD-PWR
r
t
L1
L2
L3
SM511_PW018
AM03-012622A
TB1-14A
TB1-16A
TB1-18A
TB1-22A
05JFAT-SAXGF
1
2
3
4
5
6
4
5
2
3
6
1
SINGLE CONV
1
3
4
2

Page
+$1:+$
307
DECAN
S2
Axis IO Board (12/16)
NO. PART NO. PART NAME Q'TY Old No. Supply Supply LT Reference
1 AM03-012623A CABLE ASSY-WD_DRV_CMD_AXIO 1
2 AM03-012622A CABLE ASSY-SW_WD_SERVO_POWER 1
3 AM03-012614A CABLE ASSY-WD_MOTOR_POWER 1
4 AM03-012615A CABLE ASSY-WD_MOTOR_ENC 1

Page
+$1:+$
308
DECAN
S2
Axis IO Board (13/16)
10
11
12
13
1
2
3
SM511_CS205-1
AM03-011147B
IN-F-IN
14
15
16
17
18
19
20
21
22
23
24
25
26
27
28
29
30
31
32
4
5
6
7
8
9
1
2
3
L-FDU-32P
1
2
3
IN-F-WT
1
2
3
IN-F-BD-OUT
1
2
3
IN-BELT1
4
1
2
3
1
2
3
1
2
3
1
2
3
4
SM511_CS209
AM03-011244A
1
2
3
IN-F-IN
1
2
3
IN-F-WT
1
2
3
IN-F-BD-OUT
1
2
3
1
2
3
1
2
3
SM511_CS205-3
AM03-011149B
갈
흑
청
F PCB In Sensor
갈
흑
청
F PCB Wait Sensor
SM511_CS205-4
AM03-011150A
RED
YELLOW
BLUE
ORANGE
Belt #1
MOTOR
In Front
1
3
4
6
2
5
1
3
4
6
2
5
10
11
12
13
14
15
16
17
18
19
20
21
22
23
24
25
26
27
28
29
30
31
32
4
5
6
7
8
9
2
3
1
FRONT CONVEYOR SENOR IF BD
BELT DRVER
OPTION-CONV Full Dual
1 2
4
3