DECAN_S2_TRM(Ver2.1_CS17.02) - 第336页
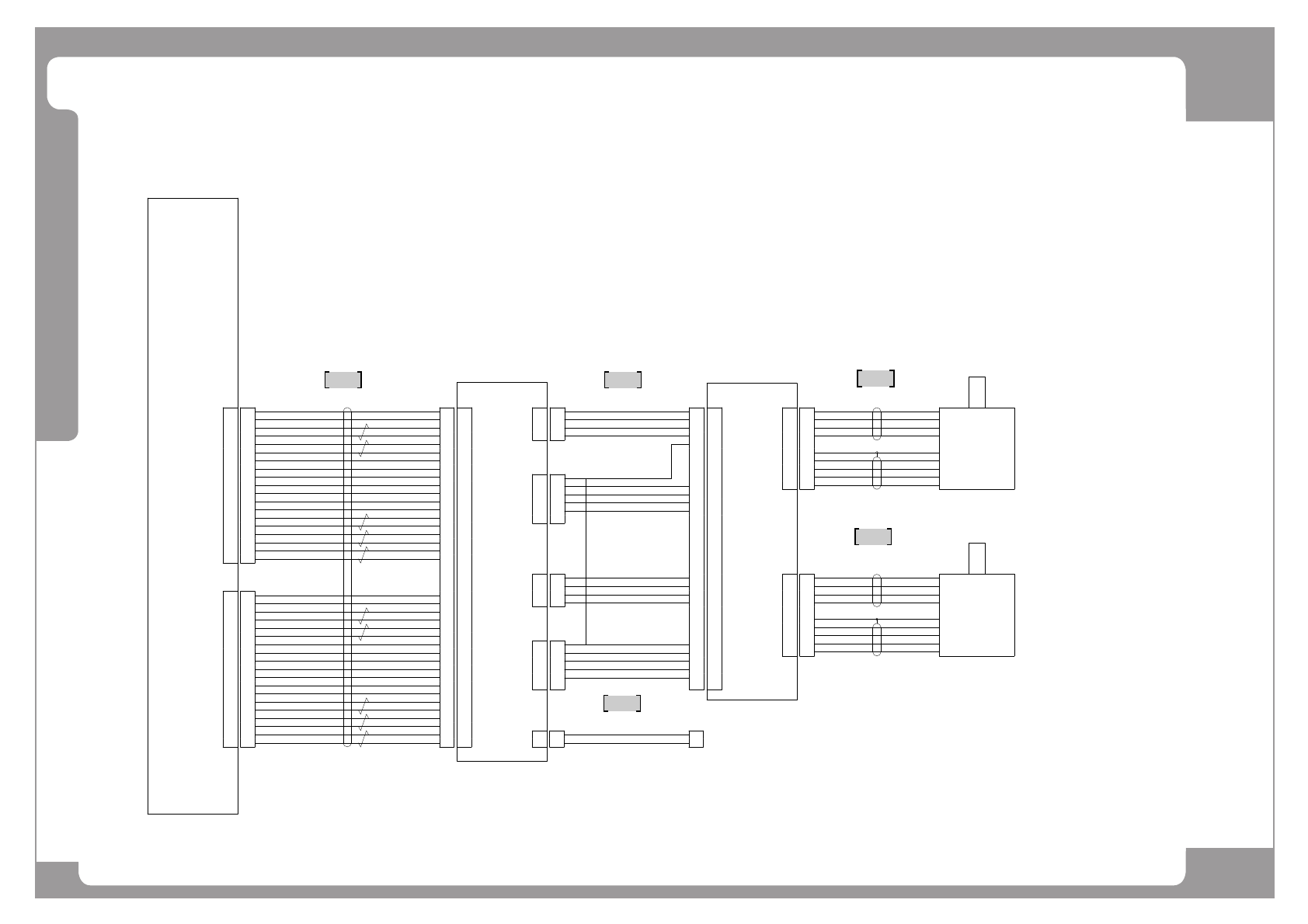
Page +$1:+$ 334 DECAN S2 Motor IF Board (2/18) 1 2 3 4 CN13 Front Z34 CN10 SM471_VM009-2 DRIVER 27 17 1 3 +COM /SON CW /CW AM03-005565A AXIO-CN13 Z34-CN10 7 9 19 21 CCW /CCW CLR GAIN 23 22 24 29 /ALMRST /ALM INP -COM 6 2…

Page
+$1:+$
333
DECAN
S2
Motor IF Board (1/18)
NO. PART NO. PART NAME Q'TY Old No. Supply Supply LT Reference
1 AM03-010949A CABLE ASSY-AXIO_BD_2_PWR 1
2 AM03-005564A CABLE ASSY-Z12_DRV_COMMAND 1
3 AM03-013438A CABLE ASSY-SM511 FLAT 1 1 AM03-010515C/ AM03-010515D
4 AM03-010892A CABLE ASSY-Z1_MOTOR 1
5 AM03-010893A CABLE ASSY-Z2_MOTOR 1
6 AM03-010924A CABLE ASSY-Z_DRIVER_PW_JUMPER 1

Page
+$1:+$
334
DECAN
S2
Motor IF Board (2/18)
1 2
3
4
CN13
Front Z34
CN10
SM471_VM009-2
DRIVER
27
17
1
3
+COM
/SON
CW
/CW
AM03-005565A
AXIO-CN13 Z34-CN10
7
9
19
21
CCW
/CCW
CLR
GAIN
23
22
24
29
/ALMRST
/ALM
INP
-COM
6
2
4
8
GND
EA
/EA
EB
10
14
16
/EB
EZ
/EZ
27
17
1
3
7
9
19
21
23
22
24
29
6
2
4
8
10
14
16
CN14
27
17
1
3
+COM
/SON
CW
/CW
AXIO-CN14
7
9
19
21
CCW
/CCW
CLR
GAIN
23
22
24
29
/ALMRST
/ALM
INP
-COM
6
2
4
8
GND
EA
/EA
EB
10
14
16
/EB
EZ
/EZ
27
17
1
3
7
9
19
21
23
22
24
29
6
2
4
8
10
14
16
501189-3010
501189-3010
1
13
3
4
5
6
14
15
16
17
18
20
2
7
8
9
10
11
12
21
33
23
24
25
26
34
35
36
37
38
40
22
27
28
29
30
31
32
UL20276 10P*28AWG
1
13
3
4
5
6
14
15
16
17
18
20
2
7
8
9
10
11
12
21
33
23
24
25
26
34
35
36
37
38
40
22
27
28
29
30
31
32
501189-4010
+24V
SON3-C#
POUT3+
POOUT-
PDIR3+
PDIR3-
CLR3-C#
GAIN3-C#
ALM_RS3-C#
ALM3-C#
INP3-C#
24GND
GND
EA3+
EA3-
EB3+
EB3-
EZ3+
EZ3-
+24V
SON4-C#
POUT4+
POOUT-
PDIR4+
PDIR4-
CLR4-C#
GAIN4-C#
ALM_RS4-C#
ALM4-C#
INP4-C#
24GND
GND
EA4+
EA4-
EB4+
EB4-
EZ4+
EZ4-
AXIO BD #2
BOARD
A1
A2
A4
A5
MOT-CN12
CN12
MOTOR I/F BD #1
U(Z1)
V(Z1)
W(Z1)
E(Z1)
1
2
3
4
6
2
3
4
5
1
6
2
3
4
5
1
FG
SD
/SD
+5V
GND
1
2
3
4
Z3-PW
Z3-EN
43645-0400
43025-0600
A9
A10
A7
A8
B1
B2
B4
B5
1
2
3
4
6
2
3
4
5
1
6
2
3
4
5
1
FG
SD
/SD
+5V
GND
1
2
3
4
Z4-PW
Z4-EN
43645-0400
43025-0600
B6
B9
B10
B7
B8
A1
A2
A4
A5
A9
A10
A7
A8
B1
B2
B4
B5
B6
B9
B10
B7
B8
SD(Z1)
/SD(Z1)
+5V(Z1)
5G(Z1)
1-1827864-0 (X)
A6 FGA6
U(Z2)
V(Z2)
W(Z2)
E(Z2)
SD(Z2)
/SD(Z2)
+5V(Z2)
5G(Z2)
FG
SM511_FL001(8.9)
AM03-010515A
EN
PW
EN
PW
U
V
W
E
U
V
W
E
A1
A2
B1
B2
MOT-CN2
SM511_MD021
AM03-010894A
CN2
U
V
W
PE
B3
A3
A4
B4
A5
B5
FG
5V
GND
SD
SD#
A1
A2
B1
B2
B3
A3
A4
B4
A5
B5
HEAD #1
Z3
MOTOR
RED
WHITE
BLACK
BLACK
SHIELD
WHITE
BLACK
SKY BLUE
VIOLET
Z3
1-1827864-5 (X) MNMA2ACB2A
A1
A2
B1
B2
MOT-CN7
SM511_MD022
AM03-010895A
CN7
U
V
W
PE
B3
A3
A4
B4
A5
B5
FG
5V
GND
SD
SD#
A1
A2
B1
B2
B3
A3
A4
B4
A5
B5
HEAD #1
Z4
MOTOR
RED
WHITE
BLACK
BLACK
SHIELD
WHITE
BLACK
SKY BLUE
VIOLET
Z4
1-1827864-5 (X) MNMA2ACB2A
5
1
2
1
2
1
2
SM511_PW031
AM03-010924A
+24V
24G
Z34 DRVIER

Page
+$1:+$
335
DECAN
S2
Motor IF Board (2/18)
NO. PART NO. PART NAME Q'TY Old No. Supply Supply LT Reference
1 AM03-005565A CABLE ASSY-Z34_DRV_COMMAND 1
2 AM03-013438A CABLE ASSY-SM511 FLAT 1 1 AM03-010515C/ AM03-010515D
3 AM03-010894A CABLE ASSY-Z3_MOTOR 1
4 AM03-010895A CABLE ASSY-Z4_MOTOR 1
5 AM03-010924A CABLE ASSY-Z_DRIVER_PW_JUMPER 1