00198710-01_UM_X-Serie-S_DE - 第215页
Betriebsanleitung SIPLACE X-Serie S 4 Aufstellen und Inbetriebnahme Ab Softwareversion 713.0 Ausgabe 11/2019 4.3 Den Bestückautomaten aufstellen 215 4.3.7 Abst andsmaße der Maschinenfüße und der festen LP-T ransportkante…

4 Aufstellen und Inbetriebnahme Betriebsanleitung SIPLACE X-Serie S
4.3 Den Bestückautomaten aufstellen Ab Softwareversion 713.0 Ausgabe 11/2019
214
Justieren Sie die Einstellschraube M24x2x120 (Pos. 3 in Abb. 4.3 - 7, Seite 212) mit dem Ga-
belschlüssel SW 36 so, dass Sie die Abstandswerte aus der Tabelle oben für die jeweilige
Transporthöhe erreichen.
Senken Sie den Bestückautomaten nun vorsichtig mit dem Gabelstapler ab, bis die Maschi-
nenfüße gleichmäßig den Boden berühren. Eine zweite Person sollte auf jeden Fall die sta-
bile Lage des Bestückautomaten während des Absenkvorgangs kontrollieren.
Gegebenenfalls muss die Klemmung der äußeren Maschinenfüße noch etwas gelockert wer-
den.
Senken Sie den Bestückautomaten weiter vorsichtig ab, bis die äußeren Maschinenfüße die
Einstellschrauben M24x2x120 (Pos. 3 in Abb. 4.3 - 7
, Seite 212) zur Höhenjustage berühren.
Achten Sie darauf, dass die mittleren Maschinenfüße (siehe Punkt 2 in Abb. 4.3 - 4, Seite
209
) den Boden noch nicht berühren. Wenn nötig schrauben Sie die mittleren Maschinenfüße
noch etwas in den Bestückautomaten bzw. in das Distanzstück ein.
4
HINWEIS
Die Beschreibung für die endgültige Justage des Bestückautomaten finden Sie in Ab-
schnitt 4.3.8.1
, Seite 217.

Betriebsanleitung SIPLACE X-Serie S 4 Aufstellen und Inbetriebnahme
Ab Softwareversion 713.0 Ausgabe 11/2019 4.3 Den Bestückautomaten aufstellen
215
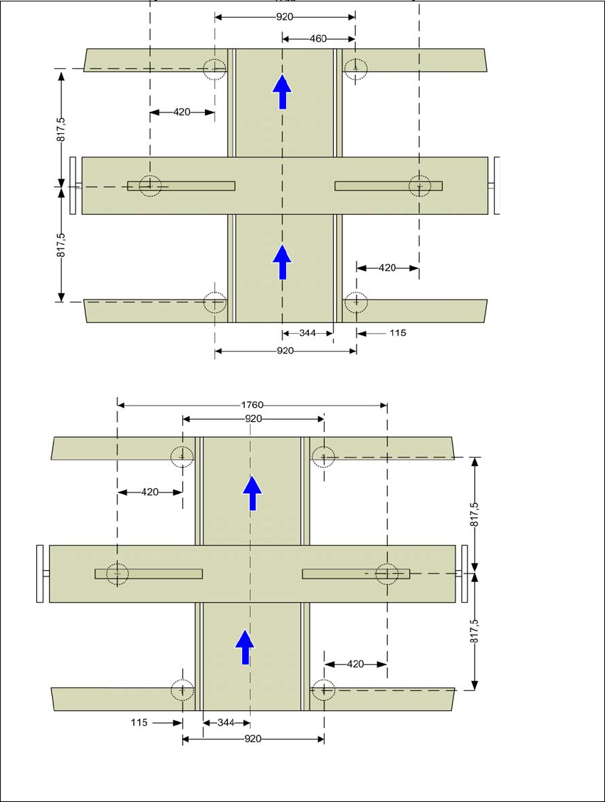
4.3.7 Abstandsmaße der Maschinenfüße und der festen LP-Transportkanten
Abstandsmaße der Maschinenfüße des LP-Einfachtransportes
4
Abb. 4.3 - 8 Abstandsmaße der Maschinenfüße des LP-Einfachtransports in Millimeter
Feste Transportwange auf der
maximalen Position rechts
a
.
a) Das Maß ist abhängig von der Position der festen Wange. Alle Maße in mm.
Feste Transportwange auf der
maximalen Position links
a
.

4 Aufstellen und Inbetriebnahme Betriebsanleitung SIPLACE X-Serie S
4.3 Den Bestückautomaten aufstellen Ab Softwareversion 713.0 Ausgabe 11/2019
216
4.3.7.1 Abstandsmaße der Maschinenfüße des LP-Doppeltransports
4
Abb. 4.3 - 9 Abstandsmaße der Maschinenfüße des LP-Doppeltransports in Millimeter
Feste Transportwange auf der
maximalen Position rechts
a
.
a) Das Maß ist abhängig von der Position der festen Wange. Alle Maße in mm.
Feste Transportwange auf der
maximalen Position links
a
.