OM-1755-001w_GS-F600.pdf - 第177页
5OM-1755 5-25 1305-001-(1015WB---1010) G5S 多段供料器 升降机 IBL OUT G5S 多段供料器 升降机 IBL OUT 1 2 3 4 5 6 7 8 A B C D E F ILB_EL1 U152 1 2 2 1 2 1 2 1 1 2 1 2 1 2 2 1 CN17 CN16 CN15 CN14 CN13 CN12 CN1 1 CN10 1 2 2 1 2 1 2 1 1 2 1 2…

OM-1755
5-241305-001-(1015WB---1009)
G5S 多段供料器 升降机 IBL IN2
G5S 多段供料器 升降机 IBL IN2
1 2 3 4 5 6 7 8
A
B
C
D
E
F
1
2
3
3
2
1
3
2
1
3
2
1
1
2
3
1
2
3
1
2
3
3
2
1
1
2
3
3
2
1
3
2
1
3
2
1
1
2
3
1
2
3
1
2
3
3
2
1
CN37
CN36
CN35
CN34
CN33
CN32
CN31
CN30
CN45
CN44
CN43
CN42
CN41
CN40
CN39
CN38
ILB_EL2
U153
/RX
RX
/TX
TX
SG
4
3 61
2
6
4 23
1
SG
TX
/TX
RX
/RX
X15301
Shielded
:1
:2
:3
:4
:5
[B-/13/2C]
X15334
X15332
X15335
X15333
X15331
CN1(UP) CN2(DN)
X15506(CN6)
U155(ILB EL1)
/RX
RX
/TX
TX
FG
4
3 61
2
CN3(T)
X15303
X15501(CN1)
[B-/12/3A]
U155(ILB SWUP)
211
2
3
4
10 10
10
24G124G1 24G1
2-EV24G
X1
X2
[B/13/4E]
X35
X15330
10
24G1
10
24G1
B15331
B15331
:1
:2
:3
B15330
-
OUT
+
B15330
:1
:2
:3
-
OUT
+
10
24G1
-
OUT
L
+
B15532
EVD-B
:4
:5
:6
EVD
:B3
:B4
:B5
-
OUT
L
+
B15533
10
24G1
EVU-B
:4
:5
:6
EVU
:B3
:B4
:B5
X15336
X15337
X15335
X15335
10
S15338
:1
XS15338
:2
XS0503
S0503
:5
:6
3231
XS0503-2
:2
:1
XS0501
:5
:6
S0501
3231
XS0501-2
:2
:1
S15337
:1
XS15337
:2
XS0502
S0502
:5
:6
3231
XS0502-2
:2
:1
10
S15339
:1
XS15339
:2
X15302
X15401(CN1)
[B-/11/3A]
U154(ILB SWDN)
10
10
10
10
BL
BK
BW
BL
BK
BW
Missing Pallet (Return Position)
Detection L
Missing Pallet (Return Position)
Detection R
Lower Magazine
Stopper Return Check
Upper Magazine
Stopper Return Check
Safety Door Switch (Lower)
Detection
Safety Door Switch (Upper)
Detection
Safety Door Switch (Magazine)
Detection
Ready Switch (Lower)
TV/EV Connecting Bundled Connector
Ready Switch (Lower)
Magazine Change
Switch (Middle Door)

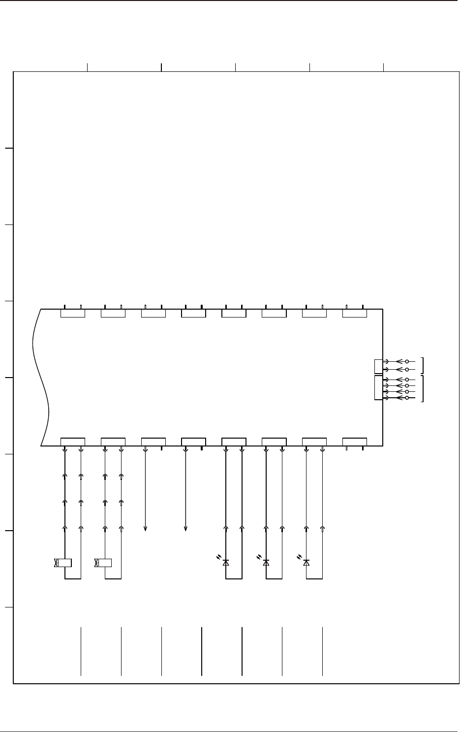
5OM-1755
5-251305-001-(1015WB---1010)
G5S 多段供料器 升降机 IBL OUT
G5S 多段供料器 升降机 IBL OUT
1 2 3 4 5 6 7 8
A
B
C
D
E
F
ILB_EL1
U152
1
2
2
1
2
1
2
1
1
2
1
2
1
2
2
1
CN17
CN16
CN15
CN14
CN13
CN12
CN11
CN10
1
2
2
1
2
1
2
1
1
2
1
2
1
2
2
1
CN20
CN21
CN22
CN23
CN24
CN25
CN18
CN19
X15216
X15215
X15214
X15211
X15210
Y15210
:1
:2
Y15210
24G1
Y15211
:1
:2
Y15211
S15337
:1
:2
H15214
S15338
:1
:2
H15215
S15339
:1
:2
H15216
24G1
24G1
24G1
24G1
X15212
X15038
[B-/05/7B]
U150(ILB TV1)
X15213
X15039
[B-/05/7B]
U150(ILB TV1)
211
2
3
4
10 10
10
24G1 24G1
24G1
2-EV24G
X1
X2
[B/13/4E]
X35
10
10
10
10
10
10
10
EVD-B
:7
:8
EVU-B
:7
:8
EVD
EVU
:B6
:B7
:B6
:B7
Upper Magazine
Shutter Open/Close
Cylinder Valve (Open)
Lower Magazine
Shutter Open/Close
Cylinder Valve (Open)
EV2 Interlock Signal
EV1 Interlock Signal
Ready Switch (Lower) Lamp
Ready Switch (Upper) Lamp
Magazine Change Switch
(Middle Door) Lamp

OM-1755
5-261305-001-(1015WB---1011)
G5S 多段供料器 元件补给 SW1( 下 )
G5S 多段供料器 元件补给 SW1( 下 )
1 2 3 4 5 6 7 8
A
B
C
D
E
F
LED01 R01
LED02 R02
LED03 R03
LED04 R04
LED05 R05
LED06 R06
LED07 R07
LED08 R08
LED09 R09
LED10 R10
LED11 R11
LED12 R12
LED13 R13
LED14
LED15
LED16 R16
SW-DN(下)
U156
OUT
S01
S02
S03
S04
S05
S06
S07
S08
S09
S10
S11
S12
S13
S14
S15
S16
CN1
IN
CN1
CN10-2
CN26
CN27
CN46
CN47
ILB SWDN(下)
U154
ILB_SWDN (下)
U154
01
03
05
07
09
11
13
15
17
19
31
29
27
25
23
21
33
02
04
06
08
10
12
14
16
18
20
22
24
26
28
30
32
34
24G1
10
01
02
03
04
05
06
07
08
01
02
03
04
05
06
07
08
02
01
02
03
04
05
06
07
08
01
02
03
04
05
06
07
08
09
09
/RX
RX
/TX
TX
SG
4
3 61
2
6
4 23
1
SG
TX
/TX
RX
/RX
CN1(UP)
CN2(DN)
/RX
RX
/TX
TX
FG
4
3 61
2
CN3(T)
X15401
[B-/11/3A]
211
2
3
4
X1
X2
10 10 10
24G1 24G1 24G1
X15303(CN3)
[B/13/4E]
TV/EV Connecting Bundled Connector
Material Shortage
Indicator Lamp 3
Material Shortage
Indicator Lamp 4
Material Shortage
Indicator Lamp 9
Material Shortage
Indicator Lamp 10
Material Shortage
Indicator Lamp 11
Material Shortage
Indicator Lamp 12
Material Shortage
Indicator Lamp 13
Material Shortage
Indicator Lamp 14
Material Shortage
Indicator Lamp 1
Material Shortage
Indicator Lamp 2
Material Shortage
Indicator Lamp 6
Material Shortage
Indicator Lamp 5
Material Shortage
Indicator Lamp 7
Material Shortage
Indicator Lamp 8
Material Shortage
Indicator Lamp 15
All Reload
Indicator Lamp
All Reload Switch
Reload Switch 1
Reload Switch 2
Reload Switch 3
Reload Switch 4
Reload Switch 5
Reload Switch 6
Reload Switch 12
Reload Switch 10
Reload Switch 9
Reload Switch 8
Reload Switch 7
Reload Switch 14
Reload Switch 13
Reload Switch 11
Reload Switch 15