Detailed Circuit Diagram Folder SIPLACE F5 - 第129页
4 Printed Circui t Boards 129 I 0033064 7-070 101ND 3 SP6_12 head boar d, digita l (Sh. 1 of 2) COMPONENT M OUNTING DIAGRAM, COMPONENT SIDE All diag rams vi ewed from compon ent side 828 PCB SP6_12 HEAD BOARD The fol low…

4 Printed Circuit Boards 128
I
00330573-010101ND4 Interference suppression board, DP motor
R2
R1
C6 C5
J1J2J4 J3
J8 J7 J6 J5
C3 C2 C1
J10
J9
C4
Status Modified Date Name Stand.
Check.
Author
Date
Orig. Creat. f. Creat. by
E
23 78
C
B
A
32
D
C
F
dp motor
A
71
01.
01.
01.
Interference suppression board
AUT-BSM
00330573-010101ND4
#
L. Bader
06.06.1997
Product status
Doc. status
Function status
=
Sheet
SIEMENS AG
Sh.
+
1 4
B
8
6
F
5
645
D
E

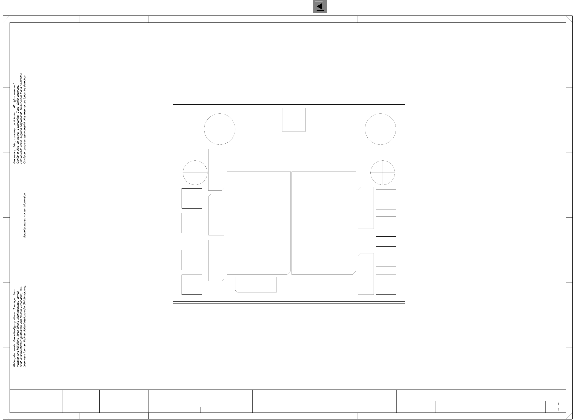
4 Printed Circuit Boards 129
I
00330647-070101ND3 SP6_12 head board, digital (Sh. 1 of 2)
COMPONENT MOUNTING DIAGRAM, COMPONENT SIDE
All diagrams viewed from component side
828 PCB
SP6_12 HEAD BOARD
The following labels have to be applied
A: Identification label
B: Inspection label
C: ESD label
Add distance bolt to package for each assembly
Do not fit JP1
TESTING ADAPTER CONNECTION
x = KEYPIN (to be cut out)
in X8, X12, X15, X16, X18-X20
Reject
dp axis Vacuum board
Pickup /
placement circuit
Step motor /
light barrier
Revolver head
± Motor
± Tachometer
End pos. prox. switch Track signals
x axis
CAN ADDRESS
4-layer PC board
G32918-J0005-B001-*-0017
PCB camera
00330647-070101ND3
FE
FE
FE
FE
23.04.97
12.05.97
30.07.97
10.10.97
52
53
54
55
Change noticeStatus Date Name
1 : 1 MentorScale
1 +
Sheet
Date
Name
SIEMENS AG
ANL TD E E
24.02.97
Fettich

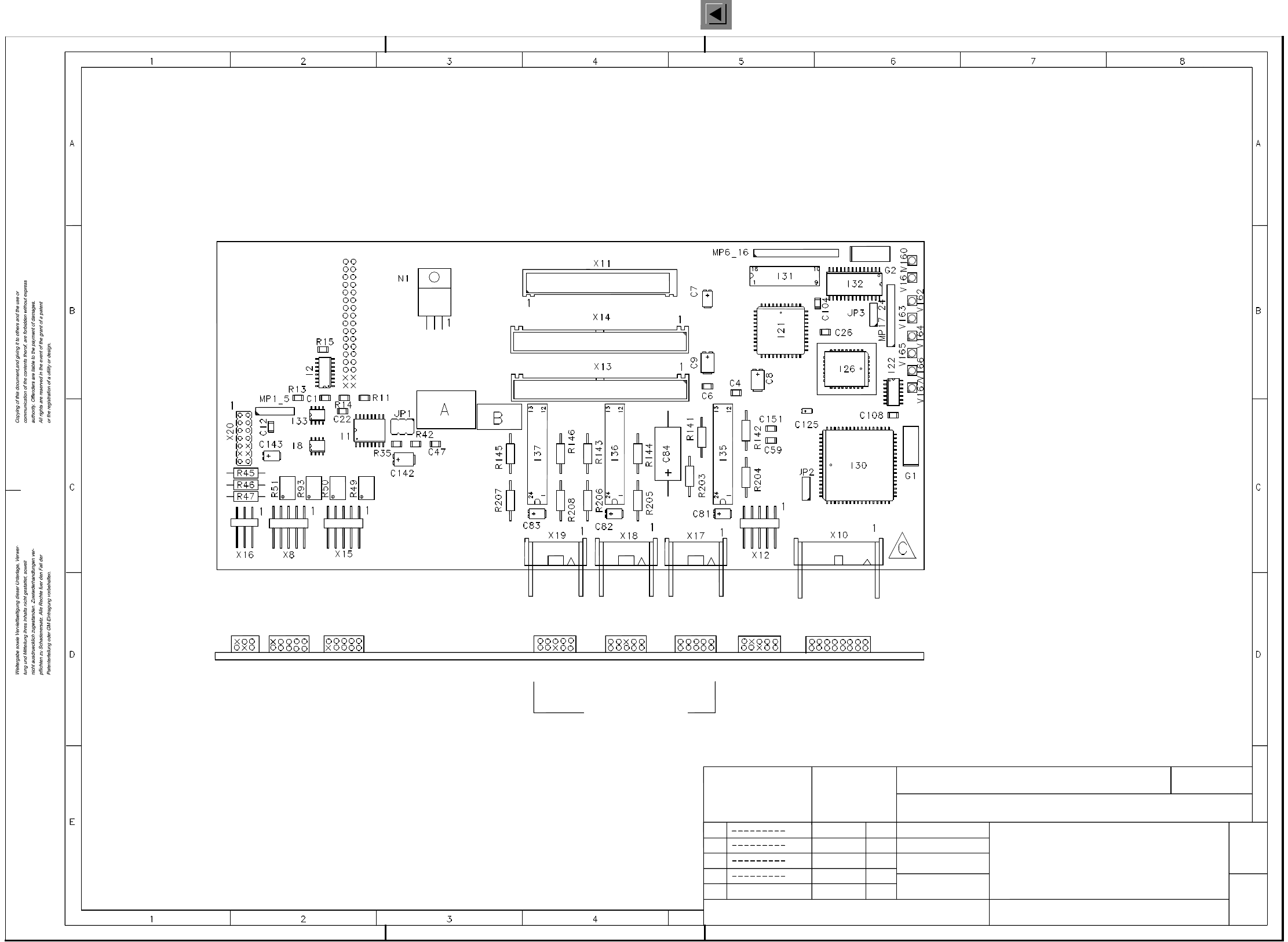
4 Printed Circuit Boards 130
I
00330647-070101ND3 SP6_12 head board, digital (Sh. 2 of 2)
COMPONENT MOUNTING DIAGRAM, COMPONENT SIDE
All diagrams viewed from component side
SP6_12 HEAD BOARD
G32918-J0005-B001-*-0017
828 PCB
4-layer PC board
00330647-070101ND3
54
52
53
55
Change noticeStatus
30.07.97
12.05.97
23.04.97
30.07.97
Date
FE
FE
FE
FE
Name
ANL TD E E
SIEMENS AG
FettichName
24.02.97
Date
1 : 1Scale Mentor
Sheet
2 -