RS-1 使用说明书 用户使用 Rev01.pdf - 第38页

第 1 部 基本篇 第 1 章 装置概要 1- 22 1-3- 2 贴片精度 ( 1 )贴片精度 (X,Y) 不同 元件 种类的贴片精度 请见下表。不同 的元件,因激光 校正检测部位 有边界、或模部 有毛边等, 或对吸取部位的 检查部位不固定 ,有的精度会 低于下列精度。 贴片精度 XY (激光识别 ・ 使用基板基准标记时) 单位: μ m 零部件种类 LNC120 - 8 备考 方形芯片 0402 ± 35 贴装下降中一侧, 87 ×…

100%1 / 891
1 基本篇 1 装置概要
1-21
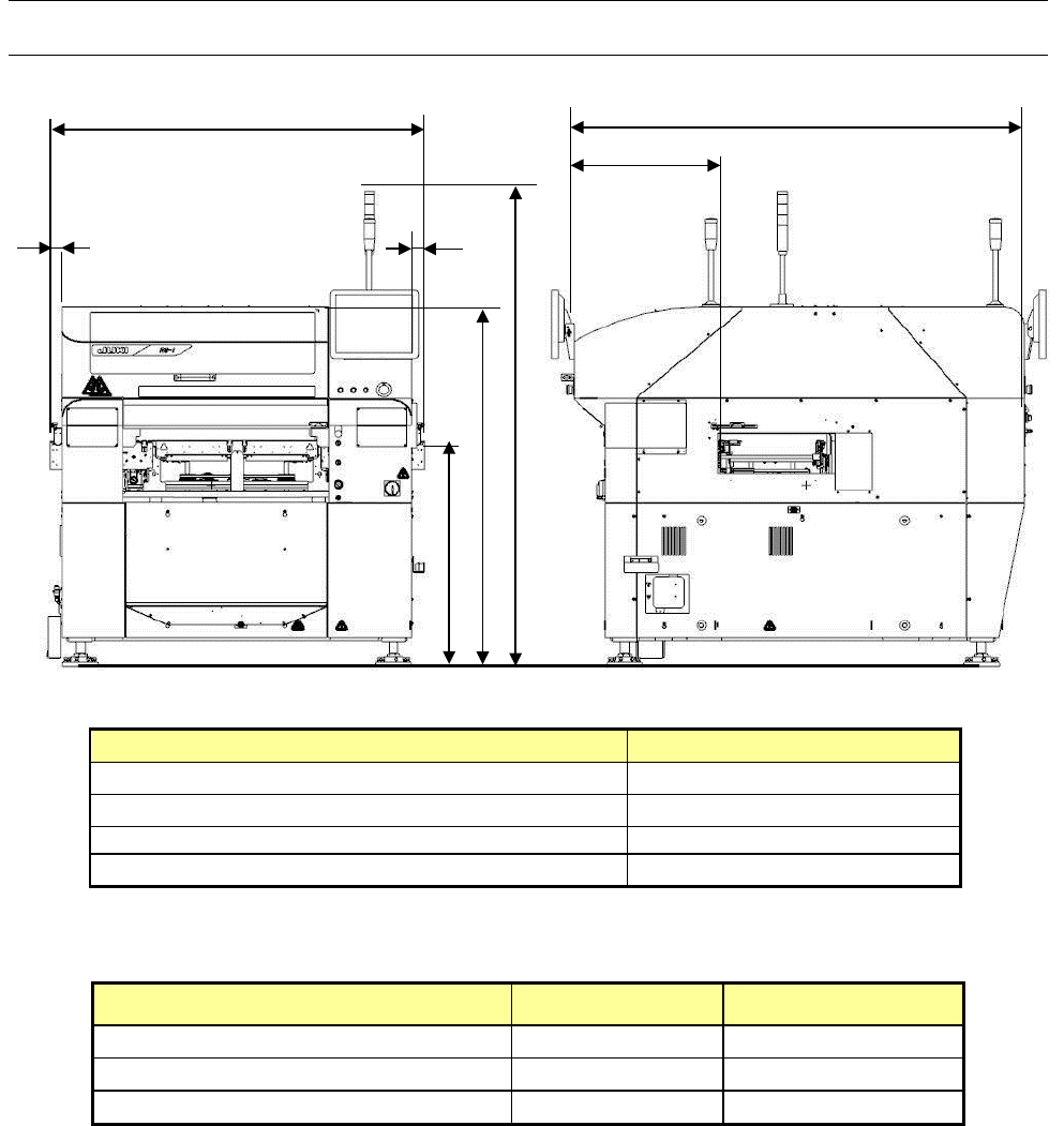
1-3 机械规格
1-3-1 机械尺寸与重量
(1) 机械尺寸
单位:mm
尺寸
A(传送长度
1,500
C(不含 LCD
1,810
H(传出量)
50
I (从安全盖(安全罩)前面到基准侧基板传送道
604
※上述尺寸的公差为±5mm
单位:mm
尺寸
传送高度 900mm 传送高 950mm
B
(从地面至传送带上面)
900
950
E
(从地面到安全盖(安全罩)上面)
1,440
1,490
G
(从地面到信号灯上面)
1,905
1,955
2)主机重量
1,700Kg
不含选项类
A
B
C
E
G
I
H
H
1 基本篇 1 装置概要
1-22
1-3-2 贴片精度
1)贴片精度(X,Y)
不同元件种类的贴片精度请见下表。不同的元件,因激光校正检测部位有边界、或模部有毛边等,
或对吸取部位的检查部位不固定,有的精度会低于下列精度。
贴片精度
XY
(激光识别使用基板基准标记时)
单位:
μ
m
零部件种类
LNC120-8
备考
方形芯片
0402
±35
贴装下降中一侧,
87
×
70
基板
方形芯片
0603, 1005, 1608
以上
±50
方形芯片(
LED
±50
方形芯片
LED 的贴片,以可激光识别为条件
圆筒型芯片(
Melf
±100
SOT
±150
2
铝电解电容
±300
SOP
TSOP
引脚直角方向
一侧毛边 150μm 以下
±150
3
引脚平行方向
±200
为在激光测定的横断面精度。
PLCC
SOJ
±200
QFP
、( 间距
0.8
以上)
±100
3
QFP
间距
0.65
±50
3
BGA
±100
其他大型元件
±300
图像识别时的精度是从元件基准标记或
基板基准标记起的绝对值
1 基本篇 1 装置概要
1-23
贴片精度
XY
(图像识别)
单位:
μ
m
零部件种类 画像認識 备考
铝电解电容 ±150
SOPTSOP
引脚直角方向 ±80
引脚平行方向 ±120 3
PLCCSOJ ±80
QFP(间距 0.65 以上 ±40
分割認識対象部品
引脚直角方向 ±60
引脚平行方向 ±120
3
BGA ±80
4
外形识别元件
±120
4 边、4 角、重心检出如下所示,
为使用 JUKI 精度评价工具时
使用元件定位标记时
PLCCSOJ ±80
QFP(间距 0.65 以上 ±40
QFP(间距 0.5,0.4,0.3
±30
单向引脚连接器
双向引脚连接器
(间距 0.5
引脚直角方向 ±40
引脚平行方向 ±120
3
分割识别对象元
引脚直角方向 ±60
引脚平行方向 ±120
3
BGA ±80
FBGA ±60 4
1保证精度时的周围温度为 2025之间。
2QFPSOPSOT 等引脚立起部分、或从该壳体中心位置(见图的 S
C
与引脚的中心位(见图
L
C
)之差 d 的容许值见下表。达不到该容许值时,为上述贴片精度的对象外。
壳体的中心位置与引脚的中心位
Sc
Lc
d
Sc
Lc
d
引脚间距
d 的容许值
25.4 以下
大于□
25.4
33.5 以下
0.8 以上 73
μ
m 52
μ
m
0.65 15
μ
m 15
μ
m
d 的容许值