00192368-01 - 第36页
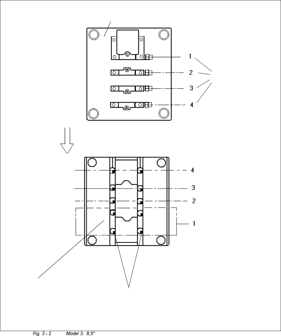
Vacuum Tooling for HS-50 Retrofit Instructions / User Manual 3 Functional Description Edition 12/00 36 Sucti on cups (bottom vi ew) Top plate of tool Conne ction for vacu um branche s Direction PCBs are trans ported in T…

Retrofit Instructions / User Manual Vacuum Tooling for HS-50
Edition 12/00 3 Functional Description
35
General View of the Option “Vacuum Tooling, Motorola Company”, (Top View)

Vacuum Tooling for HS-50 Retrofit Instructions / User Manual
3 Functional Description Edition 12/00
36
Suction cups
(bottom view)
Top plate of tool
Connection
for vacuum
branches
Direction PCBs
are transported in
Top plate of tool
(top view)

Retrofit Instructions / User Manual Vacuum Tooling for HS-50
Edition 12/00 4 Installing the compressed air supply
37
,QVWD OOLQJWKHFRPSUHVVH GDLUVXSSO\
:
Move the component cart for gantry 1 out of the placement machine.
:
Detach the waste tape chute.
:
At placement area 1, drill two Ø 5 mm holes in the wall behind the waste tape chute.
The precise position is shown in the drawing.
____________________________________________________________________________
PLEASE NOTE
!
Drill only to a depth of 10 mm. Do not drill right through the wall, otherwise the cables behind the
wall may be damaged.
___________________________________________________________________________