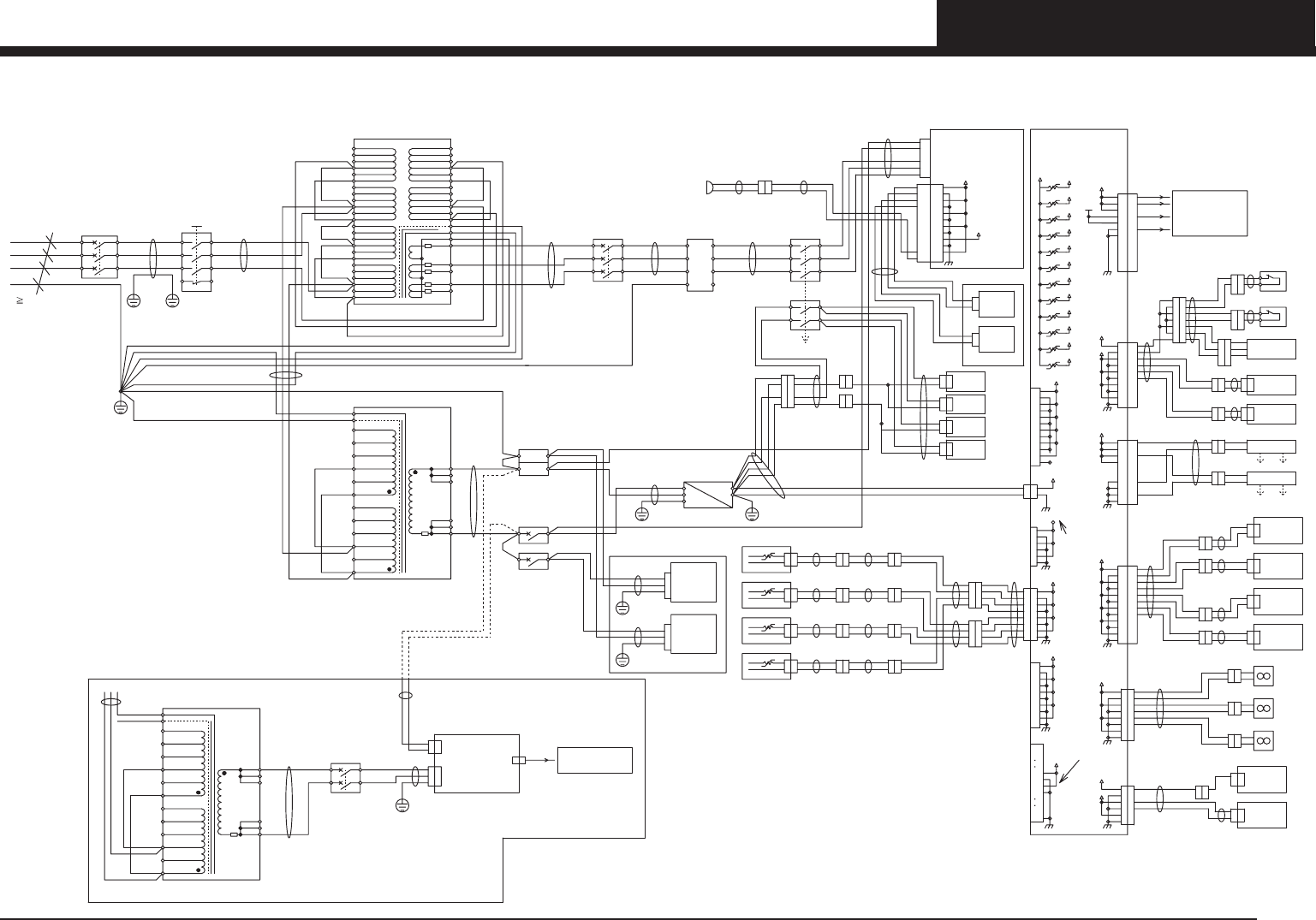
YG200电气电路图 - 第17页
PAGE 15 YG200 (KGT) Power transformer terminal 200V 208V 220V 240V 380V 400V 416V 100V 100V 0V 0V N W50 V50 U50 N W50 V50 U50 200V 208V 220V 240V 380V 400V 416V N W50 V50 U50 N W50 V50 U50 V10 U10 100V 100V 0V 0V V10 U10…

PAGE 14
YG200 (KGT)
FES 20 safety circuit (normal)
CN1
CN2
CN3
CN4
CN5
CN6
CN7
CN8
CN9
CN10
FEEDER FRONT A
FORWARD UPPER
SB21
SWITCH
FEEDER FRONT B
UPPER FORWARD
SWITCH
FEEDER REAR B
UPPERFORWARD
SWITCH
FEEDER REAR A
UPPER FORWARD
EMG
SEN.PWR.IN
FRONT1 SEN.
FRONT2 SEN.
I/O CONV A DI
REAR1 SEN.
REAR2 SEN.
I/O CONV B DI
NON STOP
NORMAL
CASE 4 C i
KGA-M4540-xxx
FES BOARD
UP/DOWN UP/DOWN
SWITCH
UP/DOWN
UP/DOWN
J815
J816
CN35
CN36
T00403
J43
J272
DI/DO
I/O CONVEYOR
BOARD
FRONT-A
FRONT-B
REAR-A
REAR-B
UP
UP
UP
UP
DOWN
DOWN
DOWN
DOWN
CN2
CN3
CN5
CN6
FCN1
T001E0 T001E1
T001E4 T001E5
T001F0 T001F1
T001F4 T001F5
T00200
N006A4 N006A5 N006A6 N006B0N006B1
T00201
T00202
N006B2N006B3N006B4N006B7N006B6N006B5
CN6
CN51
CN41
CN9
CN10
J850
J846
J847
J848
J849
J851
J852
CN8
CN4
CN7
P71
YV211
YV212
YV213
YV214
SB24
SB23
SB22
SQ141 SQ142
N006A6 N006A5
SQ144 SQ143
N006B0
N006B1
SQ146 SQ145
N006B4N006B3
SQ147 SQ148
N006B7 N006B6
N006A7

PAGE 15
YG200 (KGT)
Power transformer terminal
200V 208V 220V 240V 380V 400V 416V
100V
100V
0V
0V
N
W50
V50
U50
N
W50
V50
U50
200V 208V 220V 240V 380V 400V 416V
N
W50
V50
U50
N
W50
V50
U50
V10
U10
100V
100V
0V
0V
V10
U10
100V
100V
0V
0V
V10
U10
100V
100V
0V
0V
V10
U10
100V
100V
0V
0V
V10
U10
100V
100V
0V
0V
V10
U10
100V
100V
0V
0V
V10
U10
N
W50
V50
U50
N
W50
V50
U50
N
W50
V50
U50
TC11:The selection of POWER SOURCE 0.75KVA
240V
0V
190V
200V
208V
220V
240V
0V
190V
200V
208V
220V
0V
100V
TC11
0.75KVA
240V
0V
190V
200V
208V
220V
240V
0V
190V
200V
208V
220V
0V
100V
TC11
0.75KVA
240V
0V
190V
200V
208V
220V
240V
0V
190V
200V
208V
220V
0V
100V
TC11
0.75KVA
240V
0V
190V
200V
208V
220V
240V
0V
190V
200V
208V
220V
0V
100V
TC11
0.75KVA
240V
0V
190V
200V
208V
220V
240V
0V
190V
200V
208V
220V
0V
100V
TC11
0.75KVA
240V
0V
190V
200V
208V
220V
240V
0V
190V
200V
208V
220V
0V
100V
TC11
0.75KVA
240V
0V
190V
200V
208V
220V
240V
0V
190V
200V
208V
220V
0V
100V
TC11
0.75KVA
S1
R1
T1
S1
R1
T1
S1
R1
T1
S1
R1
T1
S1
R1
T1
S1
R1
T1
S1
R1
T1
S1
S1
S1
S1
S1
S1
S1
R1
R1
R1
R1
R1
R1
R1
TM11
240V
220V
208V
200V
190V
0V
240V
220V
208V
200V
190V
0V
240V
220V
208V
200V
190V
0V
240V
220V
208V
200V
190V
0V
240V
220V
208V
200V
190V
0V
240V
220V
208V
200V
190V
0V
220V
220V
200V
220V
200V
W
V
U
3.77KVA
TM11
240V
220V
208V
200V
190V
0V
240V
220V
208V
200V
190V
0V
240V
220V
208V
200V
190V
0V
240V
220V
208V
200V
190V
0V
240V
220V
208V
200V
190V
0V
240V
220V
208V
200V
190V
0V
220V
220V
200V
220V
200V
W
V
U
3.77KVA
TM11
240V
220V
208V
200V
190V
0V
240V
220V
208V
200V
190V
0V
240V
220V
208V
200V
190V
0V
240V
220V
208V
200V
190V
0V
240V
220V
208V
200V
190V
0V
240V
220V
208V
200V
190V
0V
220V
220V
200V
220V
200V
W
V
U
3.77KVA
TM11
240V
220V
208V
200V
190V
0V
240V
220V
208V
200V
190V
0V
240V
220V
208V
200V
190V
0V
240V
220V
208V
200V
190V
0V
240V
220V
208V
200V
190V
0V
240V
220V
208V
200V
190V
0V
220V
220V
200V
220V
200V
W
V
U
3.77KVA
TM11
240V
220V
208V
200V
190V
0V
240V
220V
208V
200V
190V
0V
240V
220V
208V
200V
190V
0V
240V
220V
208V
200V
190V
0V
240V
220V
208V
200V
190V
0V
240V
220V
208V
200V
190V
0V
220V
220V
200V
220V
200V
W
V
U
3.77KVA
TM11
240V
220V
208V
200V
190V
0V
240V
220V
208V
200V
190V
0V
240V
220V
208V
200V
190V
0V
240V
220V
208V
200V
190V
0V
240V
220V
208V
200V
190V
0V
240V
220V
208V
200V
190V
0V
220V
220V
200V
220V
200V
W
V
U
3.77KVA
TM11
240V
220V
208V
200V
190V
0V
240V
220V
208V
200V
190V
0V
240V
220V
208V
200V
190V
0V
240V
220V
208V
200V
190V
0V
240V
220V
208V
200V
190V
0V
240V
220V
208V
200V
190V
0V
220V
220V
200V
220V
200V
W
V
U
3.77KVA
TM11:The selection of POWER SOURCE 3.77KVA

PAGE 16
YG200 (KGT)
Power circuit
T1
T2
T3
R
S
T
L1
L2
L3
AWG12 (3.3sq)
QF11 Set13A
NN
1
6
2
34
5
1
3
5
2
4
6
QS11
MAX690V/40A
U50
V50
W50
N
TM11
240V
220V
208V
200V
190V
0V
240V
220V
208V
200V
190V
0V
240V
220V
208V
200V
190V
0V
240V
220V
208V
200V
190V
0V
240V
220V
208V
200V
190V
0V
240V
220V
208V
200V
190V
0V
220V
220V
200V
220V
200V
W
V
U
3.77KVA
S1
R1
T1
J4
J3
J3
J15
W52
V52
U52
W51
V51
U51
QF31 10A
EE
NF11
MAX250V/10A
J14
1
2
3
4
5
6
J18
6
4
21
3
5
W52
V52
U52
W54
V54
U54
KM10
MAX440V/12A
KM10A
W50
V50
U50
W51
V51
U51
100V
100V
0V
0V
240V
0V
190V
200V
208V
220V
240V
0V
190V
200V
208V
220V
0V
100V
TC11
R1
S1
V10
V10
V10
V10
V10
V10
XT21
MAX690V/15A
QF21 5A
U11A
U11A
U11B
U11B
FG
V10
0V
+24V
U11A
+24V
+24V
1
2
1
2
1
2
1
2
1
2
1
2
1
2
1
2
1
2
1
2
1
2
1
2
CONVEYOR
DRIVER
CONVEYOR
DRIVER
CONVEYOR
DRIVER
CONVEYOR
DRIVER
J123
J124
J30
J31
J36
J32
J33
J37
J38
J35
J34
J121
J122
J39
J40
J42
J125
83 84
J20
J126
1
2
3
4
1
2
3
4
+24V
+24V
J26
1
2
1
2
CN1
1
2
1
2
1
2
1
2
J53
171
1
2
1
2
1
2
1
2
1
2
1
2
FAN3
FAN2
FAN1
+24VA
+24VA
1
2
1
2
CN1
1
2
1
2
1
2
1
2
1
2
1
2
CN1
CN1
CN1
R RIGHT
F LEFT
R LEFT
F RIGHT
1
2
1
2
1
2
3
4
5
6
7
8
1
2
3
4
5
6
7
8
CN2
CN2
1.85A
0V
+24V
1
2
1
2
P21
I/O HEAD FRONT A
1.85A
0V
+24V
1
2
1
2
P22
I/O HEAD FRONT B
1
2
1
2
1
2
1
2
CN2
CN2
1
2
1
2
1
2
1
2
1.85A
0V
+24V
1
2
1
2
I/O HEAD REAR A
P23
1.85A
0V
+24V
1
2
1
2
I/O HEAD REAR B
P24
J54
J59
J61
J56
1
2
1
2
1
2
1
2
1
2
1
2
1
2
1
2
J53
J58
J60
J55
1
2
3
4
1
2
3
4
1
2
3
4
1
2
3
4
J52
J57
J51
1
2
3
4
5
6
1
2
3
4
5
6
1
2
3
4
5
6
7
8
1
2
3
4
5
6
7
8
1
2
3
4
5
6
7
8
9
10
11
12
1
2
3
4
5
6
7
8
9
10
11
12
J43
J28
J44
1
2
1
2
1
2
1
2
AREA SENSOR FRONT
AREA SENSOR REAR
A1
B1
A1
B1
A2
B2
A2
B2
A3
B3
A3
B3
A4
B4
A5
B5
A4
B4
A5
B5
J281
1
2
3
4
5
6
7
8
9
10
1
2
3
4
5
6
7
8
9
10
1
2
1
2
1
2
1
2
1
2
1
2
1
2
1
2
IONIZER FRONT
IONIZER REAR
J703
J704
1
2
3
4
5
6
7
1
2
3
4
5
6
7
1
2
3
1
2
3
1
2
3
1
2
3
COVER LIMIT
S/W FRONT
COVER LIMIT
S/W REAR
1
2
3
4
1
2
3
4
FLUORESCENT LIGHT
J702
J705
J279
J280
J22
M+24V
0V
0V
J27
DCN1
DCN1
DCN1
DCN1
1
2
1
2
1
2
1
2
1
2
1
2
1
2
1
2
J61
J62
J63
J64
QF22 1A
750VA
0V
+24V
FG
N
L
GS21
300W
73 74
+24VM
+24VH
+24VL
CN48
CN43
CN45
CN49
CN51
CN20
CN50
+24VE
+24VB
+24VC
+24VN
+24VD
A1
B1
A5
B5
B6
A6
A20
B20
CN41
1
2
3
4
5
6
7
8
9
10
CN47
+24VN
+24V
1
2
3
4
5
6
CN44
+24EA
P25
I/O CONVEYOR
BOARD ASSY
1
2
3
4
5
6
7
8
9
10
11
12
CN46
+24VD
+24VI
1.85A
2.5A
2.5A
2.5A
2.5A
2.5A
0.5A
2.5A
2.5A
1.1A
2.5A
2.5A
+24VL
+24VB
+24VC
+24VD
+24VE
+24VH
+24VI
+24VJ
+24VK
+24VM
+24VN
+24VA
+24VA
1
2
3
4
5
6
7
8
9
10
11
12
1
2
3
4
5
6
7
8
9
10
11
12
CN52
+24VJ
See EMERGENCY
CIRCUIT DIAGRAM
See EMERGENCY
CIRCUIT DIAGRAM
See EMERGENCY
CIRCUIT DIAGRAM
MAX690V/13A
See EMERGENCY
CIRCUIT DIAGRAM
UPS IN
UPS OUT
SIGNAL
GB1
100V
100V
0V
0V
240V
0V
190V
200V
208V
220V
240V
0V
190V
200V
208V
220V
0V
100V
TC11
R1
S1
J11
J124
J39
J40
1KVA
J4
V10B
U10B
V10A
U10A
UPS
CONTROL BOX (UPS)
See INTERCONNECTION
DIAGRAM
J41
U10
QF61 15A
J11
U10
V10
J751
J753
J752
When the UPS specification
V10
+24E
U10
V10
U10B
V10B
P11
P12
P13
P14
SB15
SB18
EL1
A20
A21
SQ44A
SQ43A
LED DRIVER BOARD
P80
LED DRIVER BOARD
P83
LED DRIVER BOARD
P81
LED DRIVER BOARD
P82
FES BOARD
P71
I/F BOARD
I/OA
FG
V10
U11B
J23
LCD1
FG
V10
U11B
J24
LCD2
STD.
OPTION
LCD1
LCD2
TOUCH
PANEL
TOUCH
PANEL
J301
J21
CONTROL BOX
AC220V:MOTOR DRIVER
POWER
AC100V:CONTROL
ACIN
1
2
3
4
5
6
A1A1
B1B1
A2A2
B2B2
A3A3
B3B3
A4A4
B4B4
A5A5
B5B5
A6A6
B6B6
A1
1
2
1
2
HA1
BUZZER
J301J302
EXT.PWR
+12V
+5V
2003.11