YG200电气电路图 - 第22页
PAGE 20 YG200 (KGT) Air circuit (YG200-F/FES) 600V-04 KM23 8(ORANGE) F600-04 -BG-A R600-03 SL12-04 GS1-50 -DL-41W TL4-02 TSH4-M5 UY 4 UEDW10-8 10(ORANGE) SLH6-M5 KM-05 6(ORANGE) UC4 SLH8-01 KM-05 SLH6-01 8(ORANGE) 6(ORAN…

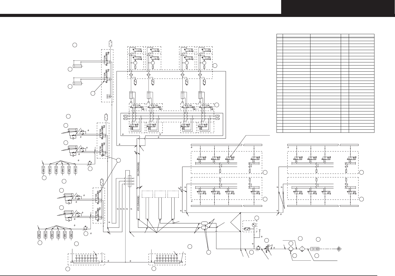
PAGE 19
YG200 (KGT)
Air circuit (YG200-S)
600V-04
KM23
8(ORANGE)
KM-11
F600-04
-BG-A
R600-03
SL12-04
GS1-50
-DL-41W
TL4-02
TSH4-M5
UEDW10-8
YMDA 16X35
SL4-M5
SL4-M5
MANUHOLD
KGT-M1141-000
MANUHOLD
KGT-M1141-000
TSH8-01
PLUG
K40-M8598-000
BF4
BF4
TL8-01TT8-01
stn.20stn.1 stn.2 stn.3
KM-06KM-06
20123
TSS4-01
TSH8-01
PLUG
K40-M8598-000
BF4
BF4
TL8-01TT8-01
stn.120
stn.101
stn.102
stn.103
KM-06KM-06
120101 102 103
10(ORANGE)
UYD10-8
SL8-01
8(ORANGE)
UC4
UY 4
SLH8-01
KM-05
SLH6-01
6(ORANGE)
HI-CAPPLER
PLUG 40PM
AIR SOURCE
12
(ORANGE)
10(ORANGE)
SL4-M5
SL4-M5
YMDA 16X35
KM-05
SLH6-01
SLH8-01
UY10
SL12-03
SL12-03
A010E1-44W
A010E1-37W
VALVE ASSY 20-L
KGA-M3410-401
VALVE ASSY 20-L
KGA-M3410-401
VALVE ASSY 20-R
KGA-M3410-201
VALVE ASSY 20-R
KGA-M3410-201
103102121 140
KM-06 KM-06
stn.123stn.122
stn.121
stn.140
TT8-01 TL8-01
BF4
BF4
232221 40
KM-06 KM-06
stn.23stn.22stn.21 stn.40
TT8-01 TL8-01
BF4
BF4
UB12
USD10-8
US8
TSS4-01
UYD12-10
USD8-6
8(ORANGE)
8(ORANGE)
UB12
UYD12-10
KM-11
SSU-4
CDA 25X35
SSU-4
CDU20-40D
SL4-M5
TL4-M5M
SL4-M5
TL4-M5M
KM-11
SSU-4
CDA 25X35
SSU-4
CDU20-40D
TL6-01M
TL6-01M
6(ORANGE)
6(ORANGE)
USD12-10
10(ORANGE)
10(ORANGE)
10(ORANGE)
10(ORANGE)
8(ORANGE)
8(ORANGE)
8(ORANGE)
8(ORANGE)
UYD12-10
UYD12-10
USD10-8
USD10-8
8(ORANGE)
UP8
TS12-04
TS12-04
KM5-M8531-000
ACCUMLATAOR
ARJ310F-01G-04
CRB-0137W
UTF4BU-M3
UEF4BU-M3
UY4
CRB-0137W
UTF4BU-M3
UY4
UEF4BU-M3
ARJ310F-01G-04
TS4-M5
TS4-M5
UY8
UYD8-6
29
4
8-60D4
20
12
29
11
10
26
25
1
M-F ELBOW3/8"
2
3
5
6
8
9
12
11
20
VALVE KIT
KGA-M37P0-000
MF600-04-A
13
13
18
15
18
15
16
17
30
31
31
30
14
14
PART No.
KG2-M8512-000
KG2-M8513-000
KG2-M8501-000
KG2-M8503-000
KG2-M8502-000
KH1-M8501-000
KM5-M8531-000
KG2-M8504-003
KG2-M8596-004
KGT-M8582-000
KGT-M1141-000
K40-M8598-000
KGA-M3410-201
KG2-M8582-400
KGT-M9182-A10
KGT-M9175-A00
KGT-M9175-B00
KGT-M9209-000
KV7-M9283-000
KGT-M7162-001
KGT-M7163-000
KGA-M3410-400
KGT-M922H-000
KGD-M9244-000
No.
1
2
4
5
6
7
8
9
10
11
12
13
17
15
16
21
22
23
24
25
26
27
28
29
30
14
3
18
19
20
31
Q'TY
1
1
1
2
1
1
1
1
2
2
2
2
1
1
1
1
2
1
1
1
2
2
2
12
PART NAME
JOINT
JOINT
AIR FILTER
MODULE ADAPTER
MIST FILTER
EXHAUST VALVE
ACCUMLATAOR
REGULATOR
PRESURE GAUGE
VALVE
MANUFOLD
PLUG 1 (R 1/8)
VALVE ASSY 20-R
VALVE(SPARE)
CYLINDER ASSY
VALVE ASSY,R
CYLINDER
CYL.,YMDA16X35
SOLENOID VALVE
EJECTOR,RESIN
VALVE ASSY 20-L
REGULATOR
CYLINDER
VALVE ASSY,L
REMARKS
40PM
1/2" M-F ELBOW
F600-04-BG-A
8-60D4
MF600-04-A
600V-04
R600-03
GS1-50-DL-45WY
CDU20-40D(SMC)
CDA 25X35
YDA 16X35
CBR-0137W
4(ORANGE)
040M3AJ-stn. 1,2
A040-4E1-PLL-DC24V
-stn. 3 BP
040M2A stn. 1,2
-A040-4E1-PSL-DC24V
040M2A stn. 1,2
-A040-4E1-PSL-DC24V
SUB STOPPER
EXIT STOPPER
MAIN STOPPER
SIDE CLAMP
PUSH UP
MAIN STOPPER
SIDE CLAMP
PUSH UP
STAGE 2
STAGE 1
4
(BLACK)
8(ORANGE)
6(ORANGE)
4
(BLACK)
4
(BLACK)
4
(BLACK)
4
(BLACK)
4
(BLACK)
4(ORANGE)
4(ORANGE)
4(ORANGE)
8(ORANGE)
7
4(ORANGE)
(ORANGE)
4
UP
DOWN
UP
HEAD2 HEAD1HEAD6 HEAD5
DOWN
UP
DOWN
UP
DOWN
HEAD A
FEEDER PLATE FEEDER PLATE
FEEDER PLATE
FEEDER PLATE
4
(BLACK)
4
(BLACK)
4
(BLACK)
HEAD
B
HEAD
C
HEAD
D

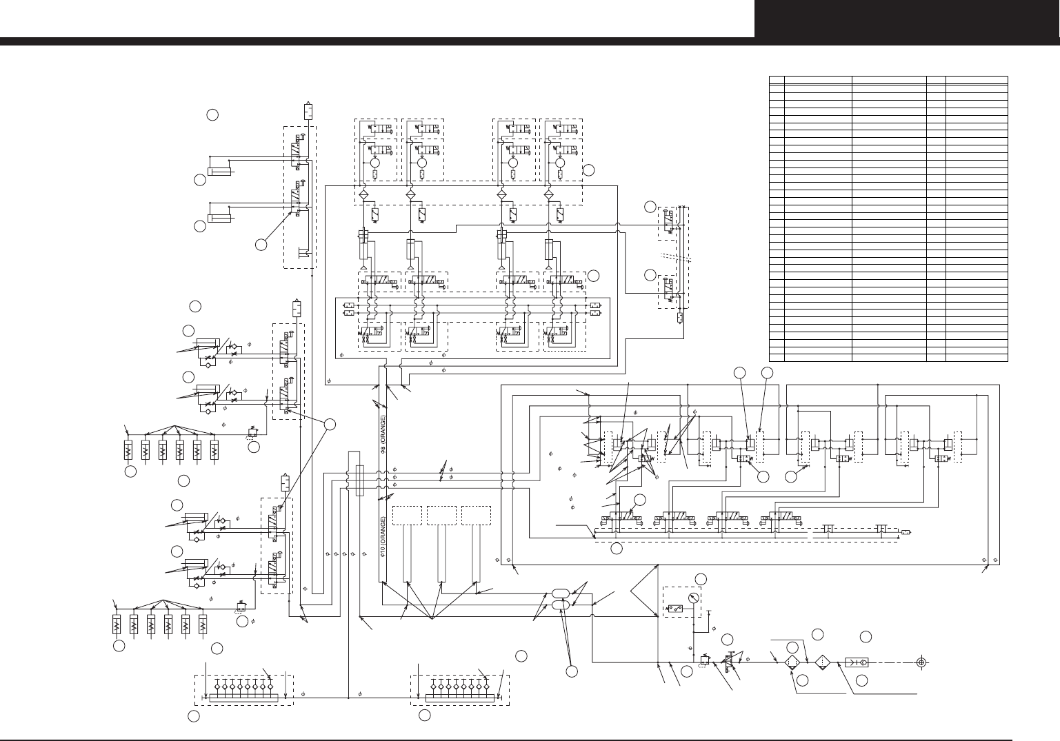
PAGE 20
YG200 (KGT)
Air circuit (YG200-F/FES)
600V-04
KM23
8(ORANGE)
F600-04
-BG-A
R600-03
SL12-04
GS1-50
-DL-41W
TL4-02
TSH4-M5
UY 4
UEDW10-8
10(ORANGE)
SLH6-M5
KM-05
6(ORANGE)
UC4
SLH8-01
KM-05
SLH6-01
8(ORANGE)
6(ORANGE)
HI-CAPPLER
PLUG 40PM
12
(ORANGE)
10(ORANGE)
KM-05
SLH6-01
SLH8-01
UY10
SL12-03
SL12-03
A010E1-44W
A010E1-37W
UB12
USD10-8
US8
UYD12-10
8(ORANGE)
8(ORANGE)
UB12
UYD12-10
USD12-10
UP8
KM-11
UYD12-10
UYD12-10
AIR SOURCE
UY10
UYD10-8
UY6
TL8-01
USD6-4
USD6-4
UY6
UYD10-8
TL8-01
4(BLACK)
4(ORANGE)
6(BLACK)
6(ORANGE)
4(ORANGE)
8(ORANGE)
8(ORANGE)
8(ORANGE) 6(ORANGE)
6(ORANGE)
USD8-6
6(ORANGE)
10(ORANGE)
10(ORANGE)
8(ORANGE)
JKL6-02A0.5
KV7-M8583-000,OPTION MANIFOLD ASSY
TS12-04
TS12-04
KM5-M8531-000
ACCUMLATAOR
YMDA 16X35
SL4-M5
SL4-M5
SL8-01
UYD10-8
PLUG
K40-M8598-000
TSH8-01
TSS4-01
PLUG
K40-M8598-000
TSH8-01
MANUHOLD
KGT-M1141-000
MANUHOLD
KGT-M1141-000
SL4-M5
YMDA 16X35
KM-11
SL4-M5
040M3AJ-stn. 1,2
A040-4E1-PLL-DC24V
-stn. 3 BP
040M2A stn. 1,2
-A040-4E1-PSL-DC24V
040M2A stn. 1,2
-A040-4E1-PSL-DC24V
USD8-6
TSS4-01
KM-11
SSU-4
CDA 25X35
SSU-4
CDU20-40D
SL4-M5
TL4-M5M
KM-11
SSU-4
CDA 25X35
SSU-4
CDU20-40D
TL6-01M
TL6-01M
6(ORANGE)
ARJ310F-01G-04
CRB-0137W
UTF4BU-M3
UY4
ARJ310F-01G-04
CRB-0137W
UEF4BU-M3
UTF4BU-M3
UY4
UEF4BU-M3
TS4-M5
TS4-M5
UY6
UYD8-6
UY8
4
8-60D4
27
27
26
25
1
M-F ELBOW3/8"
2
3
5
6
8
9
MF600-04-A
SL8-01
33
36 37
32
34 35
7
20
11
12
10
11
12
20
18
15
18
15
16
17
30
31
30
31
14
14
KG2-M8503-000
KG2-M8502-000
KH1-M8501-000
KG2-M8504-003
KG2-M8596-004
KGT-M8582-000
KGT-M1141-000
K40-M8598-000
KG2-M8582-400
KGT-M9182-A10
KGT-M9175-A00
KGT-M9175-B00
KGT-M9209-000
KV7-M9283-000
KGT-M7162-001
KGT-M7163-000
KV8-M71YA-001
KV7-M8583-000
KM8-M3483-001
KV8-M3783-000
KGT-M3788-000
KV8-M37A9-000
KV8-M37S2-000
KGT-M922H-000
KGD-M9244-000
MODULE ADAPTER
MIST FILTER
EXHAUST VALVE
REGULATOR
PRESURE GAUGE
VALVE
MANUFOLD
PLUG 1 (R 1/8)
VALVE(SPARE)
CYLINDER ASSY
VALVE ASSY,R
CYLINDER
CYL.,YMDA16X35
SOLENOID VALVE
EJECTOR,RESIN
VALVE CLUTCH
VALVE ASSY,L
OPTION MANIFOLD ASSY
VALVE
CYLINDER
VALVE ASSY.10
AIR PILOTED VALVE
AIR SOCKET,2 ASSY.
CYLINDER
REGULATOR
CDA 50X30R
250A-2
CBR-0137W
PART No.
KG2-M8512-000
KG2-M8513-000
KG2-M8501-000
No.
1
2
4
5
6
7
8
9
10
11
12
13
17
15
16
21
22
23
24
25
26
27
28
29
30
14
3
18
19
20
31
32
33
34
35
36
37
Q'TY
1
1
1
2
1
1
1
1
2
2
2
1
1
3
1
1
1
1
1
2
2
1
4
8
8
4
4
12
PART NAME
JOINT
JOINT
AIR FILTER
REMARKS
40PM
1/2" M-F ELBOW
F600-04-BG-A
8-60D4
MF600-04-A
600V-04
R600-03
GS1-50-DL-45WY
CDU20-40D(SMC)
CDA 25X35
YDA 16X35
4(ORANGE)
4
(BLACK)
4
(BLACK)
4
(BLACK)
4
(BLACK)
8(ORANGE)
6(ORANGE)
6(ORANGE)
4(ORANGE)
(ORANGE)
4
4
(BLACK)
4
(BLACK)
4(ORANGE)
4(ORANGE)
4(ORANGE)
6(ORANGE)
8(ORANGE) 8(ORANGE)
STAGE 2
HEAD A
STAGE 1
SUB STOPPER
EXIT STOPPER
MAIN STOPPER
MAIN STOPPER
SIDE CLAMP
PUSH UP
SIDE CLAMP
PUSH UP
SL4-M5
TL4-M5M
10(ORANGE)
10(ORANGE)
HEAD
B
HEAD
C
HEAD
D
HEAD1
HEAD6
HEAD2
HEAD2HEAD5HEAD6
UP
DOWN
UP
DOWN
UP
DOWN
UP
DOWN

PAGE 21
Wiring parts list
KGT-0309
No Part No. Part Name Q'ty Remarks No Part No. Part Name Q'ty Remarks
1 KM5-M661E-006 HNS,QF-TM11 1 J3 39 KGT-M665X-000 HNS,CONV._SENSOR5 1 J93
2 KM6-M661G-002 HNS,TM11-TC11 1 J4 40 KGT-M665W-000 HNS,BRAKE 1 J94
3 KGT-M661G-000 HNS,TC11-QF/XT21 1 J11 41 KK1-M664J-010 HNS,PE 1000 5
J121,J122,J123,J124,J125
4KW8-M661J-000 HNS,TM11-QF31 1 J14 42 90K30-245170 HNS,EARTH 1 J126
5 KM6-M661K-000 HNS 1-7 (QF31-NF11) 1 J15 43 KV8-M66L1-000 HNS 17-1(700) 1 J127
6 KW8-M661L-000 HNS,NF11-KM10 1 J18 44 90K30-444070 HNS,EARTH 2 J128,J129
7 KGT-M661H-000 HNS,QF21-GS21 1 J20 45 90K30-444130 HNS,EARTH 2 J130,J131
8 KGT-M661A-000 HNS,C/R_PWR 1 J21 46 90K30-444140 HNS,EARTH 4 J132,J133,J134,J135
9 KGT-M661E-000 HNS,CONVEYOR_PWR 1 J22 47 90K30-444080 HNS,EARTH 4 J136<J137,J138,J139
10 KGT-M661F-000 HNS,MONITOR_PWR 2 J23,J24 48 KG2-M536A-220 HNS,PE 150 8
J140,J141,J142,J143,J144,J145,J154,J155
11 KGT-M661J-000 HNS,CONVEYOR_PWR2 1 J26 49 90K30-444050 HNS,EARTH 4 J146,J147,J148,J149
12 KGT-M661K-000 HNS,CONVEYOR_PWR3 1 J27 50 KM0-M536A-010 HNS,PE 70 2 J150,J151
13 KGT-M661L-000 HNS,FAN_PWR1J28 51 KM0-M536A-010 HNS,PE 70 2 J152,J153
14 KM6-M66M1-102 HNS,TAP CHANGE 10
J30,J31,J32,J33,J34,J35.J36,J37,J39,J40
52 90K30-444025 HNS,EARTH 4 J156,J157,J158,J159
15 KM6-M66M1-202 HNS,TAP CHANGE 1 J38 53 KGT-M668A-000 HNS,I/O_A 1 J171
16 KGA-M662M-001 HNS,U10 JUMPER 1 J41 54 KGT-M668E-000 HNS,I/O_B 1 J172
17 KM6-M66M4-001 HNS 18-4 (JUMPER) 1 J42 55 KGT-M668F-000 HNS,CUNET-HEAD_A 1 J173
18 KGT-M662E-000 HNS,I/F-DC24V 1 J43 56 KGT-M668G-000 HNS,CUNET_Y-FLEX 2 J174,J179
19 KGT-M661N-000 HNS,LED.DRIVER_PWR 1 J44 57 KGT-M668H-000 HNS,CUNET_X-FLEX 2 J175,J180
20 KGT-M661X-000 HNS,I/O.HEAD_PWR 1 J51 58 KGT-M668L-000 HNS,CUNET_HEAD 4 J176,J178,J181,J183
21 KGT-M661Y-000 HNS,DC24V_Y-FLEX 2 J52,J57 59 KGT-M668K-000 HNS,CUNET_X-FLEX2 2 J177,J182
22 KGT-M662A-000 HNS,HEAD.PWR_X-FLEX 4 J53,J55,J58,J60 60 KGT-M66A1-000 HNS,PI1 1 J191
23 KGT-M661W-000 HNS,DC24V_Z-FLEX 4 J54,J56,J59,J61 61 KGT-M66A2-000 HNS,PI2 1 J192
24 KV7-M66N3-000 HNS,LIGHT3 4 J62,J63,J64,J65 62 KGT-M66A3-000 HNS,PI3 1 J193
25 KGT-M665A-000 HNS,CONV._DRIVER 4 J71,J72,J73,J74 63 KGT-M66A4-000 HNS,PI4 1 J194
26 KGT-M665E-000 HNS,CONV._MOTOR 3 J75,J78,J79 64 KGT-M66A5-000 HNS,PI5 1 J195
27 KGT-M665U-000 HNS,CONV._MOTOR2 2 J76,J77 65 KGT-M66A6-000 HNS,PI6_SHORT 1 J196
28 KGT-M665F-000 HNS,CONV._MOTOR3 1 J80 66 KGT-M66A7-000 HNS,Y.YT-PI 4 J197,J198,J209,J210
29 KGT-M665G-000 HNS,CONV._VALVE 1 J81 67 KGT-M66AA-000 HNS,X-PI_Y-FLEX 2 J200,J212
30 KGT-M665H-000 HNS,VALVE_YT-FLEX 2 J82,J83 68 KGT-M66AE-000 HNS,Z.R-PI 2 J202,J214
31 KGT-M665J-000 HNS,OT 1 J84 69 KGT-M66AF-000 HNS,Z.R-PI_Y-FLEX 4 J203,J204,J215,J216
32 KGT-M665K-000 HNS,CONV._SENSOR 1 J85 70 KGT-M66AG-000 HNS,Z.R-PI_X-FLEX 4 J205,J206,J217,J218
33 KGT-M665L-000 HNS,CONV._SENSOR2 1 J86 71 KGT-M66AL-000 HNS,R-PI_Z-FLEX 4 J207,J208,J219,J220
34 KGT-M665M-000 HNS,CONV._SENSOR3 1 J87 72 KGT-M66AJ-000 HNS,YT-PI_YT-FLEX 2 J221,J222
35 KGT-M665N-000 HNS,CONV._SENSOR4 1 J88 73 KGT-M66AK-000 HNS,W-PI 2 J223,J225
36 KGT-M665R-000 HNS,YTORG/OT_FLEX 2 J89,J91 74 KGT-M66AK-100 HNS,W-PI 2 J224,J226
37 KGT-M665T-000 HNS,SENSOR_CONV3 1 J90 75 KGT-M66F1-000 HNS,MO1 1 J231
38 KGT-M665V-000 HNS,SENSOR_CONV2 1 J92 76 KGT-M66F2-000 HNS,MO2 1 J232