第五卷 资 料 - 第22页
1-14 气路图及实际贴装图 5OM-1752 1306-002 吸嘴储料器 ( 实际贴装图 ) 9 4 5 6 No. Name Q’ty No. Name Q’ty No. Name Q’ty No. Name Q’ty 4 Solenoid V alve 1 5 Cylinder 1 6 Cylinder 1 9 Union Y

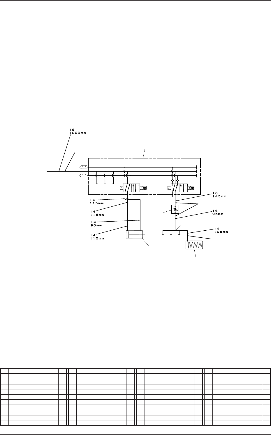
1-13
气路图及实际贴装图
5OM-1752
1306-002
吸嘴储料器 ( 气路图 )
8
4
5
6
2
3
9
1
Stocker 1 U/D
From Main Body
Shutter 1 Open / Close
No. Name Q’ty No. Name Q’ty No. Name Q’ty No. Name Q’ty
1 Tube
φ
8 1
2 Tube
φ
6 1
3 Tube
φ
4 1
4 Solenoid Valve 1
5 Cylinder 1
6 Cylinder 1
8 Needle 1
9 Union Y 1

1-14
气路图及实际贴装图
5OM-1752
1306-002
吸嘴储料器 ( 实际贴装图 )
9
4
5
6
No. Name Q’ty No. Name Q’ty No. Name Q’ty No. Name Q’ty
4 Solenoid Valve 1
5 Cylinder 1
6 Cylinder 1
9 Union Y

1-15
气路图及实际贴装图
5OM-1752
1306-002
安装头部 ( 气路图 )
A
V
P
R
A
P
A
V
P
A
V
P
Valve
Filter
Rotary Joint
φ8 Fitting
φ8
φ4
φ8 Fitting
φ6 Fitting
φ4 Fitting
φ4 Fitting
Valve
3
2
1
4
5
6
From Main Body
Robot Cable
Nozzle1 Nozzle2 Nozzle15
No. Name Q’ty No. Name Q’ty No. Name Q’ty No. Name Q’ty
1 Tube
φ
4 1
2 Tube
φ
8 1
3 Solenoid Valve 1
4 Rotary Joint 1
5 Solenoid Valve 15
6 Filter 15