第五卷 资 料 - 第38页
2-6 传感器及负载配置图 5OM-1752 1306-002 送料器推车布局 Y6912 B6913 Symbol Name Symbol Name Y6912 Feeder Clamp B6913 Feeder Clamp Lower Limit (Clamping)

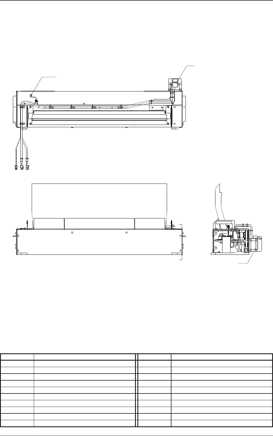
2-5
传感器及负载配置图
5OM-1752
1306-002
横梁 X 轴布局
U21
B36
M21
E39
Symbol Name Symbol Name
M21 X1-Axis Motor
U21 Linear Scale Head (Converter)
B36 PEC Recognition Camera
E39 PEC Recognition Lighting

2-6
传感器及负载配置图
5OM-1752
1306-002
送料器推车布局
Y6912
B6913
Symbol Name Symbol Name
Y6912 Feeder Clamp
B6913
Feeder Clamp Lower Limit (Clamping)

2-7
传感器及负载配置图
5OM-1752
1306-002
切割部布局
Symbol Name Symbol Name
M63 Cutter Axis Motor
B6307 Cutter Axis Origin Sensor
M63
M63
C
C
SECT C-C
B6307