P-0187-001 - 第109页
MODEL TCM-X300 0306-001 Key No. P AR T No. P AR T NAME Q’ ty REMARKS NOTE 107 JB-1 1 630 107 7185 BASE 1 812JB-010-001 2 630 109 2843 B RA CK E T ,L OC A T E 1 812JB-010-002 3 630 064 5460 BR AC KE T 1 812JB-010-003 4 63…

MODEL TCM-X300
0306-001
106
X ゲޔY ゲ X AXIS, Y AXIS
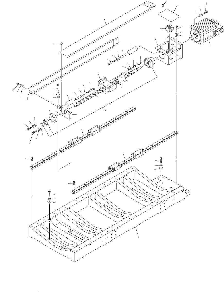
Fig. JB-1 X ゲ㚟േㇱ X Axis Driver
18
14
6
41
44
21
45
11
9
41
7
24
15
8
30
33
16
19
19
28
31
23
42
43
12
10
26
30
33
38
39
40
36
4
31
28
20
31
25
30
34
1
25
30
34
28
20
13
17
3
2
32
29
22
14
18

MODEL TCM-X300
0306-001
Key No. PART No. PART NAME Q’ty REMARKS
NOTE
107
JB-1
1 630 107 7185 BASE 1 812JB-010-001
2 630 109 2843 BRACKET,LOCATE 1 812JB-010-002
3 630 064 5460 BRACKET 1 812JB-010-003
4 630 064 5569 HOLDER 1 812JB-010-004
6 630 066 1408 COVER 1 812JB-010-006
7 630 053 2104 COVER 1 812JB-010-007
8 630 064 4005 BRACKET,LOCATE 1 812JB-010-008
9 630 117 7304 MECH PARTS 1 812JB-010-009
10 630 119 7913 MECH PARTS 1 812JB-010-010
11 630 117 8110 COLLAR 1 812JB-010-011
12 630 120 6110 COLLAR 1 812JB-010-012
13 630 119 8217 BALL SCREW 1 812JB-010-013
14 630 083 7292 GUIDE,LINEAR 1 812JB-010-014
15 630 063 9278 COUPLING 1 812JB-010-015
16 630 086 3529 MOTOR,AC-SERVO 1 MSVM6(X),#SGMSH-30ACA-TV11
812JB-010-016
17 630 037 6647 BEARING,UNIT 1 WBK 20-11 812JB-010-017
18 630 000 7770 BOLT,HEX-SCT 38 812JB-010-018
19 630 000 7909 BOLT,HEX-SCT 8 812JB-010-019
20 630 000 7916 BOLT,HEX-SCT 2 812JB-010-020
21 630 000 8104 BOLT,HEX-SCT 1 812JB-010-021
22 630 000 8036 BOLT,HEX-SCT 4 812JB-010-022
23 630 000 8098 BOLT,HEX-SCT 1 812JB-010-023
24 630 000 8159 BOLT,HEX-SCT 4 812JB-010-024
25 630 000 8166 BOLT,HEX-SCT 10 812JB-010-025
26 630 000 8180 BOLT,HEX-SCT 2 812JB-010-026
28 411 141 3001 WASHER SPR 6 6 812JB-010-028
29 411 141 3100 WASHER SPR 8 4 812JB-010-029
30 411 141 3209 WASHER SPR 10 16 812JB-010-030
31 411 141 4305 WASHER V 6X12.5X1.6 6 812JB-010-031
32 411 141 4503 WASHER V 8X17X1.6 4 812JB-010-032
33 411 141 4701 WASHER V 10X21X2 6 812JB-010-033
34 630 001 0251 WASHER 10 812JB-010-034
36 630 110 3754 COVER 1 812JB-010-036
38 630 000 7602 BOLT,HEX-SCT 4 812JB-010-038
39 411 141 2905 WASHER SPR 4 4 812JB-010-039
40 411 141 4008 WASHER V 4X9X0.8 4 812JB-010-040
41 630 111 3906 BOLT,HEX-SCT(BUTTON HEAD) 6 812JB-010-041
42 411 141 3100 WASHER SPR 8 1 812JB-010-042
43 411 141 6101 WASHER F 8X15.5X1.6 1 812JB-010-043
44 411 141 3100 WASHER SPR 8 1 812JB-010-044
45 411 141 6101 WASHER F 8X15.5X1.6 1 812JB-010-045

MODEL TCM-X300
0306-001
108
X ゲޔY ゲ X AXIS, Y AXIS
Fig. JB-2 X ࠹ࡉ࡞ᬌㇱ X Table Detector
102
103
109
107
105
104
See Fig.JB-1
Key No.1
110
108
106
108
110
104
101
109
107
105
103
106