80S-20电路图 - 第557页

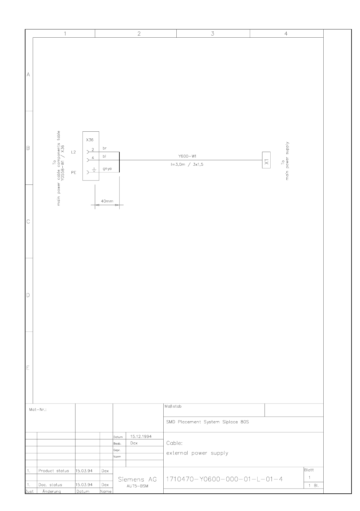
OPTIONS Cable Ex ternal power supply 9.9 - 1 9.9 E xterna l power s upply compone nts tabl e (0031 4845- 01) Cable E xterna l power supply Y0600L 01.dwg 1710470- Y060 0-000-01 -L-01 -4 Cable Ext ernal p ower su pply

100%1 / 679
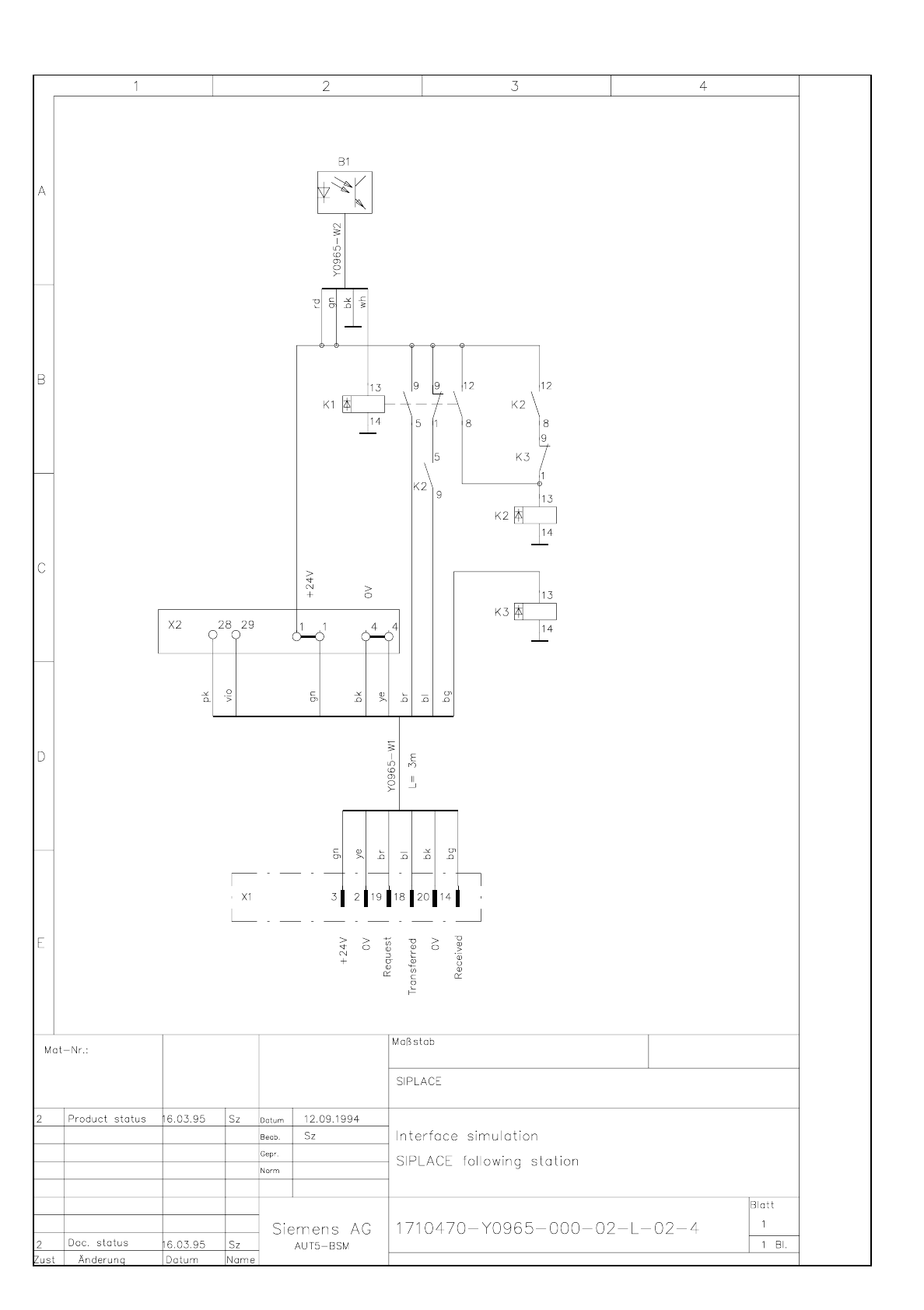
9.7 - 6 Interface simulation following station SIPLACE OPTIONS
Interface simulation following station SIPLACE
y0965L02.dwg
1710470-Y0965-000-02-L-02-4 Interface simulation following station SIPLACE
OPTIONS Cable External power supply 9.9 - 1
9.9 External power supply components table (00314845-01)
Cable External power supply
Y0600L01.dwg
1710470-Y0600-000-01-L-01-4 Cable External power supply
9.9 - 2 OPTIONS