80S20 circuit - 第120页
5 SIPLACE 80S-20 Printed Circuit Boards 120 00322822-030101ND3 Servo controller , component mount ing diagram C50 C21 Spacer Vulcanized rubber disk Vulcanized rubber disk PCB Spacer bolt thin thick Comp. side Nut R37 R36…

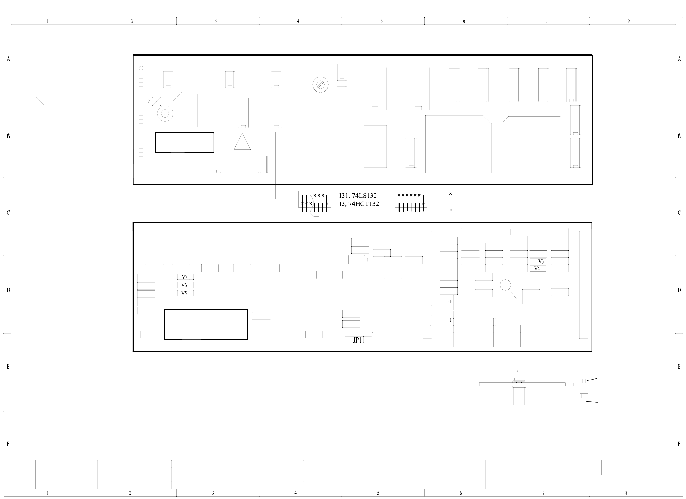
5 SIPLACE 80S-20 Printed Circuit Boards 119
00322100-030102ND4 Anticrash board
00322333-010304MD4 Video multiplexer, manually controlled
02.09.1992
Goller
00322100-030102ND4
Anti-crash board
MSTB
3. 04.03.97 Sz
1.
2.
04.03.97
05.06.97
Sz
Tek
A
B
C
D
E
1234
AUT5-BSM
Siemens AG
00322100-030102ND4
C = ESD label
B = Inspection label
A = Identification label
IC12
IC11 IC13 IC15 IC17
IC14 IC16 IC18
IC19
X1
A
B
EGB
C
TP1 TP2 TP10
V14 V15 V16 V17 V18
TA1
R8 R9 R10 R11 R12
C25
C11
IC5
IC6
IC7
IC8
IC10
IC9
V1 V3 V6 V5 V8 V9 V11 V12
V13V10V2 V4 V7
R76
R58
R78
R77
R79
R16
R19
R20
R21
R22
R64
R71
R17
R59
IC2
IC3
IC1
TP7
TP8TP6
TP4
TP5
TP3
R56
R57
R15
R70
R85
R72
R30
R29
R91
R90
R75
R40
R38
R39
R7
R42
R6
R31
R32
R34
R35
R3
R5
R4
R23
R24
R2
R26
R27
R82
R83
R84
R73
R37
R74
R89
R88
R60
R61
R13
R92
R14
R47
R41
R43
R33
R48
R50
R66
R67
R68
R49
R45
R46
R65
R18
R86
R87
R80
R81
R63
R25
R52
R99
R98
R28
R53
R97
R96
R36
R54
R44
R55
R62
R51
R93
R1
R69
R95
R94
V26
C3
C10 C15 C14 C19 C18
C1C2
V19
V21
V24
V25
V23
V22
V20
C8
C9
C12
C13
C16
C17
C20
C21
C22 C23C24
TP9
V27
+++++
Function status
SMD Placement System Siplace 80S
Doc. status
1
1
Product status
CAD file:
Date
Author
Check.
Stand.
Status Modified Date Name
Sh.
Sh.
Scale
Siplace 80S/F
Product status
Doc. status
Function status
11.10.95
11.10.9502
02
KL
KL
01 11.10.95
KLOSE
SIEMENS AG
ANL A441 EPGM
1710470-Y1025-000
Pinch off PIN
Video multiplexer
manually controlled
00322333-010304MD4
G32918-F0050-B001-*-17
1-
B = Inspection label
A = Identification label
C = ESD label
Sheet
Stat. Modified
Drawing no.:
Date Name
Date
Name
Scale 1:1

5 SIPLACE 80S-20 Printed Circuit Boards 120
00322822-030101ND3 Servo controller, component mounting diagram
C50
C21
Spacer
Vulcanized rubber disk
Vulcanized rubber disk
PCB
Spacer bolt
thin
thickComp. side
Nut
R37
R36C43 R41
C41 R40
C11
R33
R32
S I P L A C E 8 0 S 2 0
Servo controller
=
+
8 mm
6 mm
1Sheet
3.
15.7.96
15.7.96
15.7.96
15.07.96
00322822-030101ND3
Pin14
C24
Viewed from the solder side
R63
C60
C28
C64
R62
C61
C26 C25
R8
I1
I8
B
= Cut PCB track
I11
C40
C18
C22
R3R12
C51
C10
C23
R4C20C19
X1
C52
C53
C29
Pin1
Connection to SMD pad
I13
I2
I6
I20
I19
I21
I10
I3
I29
I4
I16
R28
C
Viewed from the components side
Pinched-off pins
R39R34 C13 C42R38
R10
C4
R16
C8
C35
C63
R51
C48
C3
R35
C49
C14
R61
C47
R6
R5
C44
C2
C34
R31
R30
C12
R9
C1
R19
R23 R18
X2
R22
R11
R65
C32
C33
WMW SMD E
SIEMENS AG
Max. component height bottom:
Max. component height top:
Date Name Stand.
Comp. mounting diagram
1Sh.ModifiedStatus
The following labels have to be stuck on !
1710470-Y1021
A
A: Identification label
C27
Check.
Author
Date
C: ESD label
B: Inspection label
TE - BR
TE
TE
1.
1.
TE
Function status
Product status
Doc. status
R21
R7
C5
R26
R25R24
R17
R15
R14
R13
C37
C36
C9
V1V2
C7
C6
A1
Soldered pins
I23
I18
I26
I25
I22
I24
I28
I27 I30

5 SIPLACE 80S-20 Printed Circuit Boards 121
00323583-030101ND3 SMD component table control board (Sh. 1 of 2)
Function status
Product status
Component table control board, SMD
SMD placement system Siplace 80S
Sh.
Sh.
03
00323583-030101ND3
01
01
Stat. Modified Date Name
Check.
Stand.