80S20 circuit - 第125页
5 SIPLACE 80S-20 Printed Circuit Boards 125 00325579-020101ND4 775 PCB, step motor contr ol, power circui t 00325579-020101ND4 776 PCB, step motor contr ol, control unit Technische Dok umentati on Hick, Tec hnische Dokum…

5 SIPLACE 80S-20 Printed Circuit Boards 124
00325460-010101ND4 774 PCB, half bridge board
A = IDENTIFICATION LABEL
B = INSPECTION LABEL
C = ESD LABEL
B = SOLDER SIDE
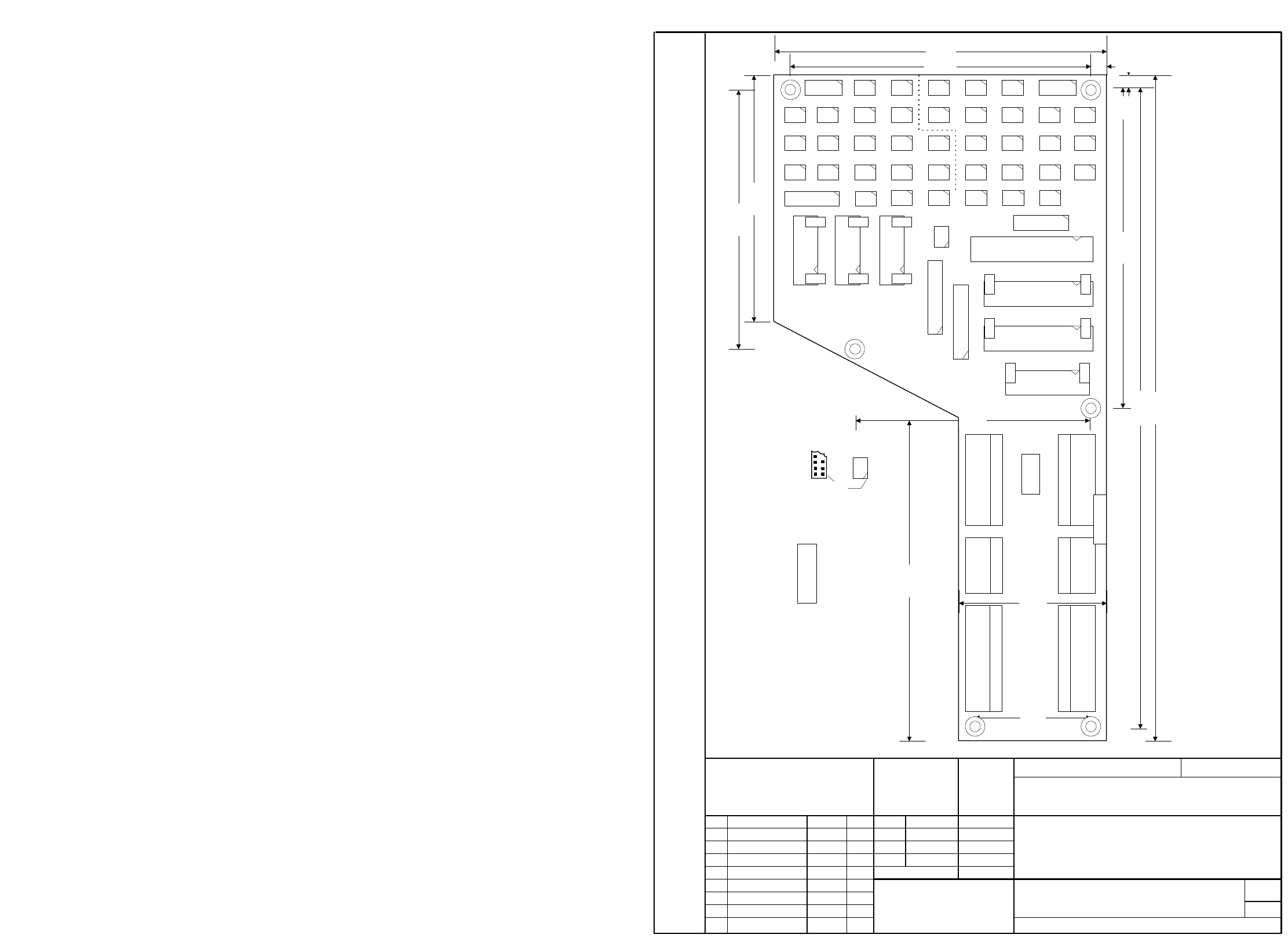
PCB 774
HALF BRIDGE BOARD
00325460-010101ND4
G32918-H0005-B001-*-0017
COMPONENT MOUNTING DIAGRAM
4-LAYER PCB
Sheet
Stat. Modified Date Name
Date
Name
Scale 1:1

5 SIPLACE 80S-20 Printed Circuit Boards 125
00325579-020101ND4 775 PCB, step motor control, power circuit
00325579-020101ND4 776 PCB, step motor control, control unit
Technische Dokumentation Hick, Technische Dokumentation Hick 18.05.00 10:16 00325579-020101ND4_LT.dwg
A = IDENTIFICATION LABEL
B = INSPECTION LABEL
C = ESD LABEL
LABELS A, B, C ON PLUG X1
STEP MOTOR CONTROL
POWER CIRCUIT
PCB 775
G32918-H0006-B001-*-0017
00325579-020101ND4
COMPONENT MOUNTING DIAGRAM
4-LAYER PCB
Stat. Modified Date Name
Date
Name
Sheet
Scale 1:1
Technische Dokumentation Hick, Technische Dokumentation Hick 1 8.05.00 10:10 00325 579-02010 1ND4_ST. dwg
A = IDENTIFICATION LABEL ON THE BACK
B = INSPECTION LABEL ON THE BACK
C = ESD LABEL ON THE BACK
PCB 776
STEP MOTOR CONTROL
CONTROL UNIT
COMPONENT MOUNTING DIAGRAM
6-LAYER PCB
G32918-H0007-B001-*-17
00325579-020101ND4
Sheet
Stat. Modified Date Name
Date
Name
Scale 1:1

5 SIPLACE 80S-20 Printed Circuit Boards 126
00325581-030101MD4 Conversion board, PCB conveyor
1.
3.
1.
10.04.97
10.04.97
10.04.97 Tu.
Tu.
Tu.
02.07.1996
02.07.1996
00325581-030101MD4
SIEMENS
Aktiengesellschaft
AUT 5 EBS 8
Date
Author
Check.
Stand.
Name
File name:
Stat.
Modified
Date
Name
(Drawing number)
Format A4
Drawing no.: FS PS DS S/F
Sheet
Scale
Weitergabe sowie Vervielfältigung dieser Unterlage, Verwertung und Mitteilung ihres
Inhaltes nicht gestattet, soweit nicht ausdrücklich zugestanden. Zuwiderhandlungen
verpflichten zu Schadenersatz. Alle Rechte für den Fall der Patenterteilung oder GM-
Eintragung vorbehalten.
Copying of this document, and giving it to others and the use or communication of the
contents thereof, are forbidden without express authority. Offenders are liable to the
payment of damages. All rights are reserved in the event of the grant of a patent or the
registration of the utility model or design.
X12 20 pole AMP
X13 20pole AMP
270 mm
130 mm
135mm
100 mm
60 mm
48mm
258 mm
129 mm
6 mm
6 mm123 mm
104 mm
94 mm
Pin 1
Key 1
Key 1
Key 1
Key 2
Key 2
Key 2
X45
5
X16
10
5
X24
5
X22
X20
1
X18
3
X42
5
X30
1
X48
4
X44
X38
1
X32
4
X26 X28
5
X36
4
X34
1
X40
4
X46
4
X6
BK mod. 30pole
X8
BK mod. 26pole
X10
BK mod. 26pole
X7
BK mod. 20pole
X5
BK mod. 14pole
X3
BK mod. 14pole
X4
BK mod. 14pole
J1
X47 X45
5
X41 X43
4
X19
3
X21
1
X23
X49
5
X35
1
X37
4
X39
1
X33
1
X27
X31
4
X29
1
X17
9
25
5
X2
Combicon 7pole.
.1
X1
Combicon 7pole
1.
X14
Combi. 4pole
.1
X15
Combi. 4pole
1.
X11
Combicon 8pole
1.
X9
Combicon 8pole.
.1
00325581-030101MD4.vsd
1/1
Siemens AUT 5
00325581-01
B
A
X57
2 und 13
X56
1 + 14
X55
5
X53
1
X51
4
X50
1
X52
5
X54
1
14
15
Siplace 80S20/F4 SMD placement system
Conversion board, PCB conveyor
Function status
Product status
Document. status
6 holes: dia.=4.5 mm
Tolerances: +/- 0.1mm
Plugs X12, X13, X16 - X49
viewed from top
Plug designation
and coding (pin no.)
Combicon plug coding
Codierreiter CR-MSTB Item no.: 1734401
J1 Jumper on pins 1-2
A Inscription label
B Inspection label