80S20 circuit - 第62页
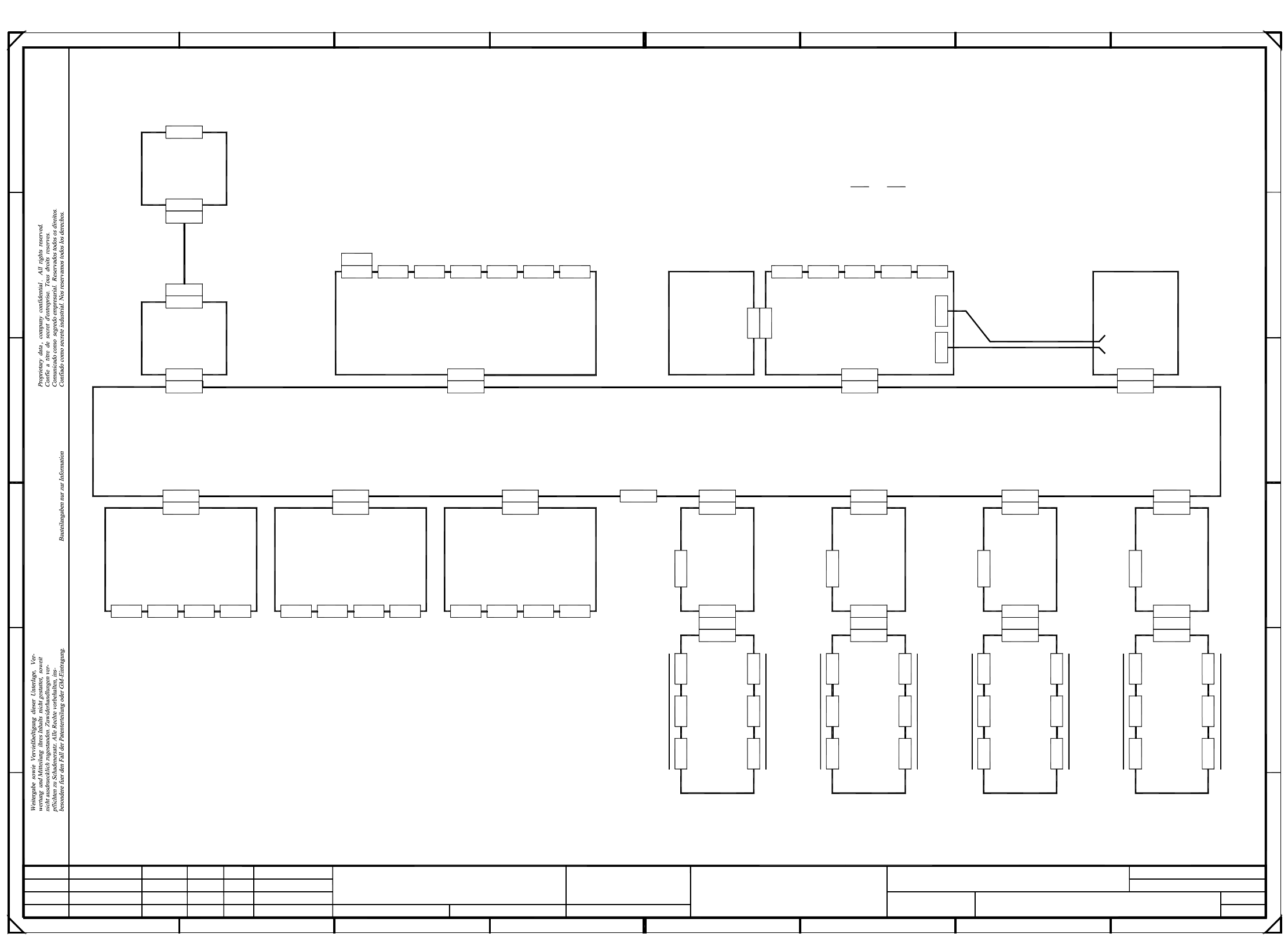
3 SIPLACE 80S-20 Circuit Diagrams 62 00324087-070101LD3 80S-20 control unit (Sh. 1 of 2) X2sp X2sp X1ry X1ry A23 ( ry ) X2ry 00324196 X2se X 3se X4 se X 5se X1su X1se A3 ( se ) X2sf X3sf X4sf X5s f X2su X2sd A13 ( sd ) X…

3 SIPLACE 80S-20 Circuit Diagrams 61
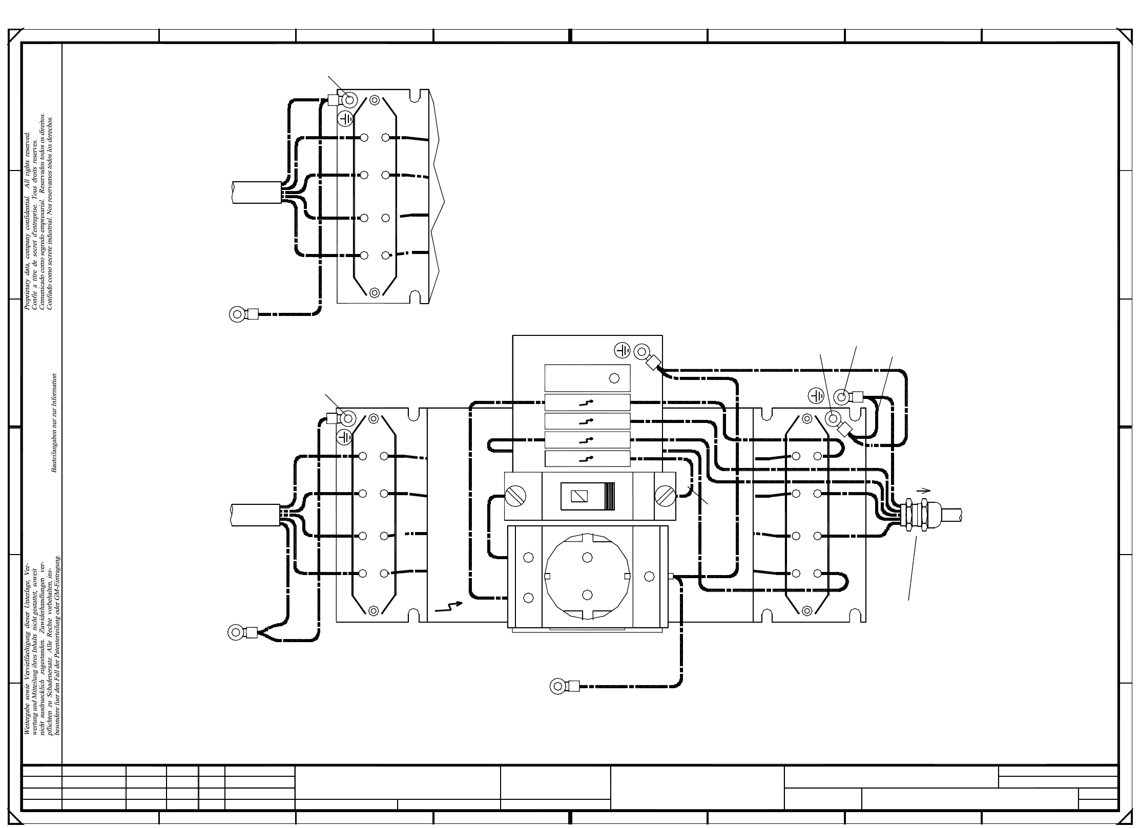
00300272-050101TD3 Service socket
bl
gnye
(00315975-xx)
S15/F3/G2
(00321086-xx/00336812-xx)
S20/S23/F4
Ground
main power
filter
Ground
main power
filter
PG
00342916-01
Ground
filter
main power
frame
machine
1
1
Ground
machine
frame
00321112-xx
(W1)
To
main switch
in
power supply
(W1)
00342917-01
frame
machine
Ground
gnye
bl
bk
br
bk
gnye
(W2)
00342917-01
A1
Service socket
PE
NL
F20
F
E
unit
12 3N
00321112-xx
(W2)
gnye
bk
br
bk
8
1
2
1
X216
NN11
NN11
N32
Warning......
1x2.5mm²
B
C
SMD Placement System SIPLACE 80S
1
N321
unit
power supply
in
main switch
To
1
1x2.5mm²
bl
br
gnye
00342916-01 (W5)
profile
U
Ground
bk
bk
4
1
3
2
bk
bk
(W1)
4567
E
F
567
carrying
Ground
1x2.5mm² each br
1x2.5mm²
bl
gnye
(W4)00342916-01
(W3)
00342916-01
(W2)
00342916-01
gnye
gnye
main power plug
To
screw fitting
DD
234
A
23 8
Product status
Function status
01
01
05
Leh
Leh
Leh
C
B
A
Ground
bracket
PL EA1 E
00300272-050101TD3
Service socket
#
Haas
20.07.98
17.07.98
17.07.98
17.07.98
Document status
gnye
=
Date
Check.
Stand.
Author
Sheet
Urspr. Ers. f. Ers. d.NameDateModifiedStatus
SIEMENS AG
Sh.
+

3 SIPLACE 80S-20 Circuit Diagrams 62
00324087-070101LD3 80S-20 control unit (Sh. 1 of 2)
X2sp
X2sp
X1ry
X1ry
A23
( ry )
X2ry
00324196
X2se X3se X4se X5se
X1su
X1se
A3
( se )
X2sf X3sf X4sf X5sf
X2su
X2sd
A13
( sd )
X1rz
A36
( rz )
X3sa X4sa X5sa X6sa X7sa
X6sa
X1sa
A1
( sa )
X9saX8sa
A11
( th )
C0938-W1/W2
X11su
X1th
X12su
X1sd
X3su
X1sg
A5
( sg )
X4su
A10
X5su
X1sm
X3sm
X2sm
A6
(sm)
X22
X7sz
X1sz
X
X2sz
X3sz
X4sz
X5sz
X6sz
A27
(sz)
X7sd X6sd X5sd X4sd X3sd
A7
(sn)
X23
X7ta
X1ta
8
X2ta
X3ta
X4ta
X5ta
X6ta
A28
(ta)
Z
Z
DP
DP
X8sd
1234567
X2sg X3sg X4sg X5sg
X7su
X1tq
X3tq
X2tq
A8
(tq)
X24
X7uc
X1uc
X3tr
X2uc
X3uc
X4uc
X5uc
X6uc
A29
(uc)
X
X
Y
Y
X8su
X1tr
X3sn
X2sn
X1sn
X2ud
X3ud
X4ud
X5ud
X6ud
A30
(ud)
Z
Z
DP
DP
A32
( su )
X
Y
Y
X6su
Tek
Tek
07.
01.
01.
19.03.99
19.03.99
19.03.99
19.03.99
Wollgarten
#
00324087-070101LD3
00321036
00321037
00321036
00321037
X1ud
PL EA1 E
1
2
Tek
Date
Check.
Author
Creat. byCreat. f.Orig.NameModified DateStatus Stand.
Sh.
Sheet
SMD Placement System SIPLACE 80S20
Document status
Product status
Function status
The A27 – A30 axes rear panels are part of the external cable harness !
S20B control unit
I/O board I/O board I/O board
SMP bus
( 12-pole )
Spare
(Gantry 1)
Star axis Axis controller
(Gantry 1)
Star axis
(Gantry 2) (Gantry 2)
Axis controller
Data lines
Winchester /
Floppy
M44 machine controllerAMS bus
(5-pole)
Communications assembly
Interface
TCP/IP
cable
Transceiver
Transceiver
LAN
Inputs
Outputs
Outputs
Inputs
Outputs
Outputs
Inputs
Inputs
Outputs
Outputs
Inputs
Inputs
Interface
Printer
Interface
Serial
Serial
Monitor
Keyboard
Interface
Interface
Interface
Interface
Interface
CAN bus
Interface
CAN bus
Interface
Axes tracks
Axis rear panel
Star
Star
Nominal values
Axes tracks
Axis rear panel
Nominal values
Axes tracks
Star
Axis rear panel
Star
Nominal values
Axes tracks
Axis rear panel
Nominal values
Axis service
Axis service
Axis service
Axis service
=
SIEMENS AG
+
X2tr
A9
(tr)
X25
X7ud
COM 1
COM 2
12345678
A
B
C
D
E
FF
E
D
C
B
A
X1sf
A4
( sf )
X92
HS3L
V24-4
V24-3
V24-2
V24-1
X10su
X1sp
X9su
A14
( sp )

3 SIPLACE 80S-20 Circuit Diagrams 63
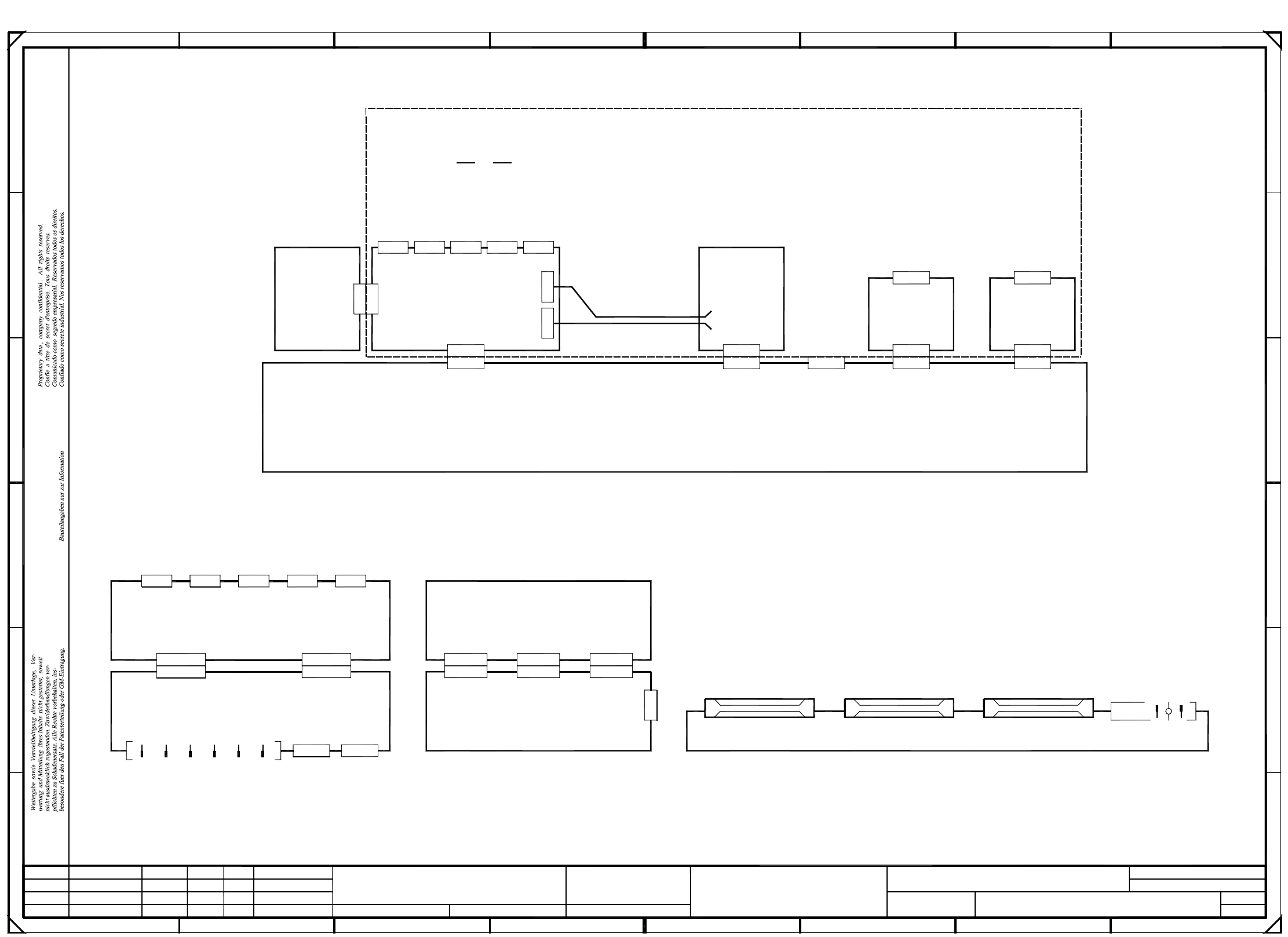
00324087-070101LD3 80S-20 control unit (Sh. 2 of 2)
A27
67
COM 1
COM 2
12345678
A
Tek
Tek
07.
01.
01.
11.11.99
11.11.99
11.11.99
05.06.1999
Tekin
#
00324087-070101LD3
E
D
C
B
A
X1ss
X1ts
X2ss
PL EA1 E
2
2
Tek
Date
Check.
Author
Creat. byCreat. f.Orig.NameModified DateStatus Stand.
Sh.
Sheet
SMD Placement System SIPLACE 80S20
Document status
Product status
Function status
S20B control unit
Fan unit
Vision module
MVS rear panel board
S23 power supply unit
Power supply backplane
Camera 2 / 4
Display
Camera 1 / 3
( 5-pole )
SMP bus
Data lines
Interface Interface
Applies to GEM option only !
M44 machine controllerAMS bus
(5-pole)
Keyboard
Serial
Interface
Monitor
Interface
Printer
Serial
=
SIEMENS AG
+
X6sc X7sc
X1sc X2sc
X8sv X9sv
A2
A33
( sv )
X1 X2
X1ts
A15
( ts )
( ue )
X11sv
X1ue
12
+24VDC
TCP/IP-
X2ts
X1tt
A16
( tt )
( rz )
X3sb X4sb X5sb
TCP/IP-
X2tt
GEM
X1tb X2tb X4tb X5tbX3tb
LAN LAN
X3sc X4sc
A31
( tb )
X3 X4 X5 X6
( sc )
12345
S-Com 1
S-Com 2
- 12V
+ 12V
+ 5V
0V
+ 5V
0V
X5sc
A35
B
C
D
E
FF
GND
X10sv
X1tc
X4rz
A36
X6sb X7sb
X2sb
X1sb
A12
( sb )
X9sbX8sb
A17
( tc )
Winchester /
Floppy
C0938-W1/W2
X3ss
X2ts X3ts
X4ts
(ss)
8
A26
(ts)