TR5DNR_维修调整 - 第25页
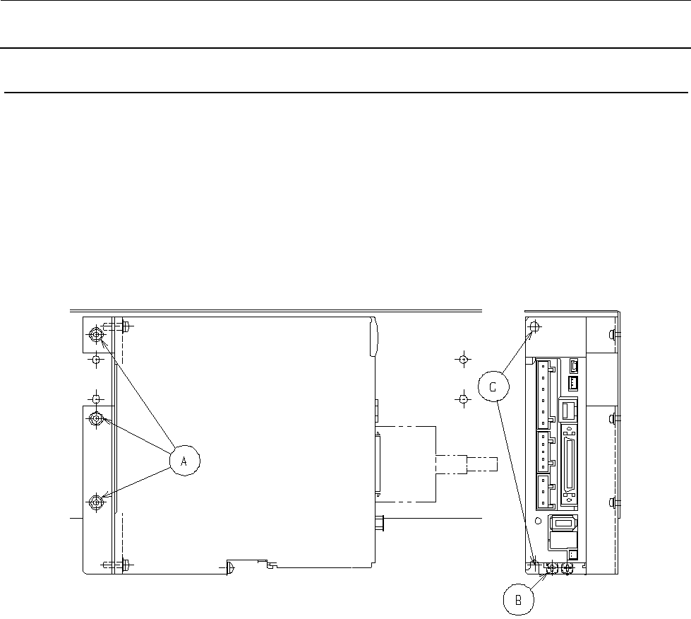
维修调整要领书 3-5 3- 4. AC 伺服驱动器的更换 请拆下驱动器的连接器。 拆下 A 部的螺丝,将驱动器连同托架拉出。(此时 B 部还连着 FG 线,故请注意) 拉出到能够取下 B 部 C 部螺丝的位置后,请拆下 B 部 C 部的螺丝并更换驱动器。 ※输入参数需要专用软件。 驱动器单体出厂时,是发货已输入好参数的驱动器,请准备下述货号的驱动器。 备用驱动器货号: 40040687 ⑤伺服驱动器(货号: 40040687 )(据图…

维修调整要领书
3-4
3-3. 电路保护器的更换
拆下 A 部的螺丝后即可连同托架向身前拉出。(此时电路板还带有连接器,故请注意不要拆下。)
拉出到能够检查电路保护器的位置后,请按照下表换成相同额定值的部件。
名称
额定
货号
适用
CP1
3A
HA005240000
主电源
CP2
10A
HA00524000C
伺服驱动器
CP5
5A
HA00524000A
Y 轴脉冲驱动器
CP2
CP5
CP1

维修调整要领书
3-5
3-4. AC 伺服驱动器的更换
请拆下驱动器的连接器。
拆下 A 部的螺丝,将驱动器连同托架拉出。(此时 B 部还连着 FG 线,故请注意)
拉出到能够取下 B 部 C 部螺丝的位置后,请拆下 B 部 C 部的螺丝并更换驱动器。
※输入参数需要专用软件。
驱动器单体出厂时,是发货已输入好参数的驱动器,请准备下述货号的驱动器。
备用驱动器货号:40040687
⑤伺服驱动器(货号:40040687)(据图 3-1)

维修调整要领书
3-6
3-5. 步进电动机驱动器的更换
请拆下驱动器的连接器。
拆下 A 部的螺丝,将驱动器连同托架拉出。
请拆下 B 部的螺丝更换驱动器。
更换后请根据下图进行开关的设定。
⑥步进电动机驱动器(货号:40045711)(据图 3-1)
0
1
2
3
4
5
6
7
8
9
A
B
C
D
E
F
0
1
2
3
4
5
6
7
8
9
A
B
C
D
E
F
0
1
2
3
4
5
6
7
8
9
A
B
C
D
E
F
1
2
F
S.S
RUN
STP
1 2 3 4
F/R
LV
PD
EORG
設定値
OFF
ON
ON
OFF
设定值