TR5DNR_维修调整 - 第88页
维修调整要领书 7- 10 7- 10. Y 夹持器减速用电磁阀的更换(选配:低速 2 模式) 请更换 Y 夹持器减速用电磁阀。 ④ Y 夹持器减速用电磁阀(货号: 40049588 ) SLOW MODE (TRAY HLD2 ) CABLE 2 ASM ⑤ Y 夹持器减速用电磁阀(货号: 40049586 ) SLOW MODE (TRAY HLD1) CABLE 2 ASM

维修调整要领书
7-9
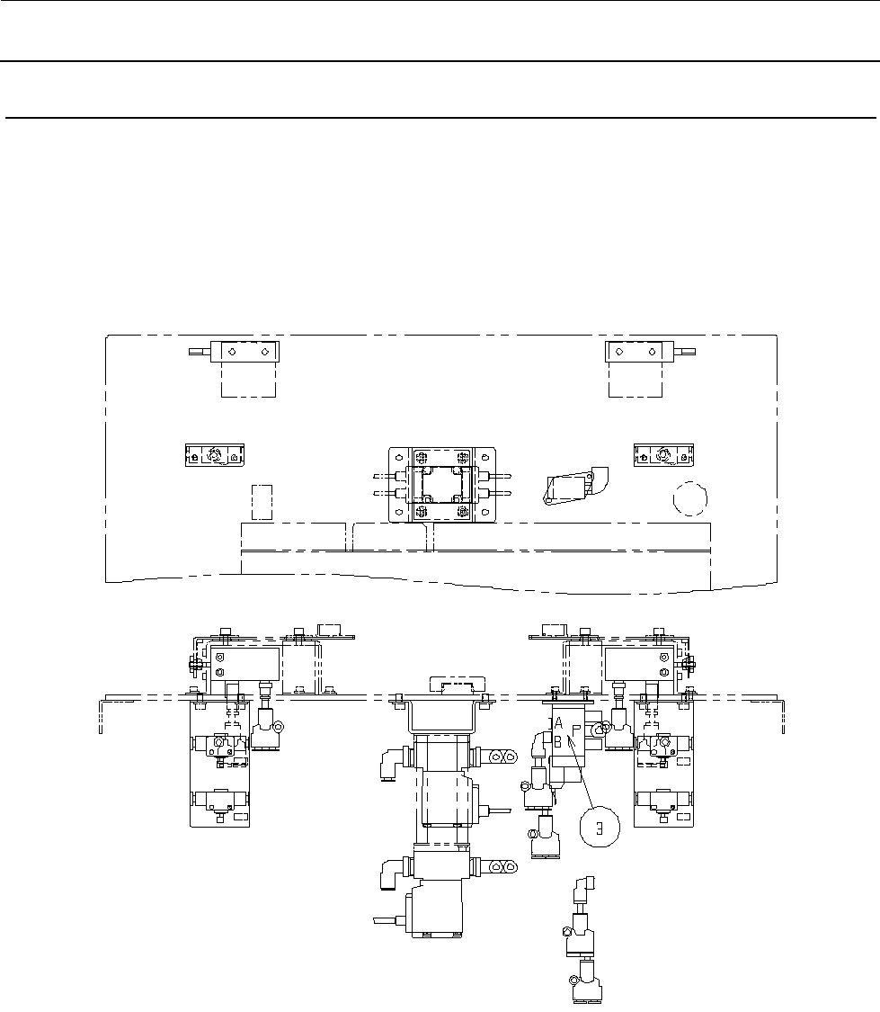
7-9. 卡盘开闭阀的更换
请更换卡盘开闭阀。
③卡盘开闭阀(货号:40049595)

维修调整要领书
7-10
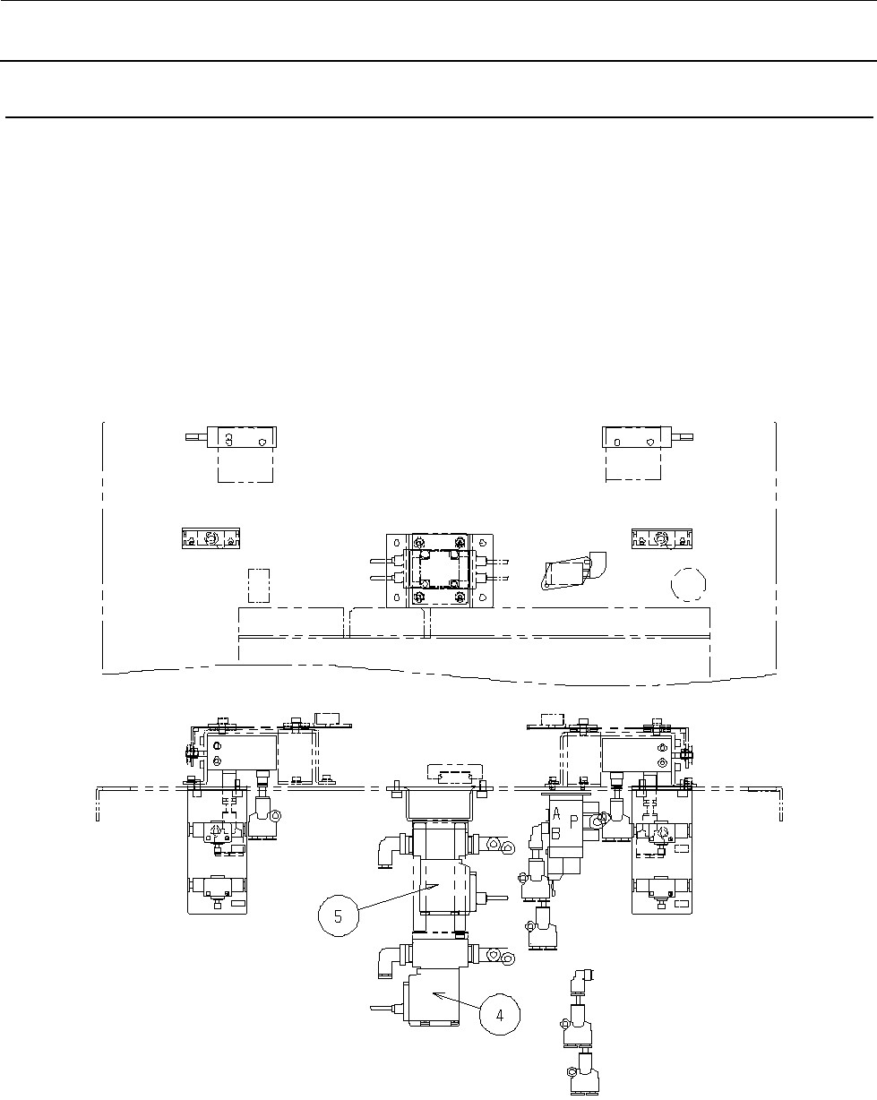
7-10. Y 夹持器减速用电磁阀的更换(选配:低速 2 模式)
请更换 Y 夹持器减速用电磁阀。
④Y 夹持器减速用电磁阀(货号:40049588)
SLOW MODE (TRAY HLD2) CABLE 2 ASM
⑤Y 夹持器减速用电磁阀(货号:40049586)
SLOW MODE (TRAY HLD1) CABLE 2 ASM

维修调整要领书
7-11
7-11. CG 装置部的气动部件配置图
①正弦气缸(货号:PA4045001A0)
②叠盘箱切换阀(货号:40049535)