PTS-XP242E-05JE - 第75页
63

PNEUMATIC CIRCUIT DIAGRAM(PI)
エアー配管図(PI) ADNPI9301
No. Drg.No. & Code No. QTY Description Rating Materials Remarks
番号 図番 & コード番号 個数 品名 規格 材質 備考
KK Y3077F - UNION, ELBOW ユニオン エルボ KQ2LE08-00 OT
LL Y3077E - UNION, ELBOW ユニオン エルボ KQ2LE06-00 OT
MM Y3085T - UNION, HALF ユニオン ハーフ KQ2H08-02S OT
NN Y3079D - UNION, ELBOW ユニオン エルボ KQ2L06-08 OT
PP K50767 - CONNECTOR コネクタ KQ2U08-10 OT
AH H3145K - PLUG プラグ KQ2P-04 OT
AL Y3079S - UNION, ELBOW ユニオン エルボ KQ2L08-01S OT
AM Y3077L - UNION, ELBOW ユニオン エルボ KQ2LU08-00 OT
AS Y3079B - UNION, ELBOW ユニオン エルボ KQ2L06-03S OT
AT Y3077Z - UNION, ELBOW ユニオン エルボ KQ2L04-M5 OT
AU Y3028T - UNION ユニオン GF-ST-3/8 OT
AV H1287A - PIPE, DOUBLE ENDED パイプ 両口 3/8X 60 OT
AW A40493 - ELBOW エルボ GF-SL-3/8 OT
AX A3036A - PLUG 埋栓 PT3/8 OT
AY Y3077K - UNION, ELBOW ユニオン エルボ KQ2LE10-00 OT
AZ A4066H - ELBOW エルボ KQ2L10-99 OT
BA Y3068X - UNION ユニオン KQ2K08-03S OT
BC Y31012 - UNION, ELBOW ユニオン エルボ KQ2K08-01S OT
BD Y30861 - UNION, HALF ユニオン ハーフ KQ2S08-02S OT
BE Y30862 - UNION, HALF ユニオン ハーフ KQ2S06-02S OT
BF Y3121A - UNION, ELBOW ユニオン エルボ KQ2VS04-01S OT
BG
Y3123A
-
UNION, ELBOW
ユニオン エルボ
KQ2T06-04
OT
62

63

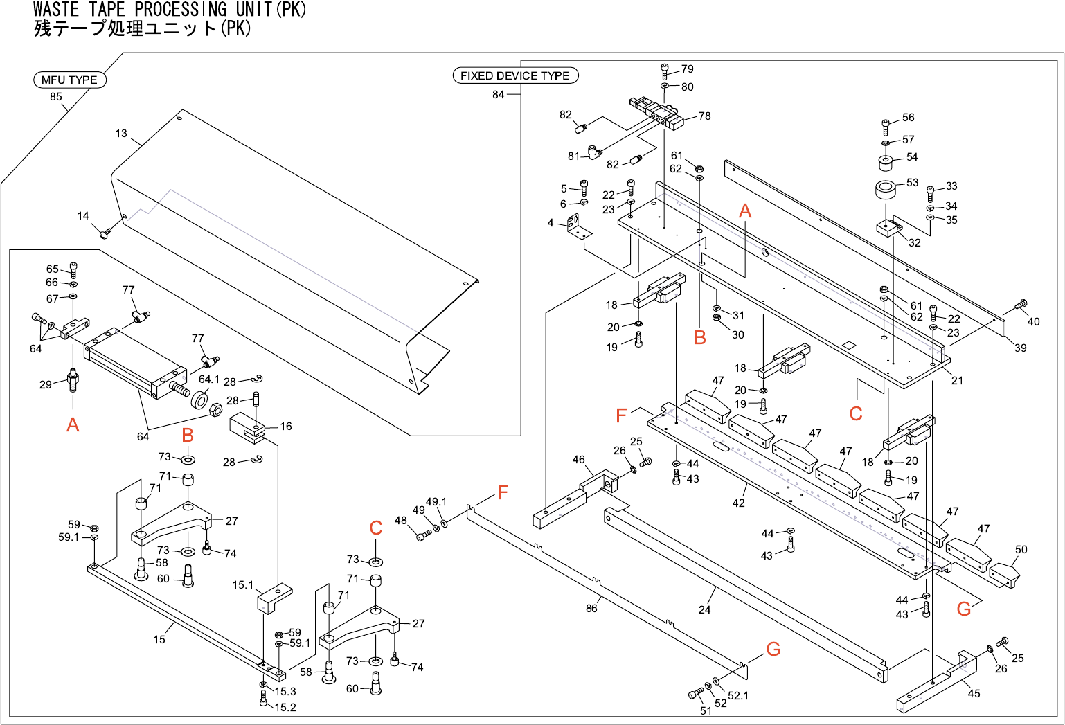
WASTE TAPE PROCESSING UNIT(PK)
残テープ処理ユニット(PK)
No.
Drg.No. & Code No.
QTY Description Rating Materials Remarks
番号 図番 & コード番号 個数 品名 規格 材質 備考
4 DNPK1021 1 BKT
BKT
FE
5 H5287A 2 BOLT, HEX SOCKET
ボルト 六角穴
M04X008 ゼンネジ FE
6 W1022A 2 WASHER, LOCK
ワッシャ スプリング
4M/M FE
13 ADNPK8012 1 COVER
カバー
OT DNPK0221+DNPZ1050+DNPZ1060
14 K5214A 4 SCREW, C/R TRUSS
小ネジ 十穴トラス
M05X008 ユニクロメッキ FE
15 DNPK0010 1 BAR
バー
FE
15.1 DNPK0021 1 BLOCK
ブロック
FE
15.2 H5324A 2 BOLT, HEX SOCKET
ボルト 六角穴
M06X020 FE
15.3 W1024A 2 WASHER, LOCK
ワッシャ スプリング
6M/M FE
16 DNPK0030 1 KNUCKLE
ナックル
FE
18 DNPK0040 3 GUIDE, RAIL
ガイド レール
OT
19 H5290A 9 BOLT, HEX SOCKET
ボルト 六角穴
M04X015 FE
20 W1011A 9 WASHER, CONICAL
ワッシャ 皿
M- 4-L FE
21 ADNPK8021 1 BKT
BKT
OT DNPK0151+DNPZ1050
22 H5342A 4 BOLT, HEX SOCKET
ボルト 六角穴
M08X025 FE
23 W1025A 4 WASHER, LOCK
ワッシャ スプリング
8M/M FE
24 DNPK0310 1 CUTTER, STATIONARY カッタ 固定 FE
25 K5263T 2 SCREW, HEX SOCKET BUTTON
小ネジ 六角穴ボタン
M12X025 FE
26 W1016A 2 WASHER, CONICAL
ワッシャ 皿
M-12-H FE
27 DNPK0060 2 LEVER
レバー
FE
28 H21870 1 PIN
ピン
CDGH10-30 OT
29 DNPK0080 1 PIN, PIVOT
ピン 支点
FE
30 N1096A 1 NUT, HEX
ナット 六角
M12 P=1.75 FE
31 W1027A 1 WASHER, LOCK
ワッシャ スプリング
12M/M FE
32 DDUF3111 1 PLATE
プレート
FE
33 H5304A 2 BOLT, HEX SOCKET
ボルト 六角穴
M05X025 FE
34 W1023A 2 WASHER, LOCK
ワッシャ スプリング
5M/M FE
35 W1044A 2 WASHER, FLAT
ワッシャ 平
4W- 5 FE
39 DNPK0300 1 PLATE
プレート
PL
40 K5257A 4 SCREW, HEX SOCKET BUTTON
小ネジ 六角穴ボタン
M04X008 FE
42 DNPK0091 1 PLATE
プレート
FE
43 H5302A 12 BOLT, HEX SOCKET
ボルト 六角穴
M05X020 FE
44 W1023A 12 WASHER, LOCK
ワッシャ スプリング
5M/M FE
45 DDUF3151 1 BKT
BKT
FE
46 DDUF3161 1 BKT
BKT
FE
47 DBVC0240 7 CUTTER, MOVABLE カッタ 可動 FE
64