OM-1774-001w_GS-CU651 - 第26页
OM-1774 30 容 内 目 项 8. 支撑设置位置 线路板长度 : 50~610mm时 与标准使用相同 线路板长度 : 610~1,200mm时 发生多次定位时,需要在各个定位位置上的没有已贴装元件的部分设 置 线路板支撑销。 支撑销 已贴装元件 线路板 (正转定位) 支撑销 已贴装元件 线路板 (反转定位) 冲突(NG) 1308-001 11. 规 格

OM-1774
29
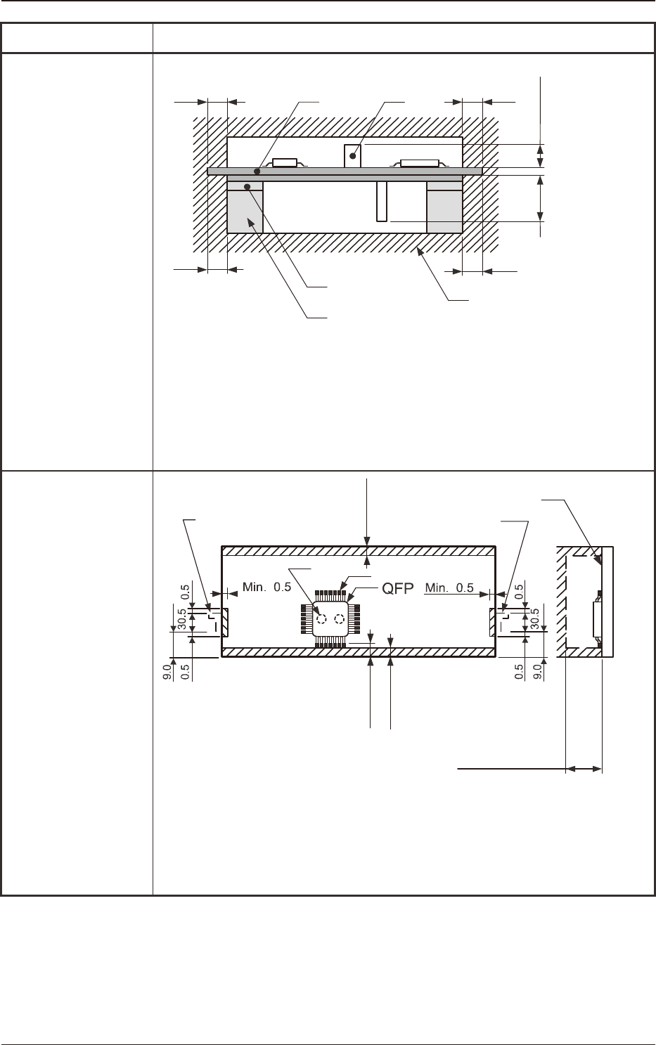
容 内 目 项
6. 贴装前的
线路板条件
(元件高度限制)
生产2.5kg以上的线路板时
5.0
传导管
已贴装元件不可以贴装范围
元件
5.0
5.0
5.0
高速安装头时
Max.12.7
多功能安装头时
Max.25.4
Max.30
支撑治具
魔术树脂
单位 : mm
注 : (a) 如魔术树脂上沾附污垢等会降低摩擦阻抗,因此需要定期清扫。
(IPA、脱水乙醇、中性洗剂、水)
(b) 设置支撑治具时,设定在触及不到已贴装元件的位置。
(c) 线路板质量在2.5kg以下时,使用支撑销。
(d) 上图表示支撑线路板的状态。
(e) 尺寸表示设计基准尺寸。请留有富余。
7. 可以贴装范围
线路板上面
Min.5.5
Min.5.8
Min.5.5
单位 : mm
注 : (a) 上图表示吸嘴未从元件外形出来时的状态。
(b) 斜线部表示不可以贴装的范围。
孔等开口部周围“0.5mm”的范围成为不可以贴装的范围。
(c) 成为包括贴装元件的线路板上的最高可以贴装高度。
装
置
前
侧
线路板定位制动器
(线路板流动方向:从右到左)
线路板定位制动器
(线路板流动方向:从左到右)
粘合剂
锡膏
(装置前侧)
高速安装头时
Max.12.7
多功能安装头时
Max.25.4
1308-001
11. 规 格

OM-1774
30
容 内 目 项
8. 支撑设置位置
线路板长度 : 50~610mm时
与标准使用相同
线路板长度 : 610~1,200mm时
发生多次定位时,需要在各个定位位置上的没有已贴装元件的部分设
置线路板支撑销。
支撑销 已贴装元件
线路板
(正转定位)
支撑销 已贴装元件
线路板
(反转定位)
冲突(NG)
1308-001
11. 规 格

OM-1774
31
容 内 目 项
9. 线路板识别
标记位置
线路板长度 : 50~610mm时
与标准使用相同
线路板长度 : 610~1,200mm时
线路板识别标记需要设定在可实际贴装范围内。
正转定位时需要在线路板识别标记设定范围1、反转定位时需要在线路
板识别标记设定范围2设定各个坐标。
线路板
(正转定位)
可实际贴装范围
线路板
(反转定位)
可实际贴装范围
线路板识别标记
设定范围1
线路板识别标记
设定范围2
1308-001
11. 规 格