HS50电路图 - 第44页
1 Detailed Circuit Diagr ams 44 ZM4-HS 50 Adjus tment u nits, fo rced air, gantry 4, SIPLACE HS-5 0 +15V OUT2 B OUT2 A OUT1 A +5V Key 7 10 14 11 9 J10 TLE4727 OUT1 B 8 7 6 5 2 4 3 1 +5V 00321217-xx M X18dc Dp axis adjstm…

1 Detailed Circuit Diagrams 43
DP4-HS50 DP-axis, gantry 4, SIPLACE HS-50
22/a,c+24a,c
26a,c+28a,c
4/c
4/a
30/a,c+32a,c
DP axis A26 servo amplifier
TDS 120 / 1 D (wu)
X1wu
2/a
2/c
12/a
12/c
6/a
10/c
16/a
8/a
backplane DC 2,5
16/c
8/c
X1vu
14/c
00334810-xx
Servo unit
00335585-xx
Servo unit
DP axis, gantry 4
A50 (vu)
L1
L2 M-
M+
2**)
1**)
4**)
3**)
wh1**) bk
2**)
4**)
3**)
bnwh
bk
wh
wh
bn
47100
Cable color coding
Belden
DIN
wh
bk
bl
or
X6ym
bk
wh
key
Axis board 7
A10 (sm)
Machine controller M54 A1 (sa)
nom. values
DP axis
14
13
12
11
10
9
8
7
6
5
4
3
2
X4tr
1
2
9
8
6
5
3
X3tr
DP axis,
axis tracks
Axis rear panel, gantry 4 A37 (tr)
Control unit
00334808-xx
Cable 00335201-xx
SP6-12 digital
00330648-xx (ds)
intermediate distributor
(W2-Cable)
Track N
82121
24 24 5
Track B
27 27 2
Track A
encoder / DLM1 00335990-xx
RSF digital incremental shaft
31 31
28 28
22,34 22,34
+15V
-15V
+5V +5V
+15V
-15V
00333491-xx
(Cable W1)
R
R
54 6
Track B
Track N
R
R
Track A
+5V
1,4,7 1,4,7
10
12
12
10
GND
GND
+5V
HS50 gantry 4
gantry 4, 00341780-xx
Turning station / DLM1
2
4
3
8 9
00335142-xx
(Cable)
19, 31
10
19, 31
10
GNDGND
X25da
Gantry distributor
00335413-xx
HS50 gantry 4
(da) (dc)
20
23
26
X1ds
9
6
3
X7ds
7
1
4
+5V
Track N
Track N
4
3
X3
1
5
6
7
8bl
wh
bk
rd
DP motor
00330573-xx
Interference suppression
1,401,40
15,19,25,37
+24V
1313
+24V
1, 34 1, 34
01.
02.
01.
Status Modified
Doc. status
Product status
Function status
01.07.01
01.07.01
01.07.01
Date Name
Hi
Hi
Hi
Stand.
Check.
Date
Author
01.07.2001
Hi
CAD file:
Mat. no.:
Orig./Repl.f/Replaced by
DP4-020101LD3
Sh.
Sh.1
1
COUNT B
-15V
GND
37
38,39
22
VREG
GND
VCC
CAN_H
+15V
34
35
36
23
TRIG
INDEX
CAN_L
21
20
TxD
19
18
DP4-HS50.DWG
Stromlaufplan/Circuit diagram
SD EA
SIEMENS
SMD Placement System SIPLACE HS50
DLM1 revolver head / DP axis, gantry 4
SIPLACE HS50
Track A
+5V
Track B
25
16, 28
22
3
15
11
12
2
14
17
18
21
20
X3da
-15V
+15V
+5V
8
9
6
5
2
3
Track B
Track B
Track A
Track A
Track N
Track N
6
1
2
5
3
2
1
4
X11daX3vu
T+
T-
M+
M-
(W1-Cable)
00335195-xx
(Cable)
00335206-xx
13
X2vu
11
10
9
8
7
6
12
14
2
1
3
4
5
X1sa
X1sy
X11sy
X1sm
SMP bus A39 (sy)
X2sm
X32
X7tr
X12dc
MT
bl
wh
bk
rd
731 2X16ds
R
R
Track A
Track B
GND
2
1
10
9
20
23
X14dc
26
3
2
12
11
X3dc
21
Track N
Track N
Track A
Track A
Track B
Track B
20
18
17
14
15
25
16, 28
22
Tacho +
Tacho -
DP motor +
DP motor -
+15V
-15V
+5V
00331451-xx + 00331452-xx
Head board and head processor
I NOM
END SIGNAL
COUNT A
V NOM
15
16
17
14
13
AGND
X3sm
1
9
RxD
2*)
1*)
bnwh
bk
Belden
47100
wh
DIN
HS50 main
00336154-xx
distributor
(do)
X102/1
X101/4a
X101/16a
X101/13a
X101/19a
X15da
22(W1)wh
2*)
1*)
rd
Cable color coding
5
3
4
(W2) 5
(W1)
(W2)
3
4
00335231-xx
bk
X5do
1 (W1)
(cable)
1
GNDGND
+5V
+15V
-15V
+24V
Servo Enable (+15V)
screen
T-
T+
X3:1
X1:14a
2
Servo Enable
Servo ready
Sensor stop
I²t
Ia monitor
screen
Servo GND
Analog GND
Tacho - std or f/V
1
X5
3
V nom
Force
screen
8
7
6
5
Power supply
card +/-15V
00302841-xx
X1vy
X4vu
-15V
GND
+30V
+15V
distributor
Potential
2
3
4
1
X4ym
X1ym
6
X52
20
A32 (vy)
Power supply
X60
3
2
00337056-W1
(Cable)
X9
33
22
00336145-xx
+30V
GND
18a,c+20/a,c
00321734-xx
See page 72
See page 72
See page 80
See page 103
See page 141
See page 136
See page 77
See page 89
See page 80
See page 134
See page 76
See page 86
See page 85

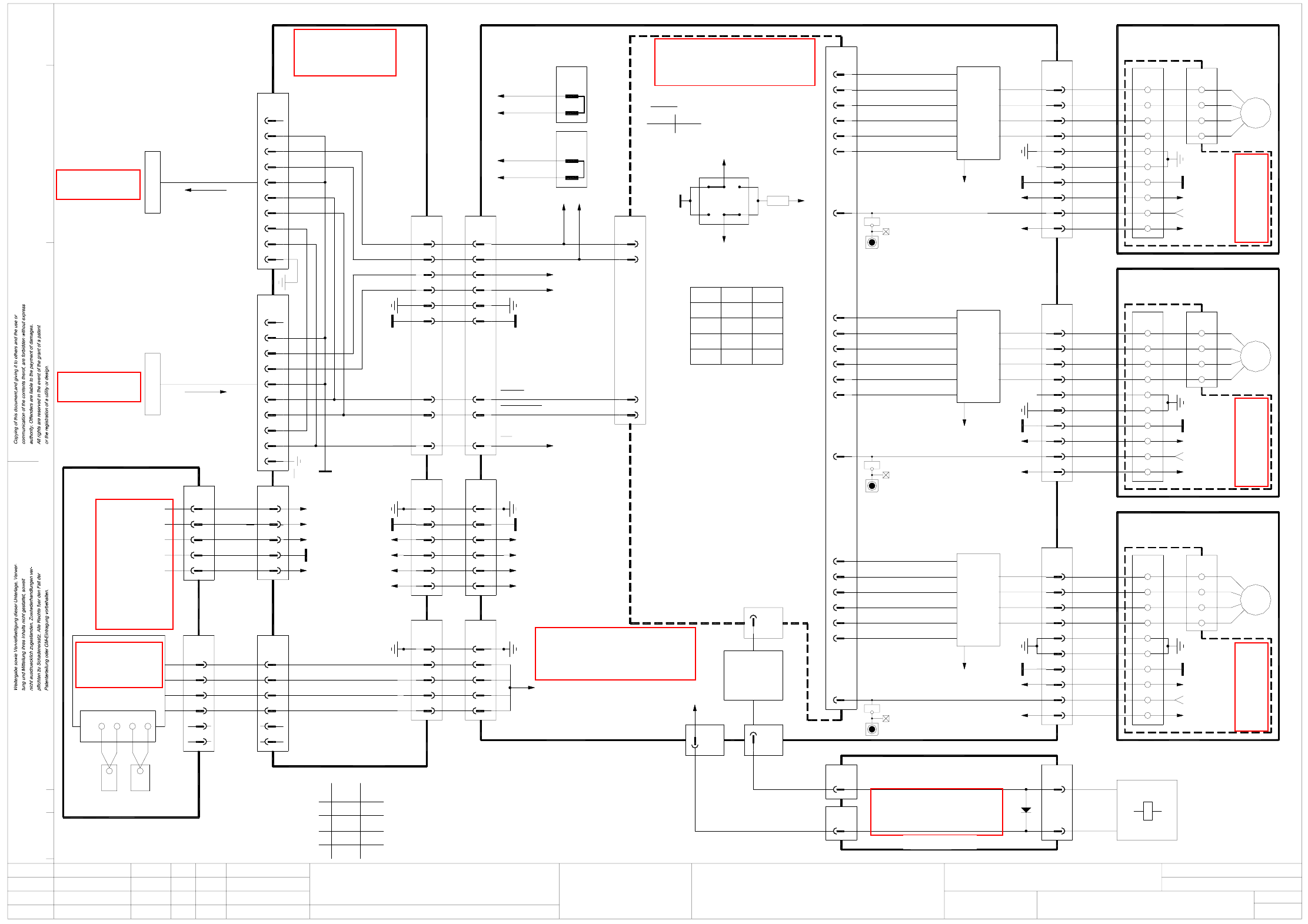
1 Detailed Circuit Diagrams 44
ZM4-HS50 Adjustment units, forced air, gantry 4, SIPLACE HS-50
+15V
OUT2B
OUT2A
OUT1A
+5V
Key
7
10
14
11
9
J10
TLE4727
OUT1B
8
7
6
5
2
4
3
1
+5V
00321217-xx
M
X18dc
Dp axis adjstmt. unit
Gantry distributor HS50
00335413-xx
X1da
X23da
9
10
8
7
6
5
2
4
3
1
10
X22da
9
8
7
6
3
4
5
2
1
gantry 4
CAN_OUT_HI
32
33
29
30
X1dc
X27dc
1
2
CAN_IN_HI
CAN_OUT_HI
Jumper
Jumper
2
CAN_OUT_LO
CAN_IN_LO
X28dc
1
6
8
5
4
X2
3
2
1
7
10
9
1
2
3
4
00321213-xx
Adjstmt. unit
bn
or
rd
ye
Phase 1
I02
I12
Phase 2
I11
I01
19
18
20
3
1
2
5
8
7
6
40
4
X7dc
3
37
17
18
16
15
14
13
35
J11
TLE4727
19I12
Phase 2 18
9
Phase 1
I02
I11
I01
3
20
1
2
11
14
10
7
TLE4727
J12
28
25
27
26
24
23
Phase 2 18
9
Phase 1
I12
I02
I11
I01
3
20
19
2
1
11
10
14
7
Micro relay valve
forced air
00321219-xx
10
X14dc
X13dc
10
+24V
X6dc
13
J13
ULN2803
2
17
00333491-xx
(Cable W1)
00333491-xx
(Cable W2)
distributor 3
Head processor HS50
00331452-xx
Gantry addressis
Gantry
1
2
4
3
2-3
1-2
2-3
1-2
2-3
1-2
1-2
2-3
JP2JP1
Gantry 4
P3.5
1
P4.7
0
00331451-xx + 00331452-xx
Head board and head processor
(W1)
(W2)
(W1)
(W2)
(W1)
00335256-xx
(Cable)
X102
+34V
37a
rail
0 Volt
00335231-xx
(Cable)
00336179-xx
Power supply
00336154-xx
2
X1
4 13
step motors
(do)
2*)
Key
6
5
4
3
4*)
3*)
X5dq
1
2
1*)
distributor
HS50 main
X101/13a
X101/16a
X101/4a
X102/1
X101/19a
rd3
1*)
2*)
4
5
X5do
ye
rd
bn
or
00321217-xx
"Reject" adjstmt. unit
33
10
9
8
+15V
Output
+5V
7
6
5
4
4
2
1
X2
2
1
M
Adjstmt. unit
00321213-xx
ye
rd
bn
or
00321217-xx
"Pickup" adjstmt. unit
+15V
11
8
10
9
6
7
+5V
Output
4
5
3
2
4
3
2
X2
Adjstmt. unit
00321213-xx
M
X6ds
3
1
X3
X3
X3
10
X1ds
10
X2ds
(ds) 00330648-xx
SP6-12, digital
Intermediate distributor
D5
rd
bk
+15V
5
4
X20dc
2
1
3
10
6
7
8
9
+5V
Key
OUT2B
OUT2A
OUT1B
OUT1A
Light barrier for
"reject station"
OUT2B
OUT2A
OUT1A
+15V
+5V
dp-station adjustment unit
Lightbarrier for
OUT1B
5
10
9
8
7
6
4
3
2
1
X19dc
Light barrier for 9
+15V
"Pickup placement station"
10
Output
30
29
33
32
00335140-xx
(Cable)
CAN_OUT_LO
CAN_IN_LO
CAN_IN_HI
00335322-xx
Tape cutter 4
27
25
26
27
25
26
RESET
POWERFAIL
SIPLACE HS50
forced air, gantry 4
(da)
34
31
31
34
GNDGND
X4dh
CAN bus
500 KBit/sec
CAN bus
500 KBit/sec
00335321-xx
X23ca
Gantry
INT
33
27
X6dc
40
37
bk
wh2
1
(Cable)
00335141-xx
Cable color coding
Belden
wh
4*)
3*)
2*)
rd
gn
1*) bk
bn
gn
ye
DIN
wh
47100
(Cable)
N.C.
Key
6
5
4
3
X10da
1
2
5
4
1
2
3
X2da
3
4
5
+5V
+15V
GNDGND
2
1
X15da
+24V
-15V
GND
13
+15V
-15V
+24V
+5V
22
16,28
25
GND
10,19,31
1,34
X3da
00335142-xx
step motors
Voltage for
VSM = +15V
5
4
1
2
3
X2dc
(dc)
HS50, gantry 4
13
22
16,28
25
+15V
ZM4-HS50.DWG
Stromlaufplan/Circuit diagram
SD EA
Hi
16.10.2000
SIEMENS
SMD Placement System SIPLACE HS50
1
1
DLM1 revolver head / adjustment units /
-15V
+5V
+24V
10,19,31
1,34
X3dc
GND
+VSM(X2:2,3,4,5)
+VSM(X2:2,3,4,5)
+VSM(X2:2,3,4,5)
V14
TP7
V13
TP6
V12
TP5
Doc. status
Function status
Product status
Hi
Hi
Hi01.07.01
16.10.00
16.10.0001.
01.
02.
ZM4-010102LD3
Sh.
Sh.
Mat. no.:
CAD file:
Orig./Repl.f/Replaced by
Date
Author
Check.
Stand.NameDateModifiedStatus
Port
P3.5 (80C535)
JP1
JP2
123
21 3
+5V
P4.7 (80C535)
Port
See page 103
See page 136
See page 134
See page 138
See page 141
See page 132
See page 141
See page 125 See page 125 See page 125
See page 152

1 Detailed Circuit Diagrams 45
CANBUS1 CAN bus, 125 kBit/s, TSP200 conveyor control (Sh. 1 of 3)
=
SIEMENS AG
+
3
2
D
3
C
B
A
5
B
41
E
5
4
X18dm
(dm)
X18dm
(dn)
X18aq
00329698
X18aq
X18ar
X129
X129
00337861
C
X22ap
X22ap
00349302
Conveyor control 1
(ao)
X22ao
X22ao
CAN bus 125 kbits/s
Option
87
F
2
E
6
D
761
F
8
A
Distributor, sector 1
00336152
(ar)
00329698
CAN I/O module 4
(aq)
Spare
00335324
Control unit HS50
00334808
X6so
X6so
00347434
assembly 2
(so)
CAN I/O module 3
PCB conveyor
00119046
X7so
X7so
00349302
Conveyor control 2
(ap)
00355321
Hi
Tek
01.
02.
01.
21.08.98
01.07.01
21.08.98
21.08.1998
Hoffmann
1
X18ar
CAN I/O module 1
00329698
CAN I/O module 2
00329698
X18dn
X18dn
Distributor, sector 4
00336153
CAN bus, 125kBits/s
3
Tek
Function status
Product status
Doc. status
SMD Placement System SIPLACE HS50
Communications
CANBUS1.DWGCAD file:
SD EA1 E2
CANBUS-010201LD3
Sheet
Sh.
Replaced byRepl. f.Orig.Stand.
Check.
Author
Date
Date NameModifiedStatus
Single conveyor
00119025Dual conveyor
or 353442 resp. or 353442 resp.
Conveyor control TSP200
See page 92
See page 97
See page 63
See page 160See page 157
See page 72
See page 154
See page 113