yv100xg_j - 第26页
PA G E 24 YV100Xg (KGB) Con fi dential & Proprietary KGB-000-CN05 Air circuit (YV100Xg-F) LIGHT LIGHT LIGHT 4 (BLACK) YMDAS 10X20-ZE135A2 LIGHT 300V -03 KM23 8(ORANGE) 8(ORANGE) KM-1 1 040M12AJ 1-7 A040 -4E1-PLL 8-12 …

PAGE
23
YV100Xg (KGB)
Confi dential & Proprietary
KGB-000-CN05
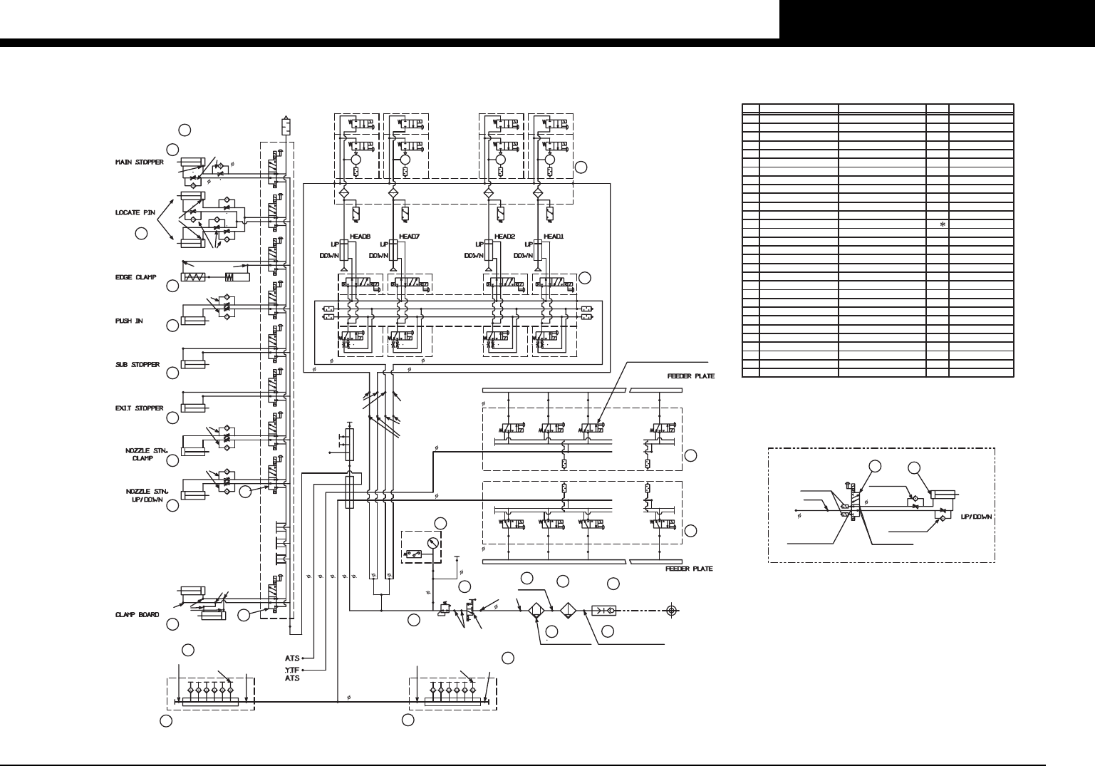
Cli FES20 feeder structure

PAGE
24
YV100Xg (KGB)
Confi dential & Proprietary
KGB-000-CN05
Air circuit (YV100Xg-F)
LIGHTLIGHTLIGHT
4 (BLACK)
YMDAS 10X20-ZE135A2
LIGHT
300V-03
KM23
8(ORANGE)
8(ORANGE)
KM-11
040M12AJ 1-7 A040
-4E1-PLL 8-12 BP
F300-03
-BG-A
R300-03
SL12-03
GS1-50
-DL-41W
SLY10-03
TL4-02
TSH4-M5
UEDW10-8
PBDAS 6X40
SC4-M5A
SC4-M5A
SC4-M5A
SC4-M5A
PBDAS 6X40-ZC130A
PBSA 10X5
PBDA 10X30
YMDA 16X35
BDAS16X20-38-ZC130A2
SL4-M5
SL4-M5
MANUHOLD
KM0-M1141-000
MANUHOLD
KM0-M1141-000
TSS4-01 TSH8-01
PLUG
K40-M8598-000
BF4
BF4
TL8-01TT8-01
stn.50stn.1 stn.2 stn.3
KM-06KM-06
50123
TSS4-01
TSH8-01 PLUG
K40-M8598-000
BF4
BF4
TL8-01TT8-01
stn.150
stn.101
stn.102 stn.103
KM-06KM-06
150101 102 103
8(ORANGE)
8(ORANGE)
SC4-M5A
UY8
8(ORANGE)
SL8-01
SLH6-M5
UYD8-6
KM-05
6(ORANGE)
USD8-6
6(ORANGE)
8(ORANGE)
UC4
USD10-8
SLH8-01
KM-05
SLH6-01
. . .
8(ORANGE)
6(ORANGE)
UY4
UYD10-8
HI-CAPPLER
PLUG 30PM
AIR SOURCE
12
(ORANGE)
(ORANGE)
10(ORANGE)
4
8(ORANGE)
SL4-M5
TSH4-M5M
BDAS10X5-ZC130A2
SC4-M5A
SL4-M5
UB10
UB10
4
(ORANGE)
10 2 (ORANGE)
8 2 (ORANGE)
USD10-8
( )
8(ORANGE)
YMDA 16X35
UEF
UEF
UY4
PBDA 16X5-M
UEF4BU
KM-05
SLH6-01
SLH8-01
US10
US8
UED8-4
UP8
UP4
UP4
LIGHTLIGHT
VALVE ASSY 20-R(L)
KGA-M3410-200(400)
VALVE ASSY 16-R
KGA-M3410-300
VALVE ASSY 20-R(L)
KGA-M3410-200(400)
SL12-03
VALVE ASSY 50-R
KGA-M3410-500
VALVE ASSY 50-L
KGA-M3410-100
A010E1-37W
A010E1-44W
No. PART NO. PART NAME
Q'TY
REMARKS
1
2
4
5
6
1
7
8
9
10
11
12
13
17
15
16
2
21
22
23
24
25
26
27
28
29
30
1
2
1
1
1
1
2
2
2
1
2
1
1
14
3
1
18
1
19
20
2
1
2
1
1
8-40DMODULE ADAPTER KV8-M8503-000
VALVE CLUTCH KV8-M71VA-000
30PM KG7-M8512-000 JOINT
KG7-M8513-000
KG7-M8501-000
KV8-M8502-000
KH5-M8501-000
KG7-M8504-001
KG7-M8596-002
KM0-M8582-000
KM0-M1141-000
K40-M8598-000
KGA-M3410-*00
JOINT
AIR FILTER
MIST FILTER
EXHAUST VALVE
REGULATOR
PRESURE GAUGE
VALVE
MANUFOLD
PLUG 1 (R 1/8)
VALVE ASSY *
3/8" M-F ELBOW
F300-03-BG-A
MF400-03-A
300V-03
R300-03
GS1-50-DL-41W
KG2-M8582-400 VALVE(SPARE)
KM1-M9605-020
KV7-M9283-000
KV7-M9229-000
KV7-M9237-000
KV7-M9179-A00
CYLINDER,CLAMP
CYL.,YMDA16X35
CYLINDER
CYLINDER PBSA10X5
CYLINDER:ASSY
BDAS 10X5
YMDA 16X35
PBDA 10X30
PBSA 10X5
PBDAS 6X40
KV7-M9165-000
KV8-M7162-000
KGB-M7163-000
CYLINDER PBDAS6X40
SOLENOID VALVE
MICRO EJECTOR
PBDAS 6X40
KM1-M9611-020 CYLINDER,U/D BDAS 16X20
KV7-M9269-000 CYLINDER PBDA 10X5-M
CYLINDER ASSY
VALVE KV8-M7535-010
YMDAS 10X20 KV8-M7522-010
1
1
4
SC4-M5A
SC4-M5A
KM-03
BF4BU-M3
US4
UEF4BU-M3
29
28
13
4
20
12
13
11
27
27
10
26
25
1
2
3
5
6
8
9
12
11
14
16
22
21
20
18
17
15
23
14
M-F ELBOW3/8"MF400-03-A
8-40D
VALVE (for spare)
KGA-M37P1-000
4
4
(BLACK)
(ORANGE)
4(BLACK)
4(BLACK)
4 (ORANGE) 4 (ORANGE)

PAGE
25
YV100Xg (KGB)
Confi dential & Proprietary
KGB-000-CN05
Air circuit (YV100Xg-S)
LIGHT
4(ORANGE)
LIGHTLIGHT
4(BLACK)
YMDAS 10X20-ZE135A2
LIGHT
300V-03
KM23
8(ORANGE)
8(ORANGE)
KM-11
040M12AJ 1-7 A040
-4E1-PLL 8-12 BP
F300-03
-BG-A
R300-03
SL12-03
GS1-50
-DL-41W
SLY10-03
TL4-02
TSH4-M5
UEDW10-8
PBDAS 6X40
SC4-M5A
SC4-M5A
SC4-M5A
SC4-M5A
PBDAS 6X40-ZC130A
PBSA 10X5
PBDA 10X30 or
YMDA 16X35
BDAS16X20-38-ZC130A2
SL4-M5
SL4-M5
MANUHOLD
KM0-M1141-000
MANUHOLD
KM0-M1141-000
TSS4-01 TSH8-01
PLUG
K40-M8598-000
BF4
BF4
TL8-01TT8-01
stn.50stn.1 stn.2 stn.3
KM-06KM-06
50123
TSS4-01
TSH8-01 PLUG
K40-M8598-000
BF4
BF4
TL8-01TT8-01
stn.150
stn.101
stn.102 stn.103
KM-06KM-06
150101 102 103
8(ORANGE)
8(ORANGE)
4(ORANGE)
4
(BLACK)
SC4-M5A
UY8
8(ORANGE)
SL8-01
USD8-6
USD8-6
6(ORANGE)
8(ORANGE)
UC4
USD10-8
SLH8-01
KM-05
SLH6-01
. . .
8(ORANGE)
6(ORANGE)
UY4
UYD10-8
HI-CAPPLER
PLUG 30PM
AIR SOURCE
12
(ORANGE)
4
(ORANGE)
10(ORANGE)
4(BLACK)
8(ORANGE)
SL4-M5
TSH4-M5M
BDAS10X5-ZC130A2
SC4-M5A
SL4-M5
UB10
UB10
4(ORANGE)
10 2 (ORANGE)
8 2 (ORANGE)
USD10-8
( )
8(ORANGE)
YMDA 16X35
UEF
UEF
UY4
PBDA 16X5-M
UEF4BU
KM-05
SLH6-01
SLH8-01
US10
US8
UED8-4
UP8
UP4
UP4
LIGHTLIGHT
VALVE ASSY 20-R(L)
KGA-M3410-200(400)
VALVE ASSY 16-R
KGA-M3410-300
VALVE ASSY 20-R(L)
KGA-M3410-200(400)
SL12-03
VALVE ASSY 50-R
KGA-M3410-500
VALVE ASSY 50-L
KGA-M3410-100
A010E1-44W
A010E1-37W
No. PART NO. PART NAME
Q'TY
REMARKS
1
2
4
5
6
1
7
8
9
10
11
12
13
17
15
16
2
21
22
23
24
25
26
27
28
29
30
1
2
1
1
1
1
2
2
2
1
2
1
1
14
3
1
18
1
19
20
2
1
2
1
1
8-40DMODULE ADAPTER KV8-M8503-000
30PM KG7-M8512-000 JOINT
KG7-M8513-000
KG7-M8501-000
KV8-M8502-000
KH5-M8501-000
KG7-M8504-001
KG7-M8596-002
KM0-M8582-000
KM0-M1141-000
K40-M8598-000
KGB-M3410-*00
JOINT
AIR FILTER
MIST FILTER
EXHAUST VALVE
REGULATOR
PRESURE GAUGE
VALVE
MANUFOLD
PLUG 1 (R 1/8)
VALVE ASSY *
3/8" M-F ELBOW
F300-03-BG-A
MF400-03-A
300V-03
R300-03
GS1-50-DL-41W
KG2-M8582-400 VALVE(SPARE)
KM1-M9605-020
KV7-M9283-000
KV7-M9229-000
KV7-M9237-000
KV7-M9179-A00
CYLINDER,CLAMP
CYL.,YMDA16X35
CYLINDER
CYLINDER PBSA10X5
CYLINDER:ASSY
BDAS 10X5
YMDA 16X35
PBDA 10X30
PBSA 10X5
PBDAS 6X40
KV7-M9165-000
KV8-M7162-000
KGB-M7163-000
CYLINDER PBDAS6X40
SOLENOID VALVE
MICRO EJECTOR
PBDAS 6X40
KM1-M9611-020 CYLINDER,U/D BDAS 16X20
KV7-M9269-000 CYLINDER PBDA 10X5-M
CYLINDER ASSY
VALVE KV8-M7535-010
YMDAS 10X20 KV8-M7522-010
1
1
SC4-M5A
SC4-M5A
KM-03
BF4BU-M3
US4
UEF4BU-M3
29
28
13
4
20
12
13
11
10
26
25
1
2
3
5
6
8
9
12
11
14
16
22
21
20
18
17
15
23
14
M-F ELBOW3/8"MF400-03-A
8-40D
VALVE (for spare)
KGA-M37P1-000
4(BLACK)