00197910-03_UM_X-Serie-S_PL - 第240页
4 Ustawienie i uruchomienie Instru kcja eksploatacji SIPLACE seria X 4.3 Ustawianie automatu Od wersji oprogramowania 710.0 Wydanie 12/2016 240 Ś rodkowe ł apy maszyny nie mog ą dotyka ć jeszcze pod ł o ż a (patrz punk…

Instrukcja eksploatacji SIPLACE seria X 4 Ustawienie i uruchomienie
Od wersji oprogramowania 710.0 Wydanie 12/2016 4.3 Ustawianie automatu
239
4
4
Ostrożnie poluzuj śruby z łbem walcowym o gnieździe sześciokątnym M24x90 (poz. 2 na rys.
4.3 - 7
, strona 238) przy użyciu zestawu wkrętaków do śrub (wielkość klucza 19 mm) i pozwól
na powolne zsunięcie się zewnętrznej łapy maszyny (poz. 1 na rys. 4.3 - 7
, strona 238) do
oporu do dołu.
Wyreguluj łapę maszyny odpowiednią do wysokości transportera płytek drukowanych.
–Zewnętrzna łapa maszyny do wysokości transportowych POD 900, 930 i 950
długość 439 mm, nr artykułu 03000890-02 (poz. 1 na rys. 4.3 - 4
, strona 235 )
Wykonaj wstępne ustawienie dla każdej zewnętrznej łapy maszyny.
Odległość między spodem łapy maszyny i dolną krawędzią maszyny powinna mieć wartości
zgodne z poniższą tabelą:
Wyjustować śrubę nastawczą M24x2x120 (poz. 3 na rys. 4.3 - 7, strona 238) kluczem płaskim
o RK 36 tak, uzyskać wartości odległości z tabeli u góry dla danej wysokości transportowej.
Teraz opuść automat ostrożnie wózkiem widłowym a łapy maszyny równomiernie zetkną się
z podłożem. W każdym przypadku druga osoba powinna kontrolować stabilność automatu w
trakcie opuszczania. W razie potrzeby należy nieco poluzować zacisk zewnętrznych łap ma-
szyny.
Ostrożnie opuszczaj nadal automat, aż zewnętrzne łapy maszyny dotkną śruby nastawcze
M24x2x120 (poz. 3 na rys. 4.3 - 7
, strona 238) do regulacji wysokości.
OSTRZEŻENIE
Ciężki element maszyny
Łapy maszyny są bardzo ciężkie. Przy luzowaniu poszczególnych śrub mogą one upaść i
spowodować zmiażdżenie.
Do wymiany nóżek maszyny musi ona zostać lekko podniesiona.
Zadbaj o to, aby nikt nie znajdował się w obszarze zagrożenia. Niezamierzone prze-
sunięcie lub opuszczenie maszyny stanowi niebezpieczeństwo zmiażdżenia.
OSTRZEŻENIE
Nie przesuwać maszyny!
Profile transportowe mogą zostać uszkodzone.
Zadbaj o to, aby maszyna nie została przesunięta i aby nie zostały uszkodzone pro-
file transportowe.
Wysokość transportera
POD
Odstęp spodu łapy maszyny do dolnej krawędzi ramy
maszyny
900mm 190mm
930mm 220mm
950mm 240mm

4 Ustawienie i uruchomienie Instrukcja eksploatacji SIPLACE seria X
4.3 Ustawianie automatu Od wersji oprogramowania 710.0 Wydanie 12/2016
240
Środkowe łapy maszyny nie mogą dotykać jeszcze podłoża (patrz punkt 2 na rys. 4.3 - 4,
strona 235
). W razie potrzeby wkręć jeszcze trochę środkowe łapy maszyny w automat lub
element dystansowy.
4
WSKAZÓWKA
Opis ostatecznego wyjustowania automatu zawarty jest w rozdziale 4.3.8.1
, strona 243.

Instrukcja eksploatacji SIPLACE seria X 4 Ustawienie i uruchomienie
Od wersji oprogramowania 710.0 Wydanie 12/2016 4.3 Ustawianie automatu
241
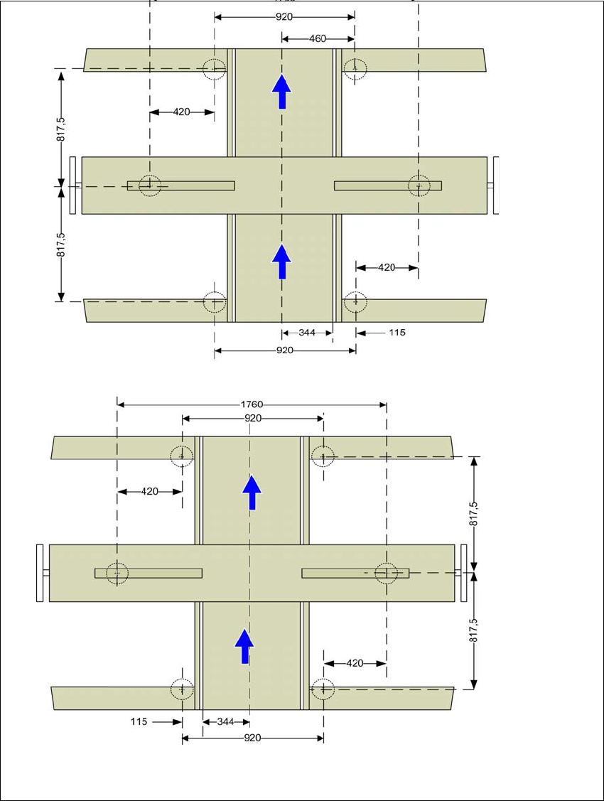
4.3.7 Odległości łap maszyny i stałych krawędzi transportera płytek drukowanych
Odległości nóżek maszyny pojedynczego transportera płytek drukowanych
4
Rys. 4.3 - 8 Odległości łap pojedynczego transportera płytek drukowanych w milimetrach
Zamocowany na stałe transpor-
towy profil boczny na maksymal-
nej pozycji po prawej stronie
a
.
a) Wielkość wymiaru zależy od pozycji profilu zamocowa-
nego na stałe. Wszystkie wymiary podane są w mm.
Zamocowany na stałe transpor-
towy profil boczny na maksymal-
nej pozycji po lewej stronie
a
.