DT40S-20 Mechanical - 第32页

2-B 多 段トレイリ フト 部 Multi-Step T ray Lift Section パーツレイアウト Ki t N o . キット 品番 Kit N am e キット名称 N610090464AA セクションNo. PARTS LAYOUT Section No. - - M17 ( KN610090464AA-05-2 )

100%1 / 94
Ref
No.
Remarks
R
1
Q'ty
2-A
段トレイリフト
Multi-Step Tray Lift Section
イラスト
No.
Part No.
品  名品番 数量
R
2
パーツリスト
Kit N
o
.
キット品
Kit Name
キット名称
N610090464AA
Part Name
備   考
セクションNo.
PARTS LIST
Section No.
R
3
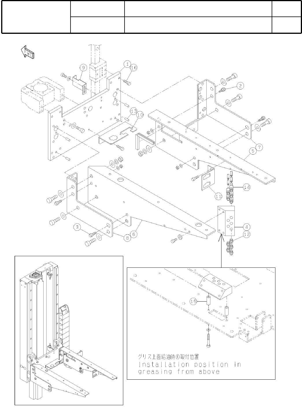
FRAME
1
1 KXFB017NA01
FRAME
1
2 KXFB017MA00
BRACKET
1
3 KXFB019PA00
BRACKET
1
4 N210170086AA
COUPLING
1
5 KXFB017QA00
STOPPER
1
6 N210060893AA
FRAME
1
7 N210111054AA
BRACKET
1
8 KXFB03QUA00
COVER
1
9 KXFB017WA00
BRACKET
1
10 N210044422AA
MOTOR
1
11 N510022126AA
S
HF-MP23B-S25
SUPPORT-UNIT
1
12 KXF043EAA00 WBK12-11
BALL-SCREW
1
13 N510068298AA BLK1616E-3.6ZZGS+589LC8T(33020747K000)
PH-SENSOR
1
14 KXF0DYSAA00 PM-L53B-C1(DA KXF0DYSAA00)
SPACER
2
15 N510019911AA CB-302E
BEARING-UNIT
1
16 KXF0A00AA00 KFL001
PH-SENSOR
1
17 KXF0DYSBA00 PM-L53B-C1(DA KXF0DYSBA00)
CABLE-BEAR
1
18 KXF006GAA00 15.3-038-13-13B
BOLT
4
19 N510017585AA
SSS 003 Hexagon socket button head screw M6X8-10.9 A2J (Trivalent)
LINEAR-WAY
2
20 N510040427AA SSR15XV2UUE+605LY-II(00995183G020)
PIN
1
21 N510020597AA MMS4-8
PIN
1
22 N510020618AA MMS6-15
DAMPER
1
23 N510063456AA D25A9
JOINT
4
24 KXF02T7AA00 M-5H-4
SPACER
1
25 KXF0DX0BA00 B86012061-301
BOLT
4
26 N510019941AA WA Socket SP-TYPE M5X12-10.9 A2J (Trivalent)
JOINT
1
27 KXF0CX0AA00 IN-233-797(Delivery drawing available)
BOLT
2
28 N510017513AA
SSS 003 Hexagon socket button head screw M3X6-10.9 A2J (Trivalent)
M16
--
( KN610090464AA-05-1 )
2-B
段トレイリフト
Multi-Step Tray Lift Section
パーツレイアウト
Ki
t
N
o
.
キット
品番
Kit Name
キット名称
N610090464AA
セクションNo.
PARTS LAYOUT
Section No.
--
M17
( KN610090464AA-05-2 )
Ref
No.
Remarks
R
1
Q'ty
2-B
段トレイリフト
Multi-Step Tray Lift Section
イラスト
No.
Part No.
品  名品番 数量
R
2
パーツリスト
Kit N
o
.
キット品
Kit Name
キット名称
N610090464AA
Part Name
備   考
セクションNo.
PARTS LIST
Section No.
R
3
PLATE
1
1 KXFB017RB00
PIN
1
2 KXFA03RAA00
PIN
3
3 KXFB0210A00
BLOCK
1
4 KXFB017PB01
BRACKET
1
5 KXFB03QTA00
BRACKET
1
6 KXFB03QSA00
BRACKET
1
7 KXFB0181A01
BRACKET
1
8 KXFB017TA01
DOG
1
9 N210060892AA
BRACKET
1
10 KXFB017YA00
BRACKET
1
11 KXFB017ZA00
GREASE-NIPPLE
5
12 N560AMT6-130 A-MT6X1-Type(M6X1)
PIN
4
13 N986MMS410 MMS4-10
JOINT
5
14 KXF0A62AA00 KQ2S04-M6
SPACER
2
15 N510017100AA CB-420E
BOLT
8
16 N510017350AA
Hexagon socket head cap screw M4X15-10.9 A2J (Trivalent)
M18
--
( KN610090464AA-05-2 )