JX-350_使用说明书 - 第34页
第 1 部 基本篇 第 1 章 装置概要 1- 18 ( 3) 各种 元件的最小元件宽 度 ( D ) 1 )方型芯片 2 ) 圆筒形 芯片 ( Melf ) 3 ) 铝电解 电容 4 ) SOT 5 ) SOP 6 ) SOJ 7 ) QFP 8 ) PLCC 9 ) BQFP 10 ) TSOP 11 ) TSO P2 12 ) BGA 13 ) 网 络电阻 14 ) 微 调电容 15 ) 单向引脚连接器 16 ) 鸥翼式插座 J …

第 1 部 基本篇 第 1 章 装置概要
1-17
1-2-5 吸嘴
(1) 吸嘴的形状
请按照贴装元件形的状及尺寸,从 No.500~508C 中选择吸嘴。
No. 500 501 502 503 504 505 506 507 508C
外观
外径 1.0x0.5mm 0.7x0.4mm
φ0.7mm φ1.0mm φ1.5mm φ3.5mm φ5.0mm φ8.5mm φ9.5mm
内径
2xφ0.4mm φ0.25mm φ0.4mm φ0.6mm φ1.0mm φ1.7mm φ3.2mm φ5.0mm φ8.0mm
(2) 吸嘴的选择方法
可通过「ATC 吸嘴分配」自动识别吸嘴。
手动输入要准确选择,以防止吸取不良、贴片精度不良。
主要用途元件的吸嘴序号见下表所示。为提高精确性,请根据贴片元件吸取面的最小宽度选择吸
嘴编号。
各种元件吸取面的最小宽度(D)请参见(3)项。
吸嘴号
.
最小宽度(
D
)
mm
主要用途元件
500
0.45
~
1.45
1005
,
1608
,
SOT(
模部
1.6
×
0.8)
,
2012<
注
1>)
501
~
0.45
0603
502
0.45
~
0.75
1005
503
0.75
~
1.45
1608, SOT (
模部
1.6x0.8), 2012
SOT(模部 2.0 x1.25)
504
1.1
~
2.5
2012, 3216, SOT(
模部
2.0x1.25), SOT23, Melf
505
2.5
~
4
铝电解电容
(
小
)
、钽电容,微调电容
506
4
~
7
铝电解电容
(
中
)
、
SOP(
窄幅
),SOJ,
连接器
507
7
~
10
铝电解电容
(
大
)
、
SOP(
宽幅
), TSOP, QFP,
PLCC
、连接器
508C
10
~
PLCC, QFP, BGA,
注 1:因 2012R 的吸取面形状(厂商及电阻值不同等),有时
θ
会有偏差。
需要进行 2012 元件的高密度贴片(相邻 0.3mm 以下)时,请使用 504 吸嘴。

第 1 部 基本篇 第 1 章 装置概要
1-18
(3)各种元件的最小元件宽度(D)
1)方型芯片 2)圆筒形芯片(Melf) 3)铝电解电容
4) SOT 5)SOP 6) SOJ
7)QFP 8)PLCC 9) BQFP
10)TSOP 11)TSOP2 12)BGA
13)网络电阻 14)微调电容 15)单向引脚连接器
16)鸥翼式插座
J 引脚插座
带减震器的插座
A
D
A
D
W
D
A
D = A
A
D
A
D
A
D
A
D
A
A
D = A
A
D
A
D
A
D
A
D = A
D
A
A
D = A + 0.5mm
A
D = A

第 1 部 基本篇 第 1 章 装置概要
1-19
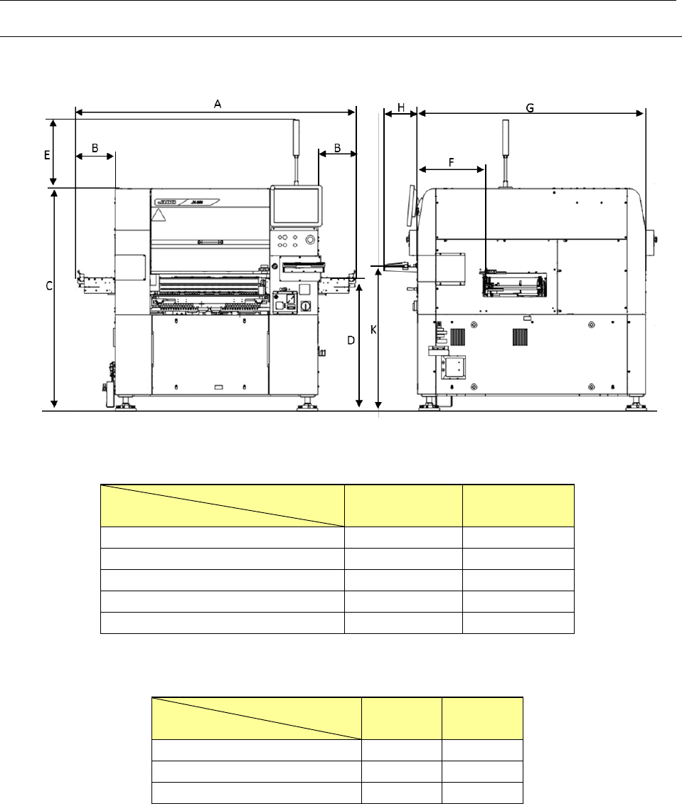
1-3 机械规格
1-3-1 机械尺寸与重量
(1)机械尺寸
单位:mm
基板规格
尺寸
标准规格 长尺寸规格
A
(传送长度)
1,920
2,520
B
(传送出量)
260
560
E
(信号灯高度)
470
470
F
(从护罩前面至基板传送通道)
484
484
G
装置内侧(不含突起部分)
1,580
1,580
※上述尺寸的公差为±5mm。
单位:mm
传送高度
尺寸
900mm 950mm
C
(从地面至护罩上面)
1,500
1,550
D
(从地面至传送带上面)
900
950
K
(从地面至键盘底面)
895
945
※上述尺寸的公差为±5mm。
(2)主机重量
1,670kg
※上述重量由于不含选购项类,因此重量误差为 3%。