JX-350_使用说明书 - 第343页
第 1 部 基本篇 第 4 章 制作生产程序 4-1 第 4 章 制作生产程序 4-1 流程图 本章将对 No 8 进行说明 。同时,也 将对 No 9 的 “ 校正 ” 部分予 以说明。 No. 生产流程图 备注 1 确认 AT C 周围的状况, 进行日常检查 。 2 确认主气压 ( 0.5 MPa) 。 3 在实施前确认装置内部是否有异物等。 4 节假日后或寒冷地区 , 必须进行预热 (10 分钟 左右 ) 。 5 6 如果因日常检…

第 1 部 基本篇 第 3 章 维护
3-50
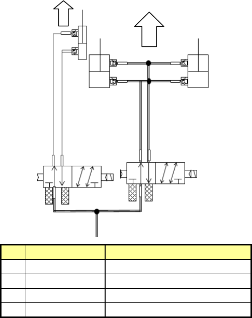
(4) 管道系统图(切带器,2 处通用)
No.
货号
品名
①
40093969
AIR_CYLINDER
②
40093976
SPEED_CONTROLLER
③
40093977
5PORT_SOLENOID_VALVE
④
PX055104000
SILENCER
切断方向
皮带动作方向
φ4
φ4
φ6
φ6

第 1 部 基本篇 第 4 章 制作生产程序
4-1
第4章 制作生产程序
4-1 流程图
本章将对 No8 进行说明。同时,也将对 No9 的“校正”部分予以说明。
No.
生产流程图
备注
1
确认 ATC
周围的状况,进行日常检查。
2
确认主气压(0.5MPa)。
3
在实施前确认装置内部是否有异物等。
4
节假日后或寒冷地区,必须进行预热
(10 分钟左右)。
5
6
如果因日常检查、设置基板时清扫吸
嘴、改变基准销位置等而改变了机器
的初始设置状态时,请重新进行「机
器设置」。
(参见“第 7 章 机器设置”)
7
参见
“
第
5
章
数据库
”
8
9
发生贴片位置偏移、定心不良等贴片
不正常时,可在「编辑程序」中进行
校正。部分元件数据可在「生产」中
进行校正。
10
11
12
13
定期实施。
(
参见
“
第
3
章
维护
”)
调整机器设置
在「机器设置」中
设置变更部分
制作元件数据库
检查贴片
有错误贴片
日常检查
关闭电源
无错误贴片
必要
不必要
不必要
校正
<制作、编辑生产程序>
●基板数据
●贴片数据
●元件数据
●吸取数据
必要
在「数据库」中
制作元件数据
接通电源
检查设备
返回原点
预热
设置基板
生产
结束生产

第 1 部 基本篇 第 4 章 制作生产程序
4-2
4-2 选项
菜单条的选项菜单,集中了各种功能,便于用户使用设备时的目的·状况进行设置。
在此对「变更用户组」、「设置用户组环境」、「调整时间和日期」、「显示语言设置」(
*1
)进行
说明。
另外,有关「操作选项」的说明,请参照『第6章 操作选项』。
4-2-1 用户组
本设备根据作业人员的操作熟练程度,设置了用户级别,对操作范围进行了限制。
变更用户组时,需输入密码。
4-2-1-1 变更用户组
选择「变更用户组」。
显示变更用户组画面。