PTS-NXT-03JE_ - 第488页
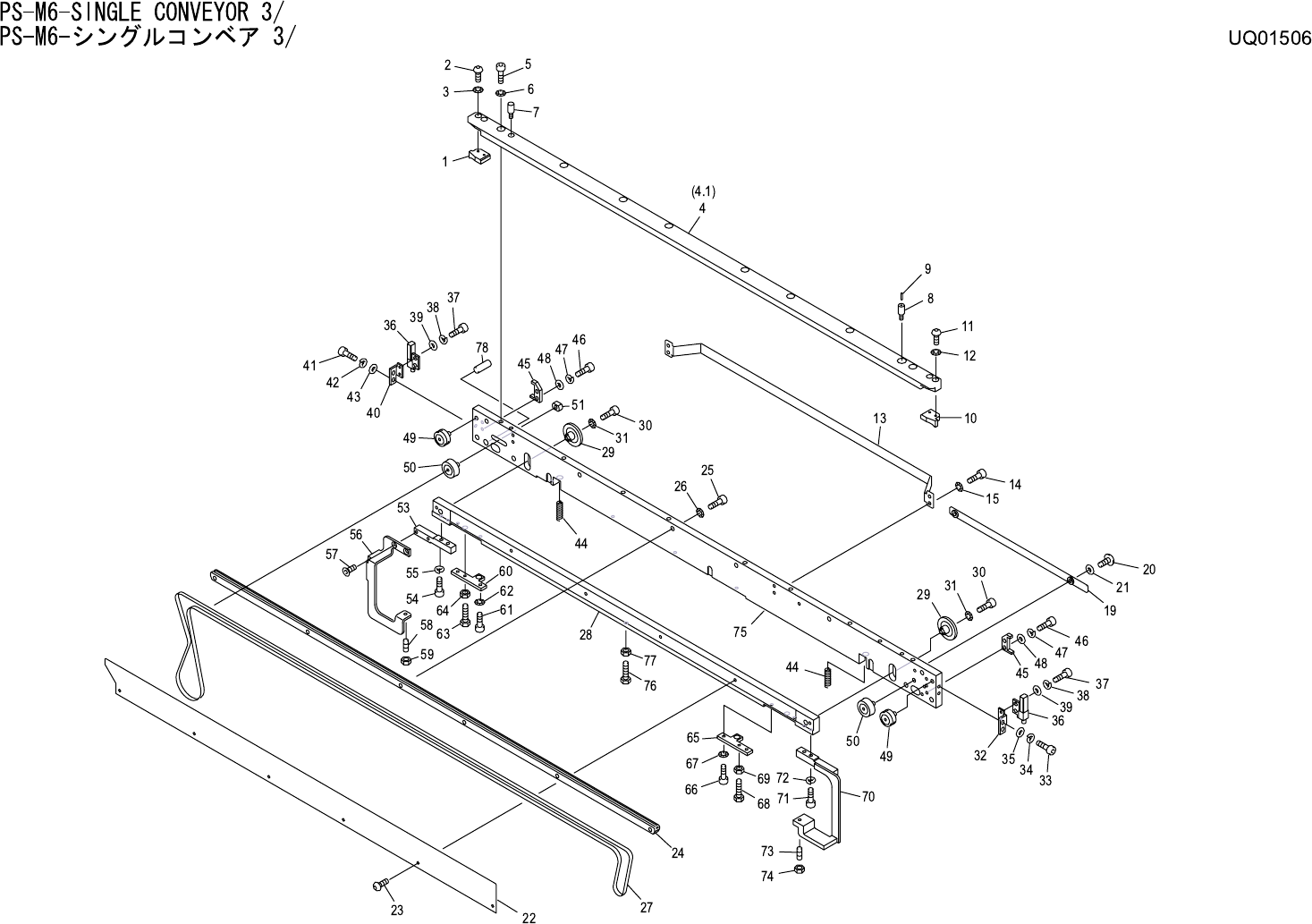
PS-M6-SINGLE CONVEYOR 3/ PS-M6- シングルコンベア 3/ UQ01506 No. Drg.No. & Code No. QTY Description Rating Materials Remark 番号 図番 & コード番号 個数 品名 規格 材質 備考 1 PM01952 1 GUIDE ガイド FE 2 K5255H 2 SCREW, HEX SOCKET BUTTON 小ネジ 六角…

471

PS-M6-SINGLE CONVEYOR 3/
PS-M6-シングルコンベア 3/
UQ01506
No. Drg.No. & Code No. QTY Description Rating Materials Remark
番号 図番 & コード番号 個数 品名 規格 材質 備考
1 PM01952 1 GUIDE ガイド FE
2 K5255H 2 SCREW, HEX SOCKET BUTTON 小ネジ 六角穴ボタン M03X005 FE
3 W1010A 2 WASHER, CONICAL ワッシャ 皿 M- 3-L FE
4 PM32061 1 RAIL レール FE
4.1 PM41901 1 RAIL レール FE OPTION
5 H5288A 8 BOLT, HEX SOCKET ボルト 六角穴 M04X010 FE
6 W1011A 8 WASHER, CONICAL ワッシャ 皿 M- 4-L FE
7 PM23712 1 PIN, REFERENCE ピン 基準 FE
8 PM23701 1 PIN, REFERENCE ピン 基準 FE
9 PJ00300 1 PIN ピン PL
10 PM01961 1 GUIDE ガイド FE
11 K5255H 2 SCREW, HEX SOCKET BUTTON 小ネジ 六角穴ボタン M03X005 FE
12 W1010A 2 WASHER, CONICAL ワッシャ 皿 M- 3-L FE
13 PB18570 1 RETAINING WIRING オサエ ハイセン FE
14 H5274A 4 BOLT, HEX SOCKET ボルト 六角穴 M03X006 FE
15 W1021A 4 WASHER, LOCK ワッシャ スプリング M- 3-L FE
19 PB06452 1 PLATE,FIXED プレ-ト コテイ FE
20 K5170T 2 SCREW, C/R TRUSS 小ネジ 十穴トラス M03X006 ユニクロメッキ(シロ)FE
21 W1042A 2 WASHER, FLAT ワッシャ 平 4W- 3 FE
22 PM01601 1 PLATE, CLAMPING プレート クランプ FE
23 K5255A 6 SCREW, HEX SOCKET BUTTON 小ネジ 六角穴ボタン M03X004 FE
24 PM11191 1 GUIDE, BELT ガイド ベルト AL
25 H5287A 6 BOLT, HEX SOCKET ボルト 六角穴 M04X008 FE
26 W1011A 6 WASHER, CONICAL ワッシャ 皿 M- 4-L FE
27 XB01110 1 CONVEYOR, BELT コンベア ベルト OT L=1510mm
28 PM12166 1 PLATE, GUIDE プレート ガイド FE
29 PM01751 2 GUIDE ガイド FE
30 H5276A 2 BOLT, HEX SOCKET ボルト 六角穴 M03X010 FE
31 W1010A 2 WASHER, CONICAL ワッシャ 皿 M- 3-L FE
32 PM21020 1 BKT, SENSOR BKT センサ FE
33 H5275A 2 BOLT, HEX SOCKET ボルト 六角穴 M03X008 FE
34 W1021A 2 WASHER, LOCK ワッシャ スプリング 3M/M FE
35 W1041F 2 WASHER, FLAT ワッシャ 平 Jガタヒラザガネ 3゚X6 FE
36 XS01453 1 SENSOR, FIBER センサ ファイバ HPF-S333-D OT
37 H5273A 4 BOLT, HEX SOCKET ボルト 六角穴 M03X005 FE
38 W1021A 4 WASHER, LOCK ワッシャ スプリング 3M/M FE
39 W1041F 4 WASHER, FLAT ワッシャ 平 Jガタヒラザガネ 3゚X6 FE
40 PM21010 1 BKT, SENSOR BKT センサ FE
472

PS-M6-SINGLE CONVEYOR 3/
PS-M6-シングルコンベア 3/
UQ01506
No. Drg.No. & Code No. QTY Description Rating Materials Remark
番号 図番 & コード番号 個数 品名 規格 材質 備考
41 H5275A 2 BOLT, HEX SOCKET ボルト 六角穴 M03X008 FE
42 W1021A 2 WASHER, LOCK ワッシャ スプリング 3M/M FE
43 W1041F 2 WASHER, FLAT ワッシャ 平 Jガタヒラザガネ 3゚X6 FE
44 PZ14450 2 SPRING スプリング FE
45 PM21052 2 BLOCK, LOCATING ブロック 位置決め FE
46 H5275A 4 BOLT, HEX SOCKET ボルト 六角穴 M03X008 FE
47 W1021A 4 WASHER, LOCK ワッシャ スプリング 3M/M FE
48 W1041F 4 WASHER, FLAT ワッシャ 平 Jガタヒラザガネ 3゚X6 FE
49 ADBPP8011 2 PULLEY プーリ OT
50 AA93101 2 PULLEY プーリ OT
51 N1122A 1 NUT, SQUARE ナット 四角 M4 P=0.7 FE
53 PM31830 1 BLOCK ブロック FE
54 H5277A 2 BOLT, HEX SOCKET ボルト 六角穴 M03X012 FE
55 W1021A 2 WASHER, LOCK ワッシャ スプリング 3M/M FE
56 PB18400 1 HOOK フック FE
57 K5357M 2 SCREW, HEX SOCKET COUNTERSUNK 小ネジ 六角穴皿 M03X006 FE
58 N4023B 1 SCREW, HEX SOCKET SET ネジ 六角穴止め M03X010 マルサキ FE
59 N1077H 1 NUT, HEX ナット 六角 M 3 P=0.5 3シュ FE
60 PM12141 1 PLATE プレート FE
61 H5275A 2 BOLT, HEX SOCKET ボルト 六角穴 M03X008 FE
62 W1021A 2 WASHER, LOCK ワッシャ スプリング 3M/M FE
63 PM52670 1 BOLT ボルト FE
64 N1080A 1 NUT, HEX ナット 六角 M 4 P=0.7 OT
65 PM12151 1 PLATE プレート FE
66 H5275A 2 BOLT, HEX SOCKET ボルト 六角穴 M03X008 FE
67 W1021A 2 WASHER, LOCK ワッシャ スプリング 3M/M FE
68 PM52670 1 BOLT ボルト FE
69 N1080A 1 NUT, HEX ナット 六角 M 4 P=0.7 OT
70 PM32132 1 HOOK フック FE
71 H5277A 2 BOLT, HEX SOCKET ボルト 六角穴
M03X012 FE
72 W1021A 2 WASHER, LOCK ワッシャ スプリング 3M/M FE
73 N4023B 1 SCREW, HEX SOCKET SET ネジ 六角穴止め M03X010 マルサキ FE
74 N1077H 1 NUT, HEX ナット 六角 M 3 P=0.5 3シュ FE
75 PM32034 1 PLATE プレート FE
76 PM52670 1 BOLT ボルト FE
77 N1080A 1 NUT, HEX ナット 六角 M 4 P=0.7 OT
78 H2095Y 1 PIN, PARALLEL
ピ
ン 平行 6゚X12 Bシュ FE
473