EUKYX-199-5100_G5S2_Instruction_Vol5_E - 第100页
EUKYX 3-7 199-5100 1.3 Front Side 1 .3.4 X Y Motor Amplifier Unit F ront Symbol Name Remarks A21F X1(H1) axis Servo Motor Amplier A22F Y1(H1) axis Linear Motor Amplier A23F Y2(H1) axis Linear Motor Amplier X-Axis Y2-A…

EUKYX
3-6199-5100
1.3 Front Side
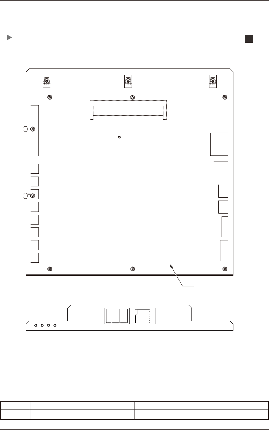
1.3.3 LED Light Control PCB
Symbol Name Remarks
U95 LED Light Control PCB Model UC19
CON1
CON2
CON3
CON4
CON5
CON6
CON7
CON8
CN5
CN1
CN8
CN7
CN3
CN2
CN6
CON10
A21F
X(B2)
ADD:3
A22F
Y1(B2)
ADD:4
A23F
Y2(B2)
ADD:5
U95
Lighting Ctrl
PCB
U95
7

EUKYX
3-7199-5100
1.3 Front Side
1.3.4 XY Motor Amplifier Unit Front
Symbol Name Remarks
A21F
X1(H1) axis Servo Motor Amplier
A22F
Y1(H1) axis Linear Motor Amplier
A23F
Y2(H1) axis Linear Motor Amplier
X-Axis Y2-AxisY1-Axis
A21F A22F A23F
10

EUKYX
3-8199-5100
1.3 Front Side
1.3.5 CPU1
Symbol Name Remarks
U91 Operation and Recognition CPU
U92 Frame Grabber 1
COM1
COM2
LAN1
LAN2
USB2 USB10
VGA
CAM
I/O
COGNEX
DVI
USB3 USB11
X9201 X9202
X9108
X9107
X9106
X9105
X9109
X9104
X9103
X9102
U92
U91
11