EUKYX-199-5100_G5S2_Instruction_Vol5_E - 第55页
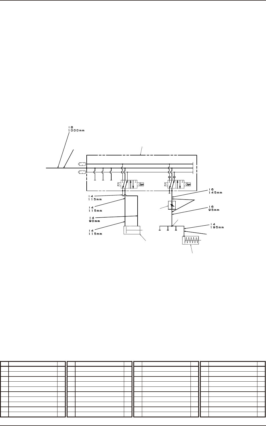
EUKYX 1-6 199-5100 1.5 Positioning Unit No. Name Q’ty No. Name Q’ty No. Name Q’ty No. Name Q’ty 2 T ube ∅ 8 1 4 T ube ∅ 4 1 1 .5.2 In T rav er se car t Att achment A B Pipe ∅ 6 600 mm ∅ 4 40 mm ∅ 4 40 mm ∅ 4 2700 mm ∅ 4 …

EUKYX
1-5199-5100
1.5 Positioning Unit
1.5 Positioning Unit
1.5.1 Normal
Pipe
∅
8
900 mm
∅6
180 mm
∅6
230 mm
∅6
380 mm
∅6
400 mm
∅6
2100 mm
∅6
2000 mm
A
B
Left Side Cylinder
Right Side Cylinder
B
A
A
B
EA
EB
P
2
1
3
5
6
6
From Main Body
Positioning U/D
No. Name Q’ty No. Name Q’ty No. Name Q’ty No. Name Q’ty
1 Tube
∅
6 1
2 Tube
∅
8 1
3 Union Y 2
5 Solenoid Valve 1
6 Cylinder 2

EUKYX
1-6199-5100
1.5 Positioning Unit
No. Name Q’ty No. Name Q’ty No. Name Q’ty No. Name Q’ty
2 Tube
∅
8 1
4 Tube
∅
4 1
1.5.2 In Traverse cart Attachment
A
B
Pipe
∅
6
600 mm
∅4
40 mm
∅4
40 mm
∅4
2700 mm
∅4
2700 mm
Positioning Unit Lowering Prevention
Left Side Cylinder
Right Side Cylinder
∅4
200 mm
∅4
140 mm
B
A
B
A
EB
P
EA
2
4
From Main Body

EUKYX
1-7199-5100
1.6 Nozzle Stocker
1.6 Nozzle Stocker
8
4
5
6
2
3
9
1
Stocker 1 U/D
From Main Body
Shutter 1 Open / Close
No. Name Q’ty No. Name Q’ty No. Name Q’ty No. Name Q’ty
1 Tube
∅
8 1
2 Tube
∅
6 1
3 Tube
∅
4 1
4 Solenoid Valve 1
5 Cylinder 1
6 Cylinder 1
8 Needle 1
9 Union Y 1