EUKYX-199-5100_G5S2_Instruction_Vol5_E - 第80页
EUKYX 2-8 199-5100 1.8 Head Section Layout (General View) 1. 8 Head Se ction L ay out ( Gener al View) Symbol Name Symbol Name Head Rotation Section Nozzle U/D Section Nozzle Selection Section Head U/D Section

EUKYX
2-7199-5100
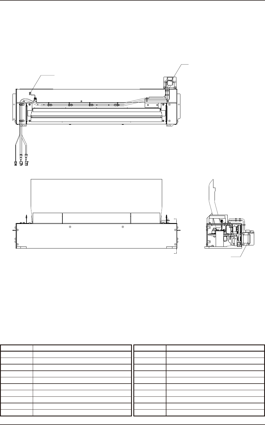
1.7 Cutter Section Layout
1.7 Cutter Section Layout
Symbol Name Symbol Name
M63 Cutter Axis Motor
B6307 Cutter Axis Origin Sensor
M63
M63
C
C
SECT C-C
B6307

EUKYX
2-8199-5100
1.8 Head Section Layout (General View)
1.8 Head Section Layout (General View)
Symbol Name Symbol Name
Head Rotation Section
Nozzle U/D Section
Nozzle Selection Section
Head U/D Section

EUKYX
2-9199-5100
1.9 Head Section Layout (Connector Box Section)
1.9 Head Section Layout (Connector Box Section)
Y0707 Y0707
Y0707
Symbol Name Symbol Name
Y0707 Air Blow Valve