OM-1356-003_w.pdf - 第63页
6-14 0704-002

6-130704-002
助熔剂 ( 助焊剂 ) 类别
从不指定、类别 1 ~类别 9 中选择。
从与助焊剂涂敷单元的类别一致的助焊剂涂敷单元开始进行涂敷。
Note
设定为
“
不指定
”
时,从搭载单元中最小通道编号的单元开始
进行涂敷。
个别识别标记
进行个别识别标记的设定。
“
自动
”
时
顶部元件的球体配置和底部元件上面的焊盘配置相同,因此设定
方法为
“
自动
”
时,从顶端元件数据库的球体配置当中选择最适当
的球体作为个别识别标记坐标。
俯视图
俯视图
通 常
作为个别识别标记,选择左上、
右下的球体位置。
没有右下的球体时等
自动选择右上、左下的球球体置等
最适当的位置。
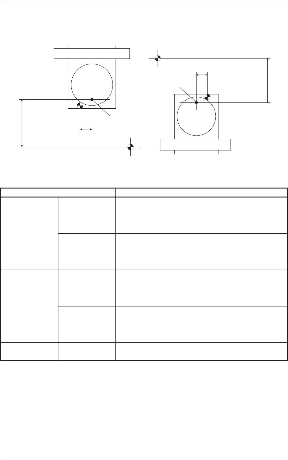
Fig.33 自动时
“
手动
”
时
用下图中的符号输入第一点、第二点的标记坐标。
俯视图
(+)
(+)
Fig.34 手动时
6.2 元件数据库

6-140704-002

7-10704-002
7. 补正值
助焊剂涂敷单元的补正值如下 :
后工作台(F1xx,F3xx)
523.0
21.0
523.0
21.0
工作台中央基准
连接器1
槽中央X坐标
涂敷位置
磁鼓
(旋转盘)
涂敷位置
前工作台(F2xx,F4xx)
磁鼓
(旋转盘)
连接器1
槽中央X坐标
工作台中央基准
Fig.35
Table 4
名 称 详 细
涂敷位置 X 模块 1、3 设定位置的槽计算值 X+21.0mm
+ 送料器补正值 (A)X
+ 助焊剂转印单元内补正值 X
+ 元件识别补正 X
模块 2、4 设定位置的槽计算值 X-21.0mm
+ 送料器补正值 (A)X
+ 助焊剂转印单元内补正值 X
+ 元件识别补正 X
涂敷位置 Y 模块 1、3
+523.0mm
+ 送料器补正值 (A)Y
+ 助焊剂转印单元内补正值 Y
+ 元件识别补正 Y
模块 2、4
-523.0mm
+ 送料器补正值 (A)Y
+ 助焊剂转印单元内补正值 Y
+ 元件识别补正 Y
涂敷位置 Z 模块 1、2、3、4
贴装角度
+ 元件识别补正 Z
7. 补正值