TT2Parts List__N7202A058B.pdf - 第31页
Ref No. Remarks R 1 Q'ty 1-E 本体部:NPM-TT2 MainBody :NPM-T T2 イラスト No. Part No. 品 名 品 番 数量 R 2 パーツリスト Kit No. キット品番 Kit Name キット名称 MTKA007679AA Part Nam e 備 考 セク ション No . PARTS LIST Section No. R 3 BRACKET 1 1 MTPB006…

1-E
本体部:NPM-TT2
MainBody:NPM-TT2
パーツレイアウト
Kit No.
キット品番
Kit Name
キット名称
MTKA007679AA
セクションNo.
PARTS LAYOUT
Section No.
--
S9
( KMTKA007679AA-23-5 )

Ref
No.
Remarks R
1
Q'ty
1-E
本体部:NPM-TT2
MainBody:NPM-TT2
イラスト
No.
Part No.
品 名品 番 数量
R
2
パーツリスト
Kit No.
キット品番
Kit Name
キット名称
MTKA007679AA
Part Name
備 考
セクションNo.
PARTS LIST
Section No.
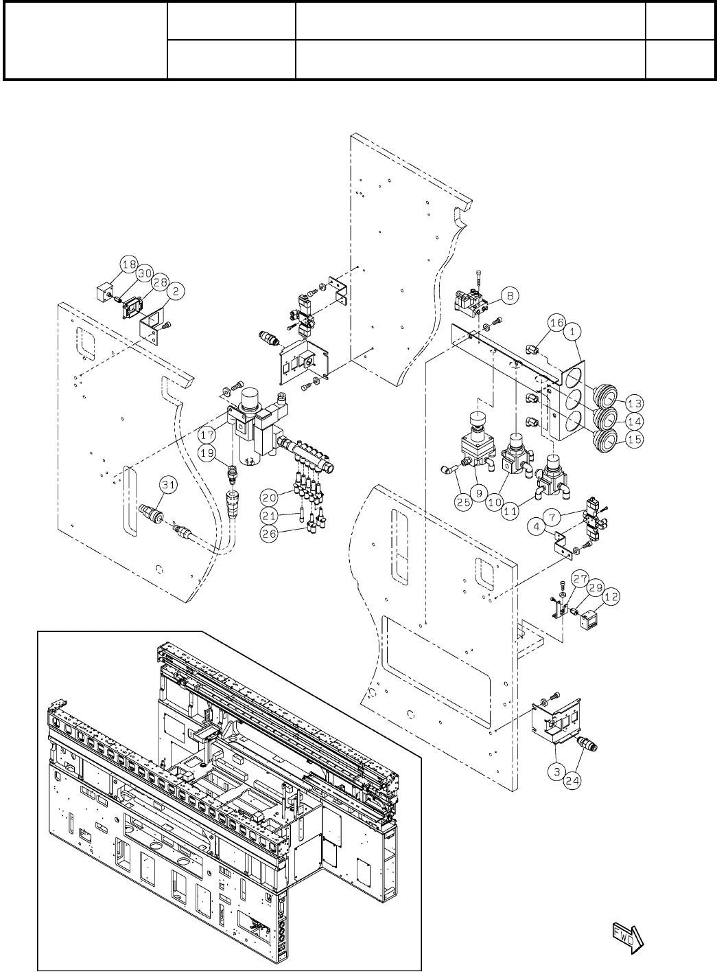
R
3
BRACKET
1
1 MTPB006755AA
PLATE
1
2 N210091217AA Parts for IPO
BRACKET
1
3 N210142913AC
BRACKET
1
4 N210198158AE
PUMP KIT
1
5 MTKP002933AC
S
JOINT
1
6 N510066895AA KQ2ZT08-02AS
JOINT
1
7 N510066658AA KQ2R06-08A
JOINT
1
8 KXF0DZKRA00 KQ2P-08
SPACER
4
9 N510017103AA CB-504E
CLIP
1
10 KXF0E0V6A00 NK-12N
FAN-GUARD
1
11 KXF07S8AA00 109-619E
FAN-GUARD
1
12 KXFP007AA00 109-620
GROMMET
6
13 N510061330AA C-30-SG-52A-EP-UL
FAN
1
14 N510061509AA
S
109-642-16
ROD
2
15 MTPA016027AA
COVER
1
16 MTPB009653AB
BRACKET
1
17 KXFB00JJA01
FAN
1
18 MTKP005043AA
SCREW
2
19 XXE8C20FT
Hexagon socket set screw Flat point M8X20-45H SOB
FAN-GUARD
2
20 KXF077MAA00
S
109-019E
S10
--
( KMTKA007679AA-23-5 )

1-F
本体部:NPM-TT2
MainBody:NPM-TT2
パーツレイアウト
Kit No.
キット品番
Kit Name
キット名称
MTKA007679AA
セクションNo.
PARTS LAYOUT
Section No.
--
S11
( KMTKA007679AA-23-6 )