TT2Parts List__N7202A058B - 第353页
Ref No. Remark s R 1 Q'ty 51 LED照明ユニット(側方照明:オプション仕様-1) LED Lighting Unit(Side Lighting Unit:Option Specification-1) イラスト No. Part No. 品 名 品 番 数量 R 2 パーツリスト Kit No. キット品番 Kit Name キット名称 N610161300AA Part Nam e 備 考 セク…

51
LED照明ユニット(側方照明:オプション仕様-1)
LED Lighting Unit(Side Lighting Unit:Option Specification-1)
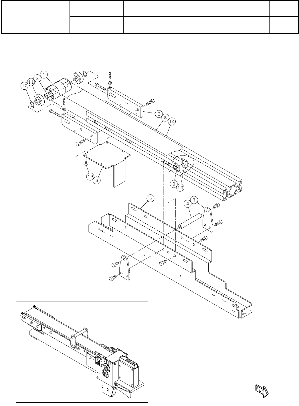
パーツレイアウト
Kit No.
キット品番
Kit Name
キット名称
N610161300AA
セクションNo.
PARTS LAYOUT
Section No.
--
O169
( KN610161300AA-06 )

Ref
No.
Remarks R
1
Q'ty
51
LED照明ユニット(側方照明:オプション仕様-1)
LED Lighting Unit(Side Lighting Unit:Option Specification-1)
イラスト
No.
Part No.
品 名品 番 数量
R
2
パーツリスト
Kit No.
キット品番
Kit Name
キット名称
N610161300AA
Part Name
備 考
セクションNo.
PARTS LIST
Section No.
R
3
LED Lighting Unit
1
1 N610161300AA
S
O170
--
( KN610161300AA-06 )

52-A
部品排出コンベア:NPM
Component Eject Conveyor:NPM
パーツレイアウト
Kit No.
キット品番
Kit Name
キット名称
N610090811AA
セクションNo.
PARTS LAYOUT
Section No.
--
O171
( KN610090811AA-06-1 )