TT2Parts List__N7202A058B - 第512页
114- B 17連フィーダー テーブルカバー(切替仕様):NPM-TT2 17-Slot Feeder Table Cover:N PM- TT 2 パーツレイアウト Kit No. キット 品番 Kit Name キット名称 MTKA009073AA セクションNo. PARTS LAYOUT Section No. - - O329 ( KMTKA009073AA-04-2 )

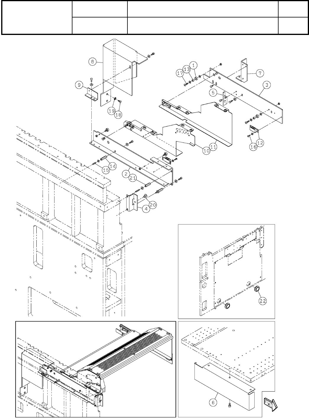
Ref
No.
Remarks R
1
Q'ty
114-A
17連フィーダーテーブルカバー(切替仕様):NPM-TT2
17-Slot Feeder Table Cover:NPM-TT2
イラスト
No.
Part No.
品 名品 番 数量
R
2
パーツリスト
Kit No.
キット品番
Kit Name
キット名称
MTKA009073AA
Part Name
備 考
セクションNo.
PARTS LIST
Section No.
R
3
COVER
1
1 N210168710AF
COVER
1
2 N210168711AD
COVER
1
3 N210168712AC
BRACKET
1
4 N210168716AC
NUT-PLATE
2
5 N210143038AA
BRACKET
2
6 N210147105AB
COVER
1
7 N210180198AB
SWITCH
2
8 N510057874AA
S
HS5D-03RNP
JOINT
2
9 KXF06F4AA00 53015030-WM
SPACER
2
10 N510020146AA ASF-435E
SCREW
3
11 N510018280AA
Cross recessed Truss head machine screw M4X6-4.8 A2S (Trivalent)
SCREW
17
12 N510018283AA
Cross recessed Truss head machine screw M4X8-4.8 A2S (Trivalent)
BOLT
4
13 N510001582AA SRBS-M4X30
CABLE-SUPPORT
3
14 N348TA1S8 TA1S8
BOLT
3
15 N510017536AA
SSS 003 Hexagon socket button head screw M4X8-10.9 A2J (Trivalent)
SWITCH
2
16 N300HS9ZA52
S
HS9Z-A52
BOLT
8
17 N510000423AA SRBS-M4X8
O328
--
( KMTKA009073AA-04-1 )

114-B
17連フィーダーテーブルカバー(切替仕様):NPM-TT2
17-Slot Feeder Table Cover:NPM-TT2
パーツレイアウト
Kit No.
キット品番
Kit Name
キット名称
MTKA009073AA
セクションNo.
PARTS LAYOUT
Section No.
--
O329
( KMTKA009073AA-04-2 )

Ref
No.
Remarks R
1
Q'ty
114-B
17連フィーダーテーブルカバー(切替仕様):NPM-TT2
17-Slot Feeder Table Cover:NPM-TT2
イラスト
No.
Part No.
品 名品 番 数量
R
2
パーツリスト
Kit No.
キット品番
Kit Name
キット名称
MTKA009073AA
Part Name
備 考
セクションNo.
PARTS LIST
Section No.
R
3
WASHER
4
1 N210160059AA
BRACKET
1
2 MTPB003321AB
BRACKET
1
3 MTPB009364AA
BRACKET
1
4 MTPB003323AA
COVER
1
5 MTPB003324AB
COVER
1
6 N210172213AC
BRACKET
1
7 MTPB003325AB
COVER
1
8 MTPB009424AA
BRACKET
1
9 N210172904AB
COVER
1
10 MTKP001811AD
COVER
1
11 MTKP001813AD
MAGNET
2
12 KXF0CS8AA00 C-54-2-black
SPACER
4
13 N510017097AA CB-405E
SPACER
1
14 N510029503AA ASF-428E
SCREW
1
15 N510020560AA
Hexagon socket set screw Cup point M4X15-45H A2J (Trivalent)
SCREW
4
16 N510018233AA
Cross recessed Truss head machine screw M3X10-4.8 A2S (Trivalent)
SCREW
4
17 N510018266AA
Cross recessed Truss head machine screw M4X16-4.8 A2S (Trivalent)
SCREW
2
18 N510018285AA
Cross recessed Truss head machine screw M5X10-4.8 A2S (Trivalent)
WASHER
2
19 N510018765AA
Toothed lock washer 5 External toothed Steel Unichrome white (Trivalent)
SCREW
1
20 N510018304AA
Cross recessed Truss head machine screw M6X10-4.8 A2J (Trivalent)
SPACER
2
21 N510029505AA ASF-424E
GROMMET
2
22 N510056668AA C-30-SG-42A-EP-UL
O330
--
( KMTKA009073AA-04-2 )